Modern & energieeffizient: Dein neues Zuhause mit Garten, Terrasse, Gäste-WC und hochwertiger Einbauküche – für komfortables und nachhaltiges Wohnen.
Dein Ort zum Entfalten - Neubauhaus zur Miete - 153 m²
Von-Redern-Str. 20,
14621 Schönwalde-Glien
Auf Karte anzeigen
Infos
| Haustyp | Doppelhaushaelfte |
|---|---|
| Etagenzahl | 3 |
| Wohnfläche ca. | 153 m2 |
| Grundstücksfläche | 370,5 m2 |
| Bezugsfrei ab | 01.05.2026 |
| Zimmer | 5 |
| Schlafzimmer | 3 |
| Badezimmer | 1 |
| Haustiere | Nach Vereinbarung |
| Garage/Stellplatz | Außenstellplatz |
| Anzahl Garage/Stellplatz | 2 |
Kosten
| Kaltmiete |
2.120 € |
|---|---|
| Nebenkosten | + 250 € |
| Heizkosten | in Nebenkosten enthalten |
| Gesamtmiete | 2.470 € |
| Miete für Garage/Stellplatz | 100 € |
Weiter mieten oder doch kaufen?
Wer in Miete wohnt, überweist dem Vermieter im Laufe der Jahre hohe Summen, die sich
auch in die eigenen vier Wände investieren lassen könnten.
Bausubstanz & Energieausweis
| Baujahr | 2026 |
|---|---|
| Objektzustand | Erstbezug |
| Qualität der Austattung | Gehoben |
| Heizungsart | Wärmepumpe |
| Wesentliche Energieträger | Nahwärme |
| Energieausweis | liegt vor |
| Energieausweistyp | Bedarfsausweis |
| Energieverbrauchskennwert | 19,9 kWh/(m²*a) |
| Energieeffizienzklasse | A+ |
19,9
kWh/(m²*a)
Energieeffizienzklasse A+
- A+
- A
- B
- C
- D
- E
- F
- G
- H
- 0
- 25
- 50
- 75
- 100
- 125
- 150
- 175
- 200
- 225
- >250
Beschreibung des Objekts
Ausstattung
Ausstattung im Überblick:
Jede Wohneinheit überzeugt durch eine hochwertige und stilvolle Ausstattung. Die Details sind dabei nicht nur hochwertig, sondern auch durchdacht – mit Fokus auf modernes Wohnen und nachhaltige Bauweise.
• Hochwertiges Echtholzparkett
• Moderne Fliesen in Bädern
• Zwei PKW-Stellplätze je Wohneinheit, mit Vorrüstung für E-Mobilität
• Glasfaseranschluss
• Luft-Wasser-Wärmepumpe & Photovoltaikanlage
Einbauküche inklusive:
In Deiner neuen Küche wird Kochen zum Erlebnis: Modern, funktional und stilvoll gestaltet – hier passt einfach alles. Hochwertige Markengeräte von deutschen Herstellern sorgen für Leistung, auf die man sich im Alltag verlassen kann – vom Induktionsfeld über den Geschirrspüler bis hin zum Backofen. Die Arbeitsplatte bietet großzügig Platz zum Vorbereiten, während durchdachte Stauraumlösungen Ordnung schaffen und den Alltag erleichtern.
• Maßgeschneiderte Küchenzeile
• Moderne & hochwertige Küchengeräte von deutschen Herstellern: Backofen, Induktionsfeld, Dunstabzugshaube, Geschirrspüler, Kühl-Gefrierkombi & Umluftfilter
• Großzügiger Stauraum in Schränken & Schubladen
• Mattweise Küchenfronten mit schwarzen Griffleisten
• Granit-Spültischarmatur
Nachhaltige Energienutzung:
In Deinem neuen Zuhause wohnst Du modern und Kfw-55-energieeffizient. Jedes Haus verfügt über eine eigene Wärmepumpe, die nachhaltige Nahwärme liefert. Der Strom stammt überwiegend aus der hauseigenen Photovoltaikanlage. So werden Ressourcen besonders effizient genutzt und ein zukunftsfähiges, energiesparendes Wohnen ermöglicht.
• Luft-Wasser-Wärmepumpe & Photovoltaikanlage
• Fußbodenheizung
• 3-Scheiben-Isolierverglasung
• Gebäudeeffizienzklasse A+
Lage
In Schönwalde verbinden sich ruhiges Wohnen, naturnahes Umfeld und eine verlässliche Infrastruktur. Das Wohngebiet liegt eingebettet in eine grüne Umgebung mit gewachsenen Nachbarschaften – ideal für Familien, Paare und alle, die ein ausgewogenes Verhältnis von Alltag und Erholung schätzen.
Kindertagesstätten, Schulen und Spielplätze sind gut erreichbar und sorgen für kurze Wege im Familienalltag. Für größere Einkäufe oder Arztbesuche stehen in den Nachbarorten Schönwalde, Henningsdorf oder Falkensee vielfältige Angebote bereit. So bleibt der tägliche Ablauf unkompliziert und planbar.
Die Umgebung bietet zahlreiche Möglichkeiten zur Freizeitgestaltung. Wälder, Felder und Radwege beginnen direkt vor der Haustür und laden zu Spaziergängen, sportlicher Betätigung oder einfach zum Abschalten ein. Auch das Vereinsleben in Schönwalde und den umliegenden Gemeinden trägt zu einem lebendigen und gemeinschaftlichen Umfeld bei.
Für die Nahversorgung ist ebenfalls gesorgt: Bäcker, Supermärkte, Apotheken und kleinere Geschäfte befinden sich in kurzer Distanz und sind sowohl mit dem Auto als auch mit dem Fahrrad gut erreichbar.
Ruhige Lage im Grünen mit Nähe zur Innenstadt
Naturnah wohnen mit kurzen Wegen in die Stadt – Spandau und Berlin-Charlottenburg sind in weniger als 40 Minuten erreichbar.
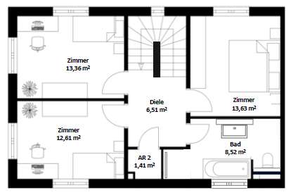
Grundriss
Grundriss_153 m²_EG
>
>
Grundriss_153 m²_OG
>
>
Grundriss_153 m²_DG
>
>
Adresse
Von-Redern-Str. 20, 14621 Schönwalde-Glien
Interessante Orte
Preis- und Lageinformationen
Preistrend für Bestandsimmobilien in Schönwalde-Glien