Das Gesamthaus wurde ursprünglich im Jahre 1953 erbaut. Der nun zur Vermietung stehende Hausteil besteht aus 3 Zimmern, einer Küche, einem Bad, einem GästeWC sowie einer großen Terrasse und Gartenanteil.
Der zentrale Dielenbereich verbindet alle Räumen des Hauses untereinander. Links der Diele liegt, straßenseitig belichtet, die Küche, in welcher bereits eine hochwertige Einbauküche mit Elektrogeräten verbaut ist. Diese kann vom Vormieter übernommen werden.
Rechts der Diele liegt ein gefliestes GästeWC sowie eine Garderobe.
Kopfseitig ist das großzügige Wohn & Esszimmer mit Holztreppenhaus begehbar.
Dem Wohnzimmer vorgelagert, ist die teilweise überdachte Terrasse zu finden, welche sodann in den Garten mündet.
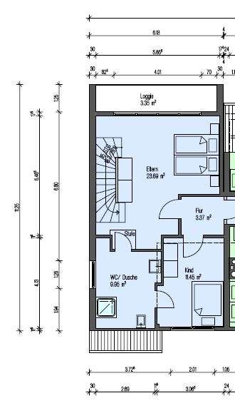
Im ersten Obergeschoss ist straßenseitig das geflieste Bad zu finden. Das Fensterbad wird über ein Dachflächenfenster belichtet. Weiterhin sind hier zwei Schlafzimmer zu finden. Die Schlafräume sind allesamt mit Rollläden ausgestattet.
Das Haus wurde im Jahr 2021 saniert und war bisher vermietet.
Doppelhaushälfte in ruhiger Lage mit Gartenteil
Petternicher Straße 20,
52428 Jülich
Auf Karte anzeigen
Infos
| Haustyp | Doppelhaushaelfte |
|---|---|
| Etagenzahl | 2 |
| Wohnfläche ca. | 106 m2 |
| Grundstücksfläche | 360 m2 |
| Bezugsfrei ab | 01.03.2026 |
| Zimmer | 3 |
| Schlafzimmer | 3 |
| Badezimmer | 1 |
| Haustiere | Nein |
| Garage/Stellplatz | Außenstellplatz |
| Anzahl Garage/Stellplatz | 1 |
Kosten
| Kaltmiete |
1.000 € |
|---|---|
| Nebenkosten | + 500 € |
| Heizkosten | in Nebenkosten enthalten |
| Gesamtmiete | 1.500 € |
| Kaution o. Genossenschaftsanteile | 3 Monatskaltmieten |
Weiter mieten oder doch kaufen?
Wer in Miete wohnt, überweist dem Vermieter im Laufe der Jahre hohe Summen, die sich
auch in die eigenen vier Wände investieren lassen könnten.
Bausubstanz & Energieausweis
| Baujahr | 1953 |
|---|---|
| Letzte Sanierung | 2021 |
| Qualität der Austattung | Normal |
| Heizungsart | Zentralheizung |
| Wesentliche Energieträger | Gas |
| Energieausweis | liegt vor |
| Energieausweistyp | Verbrauchsausweis |
| Energieverbrauchskennwert | 226,0 kWh/(m²*a) |
| Energieeffizienzklasse | G |
226,0
kWh/(m²*a)
Energieeffizienzklasse G
- A+
- A
- B
- C
- D
- E
- F
- G
- H
- 0
- 25
- 50
- 75
- 100
- 125
- 150
- 175
- 200
- 225
- >250
Beschreibung des Objekts
Ausstattung
3 Zimmer, Küche mit Einbauküche, Diele, Bad, Gäste-WC, Terrasse, Garten
Holzfenster mit Isolierverglasung und teilweise Rollläden, Parkett und Steinböden, separate Heizunganlage,
Lage
Das Objekt liegt im Herzen des Jülicher Nordviertels mit seiner gemischten Bebauung aus Ein- und Mehrfamilienhäuser. Die Geschäfte des täglichen Bedarfs sind allesamt fußläufig zu erreichen. Hierzu zählen ein Bäcker, ein Metzger, eine Apotheke sowie eine Supermarkt. Öffentlichen Verkehrsmittel können ebenfalls in naher Entfernung in Anspruch genommen werden (Bus). Die Haltestelle der Rurtalbahn ist in wenigen Minuten zu Fuß oder mit dem Fahrrad erreichbar. Mit dem Auto ist die Autobahn A44 sowie die Bundesstraßen B55 und B56 mit Anschluss an die Autobahn A4 und A61 schnell befahrbar. Ein Kindergarten befindet sich in unmittelbarer Nähe, ebenso wie Grund- und weiterführende Schulen.
Sonstige Angaben
Falls Sie weitere Informationen über uns sowie unser Leistungsspektrum und von uns angebotene Objekt erhalten wollen, besuchen Sie uns auf unserer Internetseite unter www.schroeder-iv.de Gerne steht Ihnen unser Team auch für die Beantwortung Ihrer Fragen sowie zur Vereinbarung eines Besichtigungstermins zur Verfügung. Sie erreichen uns per E-Mail, in dem Sie eine Anfrage auf dieses Angebot senden oder telefonisch unter der angegebenen Telefonnummer zu unseren Geschäftszeiten von montags bis freitags von 09.00 Uhr bis 12.30 Uhr sowie montags bis donnerstags von 14.00 Uhr bis 17.00 Uhr.
Grundriss
Grundriss Erdgeschoss
>
>
Grundriss 1. OG
>
>
Adresse
Petternicher Straße 20, 52428 Jülich
Interessante Orte
Preis- und Lageinformationen
Preistrend für Bestandsimmobilien in Jülich