Die Reemtsma Villa „Haus K. in O.“ wurde 1930–1932 nach einem Entwurf von Martin Elsaesser als Wohnhaus für Philipp F. Reemtsma erbaut – ein architektonischer Meilenstein der Moderne in den Elbvororten. Sie liegt inmitten des ca. 8 ha großen, denkmalgeschützten Reemtsma Parks mit altem Baumbestand, weitläufigen Rasenflächen, Teich, Spielplatz und künstlerisch gestalteten Blickachsen.
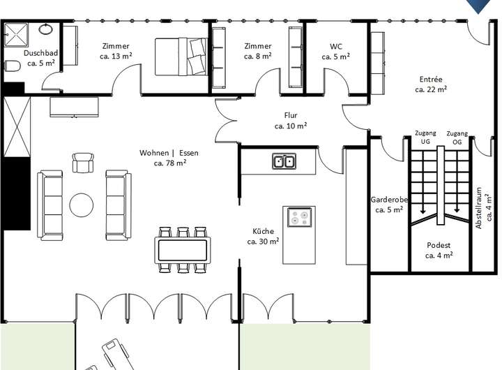
Die Villa wurde 2012 denkmalgerecht in vier exklusive Einheiten umgewandelt. Dabei wurden originale Stilelemente mit moderner Architektur sensibel kombiniert. Die hier angebotene Einheit erstreckt sich über zwei Wohnetagen plus Untergeschoss und besitzt einen separaten Eingang im Stil eines Stadthauses. Das großzügige Wohn- und Esszimmer mit Blick in den Park ist über eine aufwendig restaurierte Messingtür zugänglich. Die exklusive Warendorf-Küche kann per Schiebetür geöffnet oder geschlossen werden. Von hier führt der Zugang auf die sonnige Südterrasse.
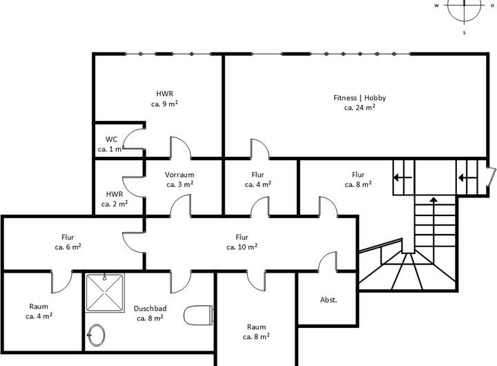
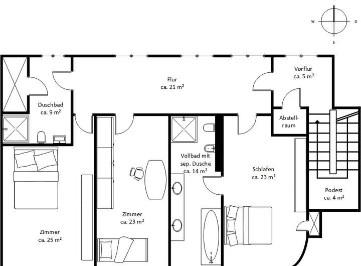
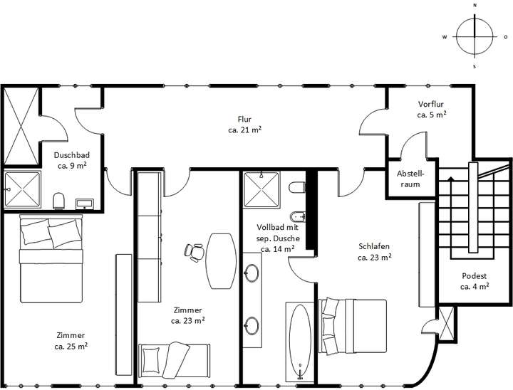
Ein Schlafzimmer mit Bad en suite, Gäste-WC und Hauswirtschaftsraum befinden sich im Erdgeschoss. Im Obergeschoss liegen das Hauptschlafzimmer mit Bad en suite, zwei weitere Schlafzimmer sowie ein zusätzliches Bad. Das Untergeschoss bietet vielseitige Nutzfläche, ein weiteres Bad und einen großen Hauswirtschaftsbereich.
Tiefgaragenstellplätze stehen in der großzügigen Garage zur Verfügung (mtl. á € 110 zzgl. € 15 NK).
Im Park befindet sich zudem ein Medical Fitness Club mit verschiedenen Angeboten.
Elegantes Wohnen mit Parkweitblick im "Haus K. in O."
22605 Hamburg
Die vollständige Adresse der Immobilie erhalten Sie vom Anbieter.
Auf Karte anzeigen
Die vollständige Adresse der Immobilie erhalten Sie vom Anbieter.
Infos
| Etagenzahl | 1 |
|---|---|
| Wohnfläche ca. | 329 m2 |
| Grundstücksfläche | 80.000 m2 |
| Bezugsfrei ab | 1.3.2026 |
| Zimmer | 5 |
| Schlafzimmer | 4 |
| Badezimmer | 3 |
| Haustiere | Nach Vereinbarung |
| Garage/Stellplatz | Tiefgarage |
| Anzahl Garage/Stellplatz | 2 |
Kosten
| Kaltmiete |
6.950 € |
|---|---|
| Nebenkosten | + 1.515 € |
| Heizkosten | in Nebenkosten enthalten |
| Gesamtmiete | 8.465 € |
| Miete für Garage/Stellplatz | 250 € |
Weiter mieten oder doch kaufen?
Wer in Miete wohnt, überweist dem Vermieter im Laufe der Jahre hohe Summen, die sich
auch in die eigenen vier Wände investieren lassen könnten.
Bausubstanz & Energieausweis
| Baujahr | 1930 |
|---|---|
| Objektzustand | Neuwertig |
| Heizungsart | Fußbodenheizung |
| Wesentliche Energieträger | Nahwärme |
| Energieausweis | laut Gesetz nicht erforderlich |
Beschreibung des Objekts
Lage
Diese Immobilie befindet sich in dem beliebten Elbvorort Othmarschen. Einkaufsmöglichkeiten bietet die nahe gelegene Waitzstraße mit einer Vielzahl an Einzelhandelsgeschäften sowie das Elbe-Einkaufszentrum. Kindergärten, Grund- und weiterführende Schulen, wie z.B. auch die Internationale Schule, sind in nur wenigen Minuten zu erreichen.
Der Jenischpark, die Elbe und verschiedene Sportvereine, wie auch der Groß Flottbeker Golf-, Hockey- und Tennisclub, befinden sich in der unmittelbaren Umgebung. Die Anbindung an die öffentlichen Verkehrsmittel ist aufgrund der S-Bahnstation „Othmarschen“ sowie verschiedener Buslinien als sehr gut zu bezeichnen. Mit der S-Bahn ist die Hamburger Innenstadt in nur 15 Minuten erreichbar.
Sonstige Angaben
Die Wasser- und Stromkosten zahlt der Mieter direkt an die Versorgungsträger.
Grundriss
Erdgeschoss
>
>
1. Obergeschoss
>
>
Untergeschoss
>
>
Adresse
22605 Hamburg
Interessante Orte
Preis- und Lageinformationen
Preistrend für Bestandsimmobilien in Othmarschen