BITTE NUTZTEN SIE ZUR KONTAKTAUFNAHME DAS IMMOBILIENSCOUTFORMULAR.
Geben Sie hierzu im Formular die Anzahl der Personen im Haushalt, eine gültige E-Mailadresse und eine aktuelle Telefonnummer an.
Wichtiger Hinweis: Das Angebotene Haus wird ausschließlich an Familien mit 4 Kindern vermietet. Zudem muss eine Berechtigung für einen Wohnberechtigungsschein vorliegen.
Vermietet wird ein von 6 Neubau-Reihenhaus im Albroweg in Dortmund Asseln.
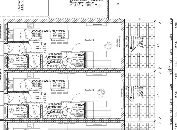
Die je 130qm großen Häuser bieten Platz für 6 Personen und sind wie folgt aufgeteilt:
Erdgeschoss:
- Wohnzimmer
- Duschbad
- Küche
- Abstellraum
- Terasse
- Garten
Obergeschoss:
- Kinderzimmer 1
- Kinderzimmer 2
- Kinderzimmer 3 / Schlafzimmer
- Bad mit Dusche und Badewanne
Dachgeschoss:
- Schlafzimmer / Kinderzimmer 3
- Kinderzimmer 4
- Hauswirtschaftsraum
Die derzeit im Bau befindlichen Häuser sind voraussichtlich im April 2026 bezugsfertig.
Neben einem eigenen Garten verfügen die Häuser über eine moderne Luft-Wärme-Pumpe. Zur Reduzierung der Betriebskosten ist das gesamte Haus im energetisch hochwertigen BEG 40 Standard errichtet worden.
Die Vermietung erfolgt bezugsfertig ohne Mobiliar.
Zu dem Haus wird separat eine Garage mit Stromanschluss vermietet.
Neubau-Einfamilienhaus für 6 Personen - nur mit WBS -
Albroweg 36,
44319 Dortmund
Auf Karte anzeigen
Infos
| Haustyp | Doppelhaushaelfte |
|---|---|
| Etagenzahl | 3 |
| Wohnfläche ca. | 130 m2 |
| Nutzfläche | 5 m2 |
| Grundstücksfläche | 230 m2 |
| Bezugsfrei ab | April 2026 |
| Zimmer | 6 |
| Schlafzimmer | 5 |
| Badezimmer | 2 |
| Garage/Stellplatz | Garage |
| Anzahl Garage/Stellplatz | 1 |
Kosten
| Kaltmiete |
981 € |
|---|---|
| Nebenkosten | + 400 € |
| Heizkosten | keine Angabe |
| Gesamtmiete | 1.381 € (zzgl. Heizkosten) |
| Miete für Garage/Stellplatz | 80 € |
| Kaution o. Genossenschaftsanteile | 3000 |
Weiter mieten oder doch kaufen?
Wer in Miete wohnt, überweist dem Vermieter im Laufe der Jahre hohe Summen, die sich
auch in die eigenen vier Wände investieren lassen könnten.
Bausubstanz & Energieausweis
| Baujahr | 2026 |
|---|---|
| Objektzustand | Erstbezug |
| Qualität der Austattung | Gehoben |
| Heizungsart | Wärmepumpe |
| Wesentliche Energieträger | Umweltwärme |
Beschreibung des Objekts
Ausstattung
- 130qm Wohnfläche
- 5 Schlafzimmer
- 2 Badezimmer
- eigener Garten mit Terrasse und Grünfläche
- Fußbodenheizung
- Lüftungsanlage
- Luft-Wärme-Pumpe
- BEG 40
- elektrische Rollladen
- barrierefreier Zugang
- Garage
- hochwertige Ausstattung
Lage
Das Einfamilienhaus liegt in einer ruhigen und naturnahen Wohngegend im Stadtteil Dortmund-Asseln. Die Lage zeichnet sich durch ihre familienfreundliche Umgebung mit zahlreichen Grünflächen und Naherholungsmöglichkeiten aus. Einkaufsmöglichkeiten für den täglichen Bedarf, Schulen, Kindergärten und ärztliche Versorgung befinden sich in der Nähe. Die Anbindung an den öffentlichen Nahverkehr und die Autobahnen A40 und A1 ist hervorragend, was eine gute Erreichbarkeit der Dortmunder Innenstadt sowie der umliegenden Städte garantiert. Die Nachbarschaft ist geprägt von einer angenehmen Wohnatmosphäre und bietet viel Raum für Freizeitaktivitäten und Erholung.
Sonstige Angaben
Wichtiger Hinweis: Das Angebotene Haus wird ausschließlich an Familien mit 4 Kindern vermietet. Zudem muss eine Berechtigung für einen Wohnberechtigungsschein vorliegen.
BITTE NUTZTEN SIE ZUR KONTAKTAUFNAHME DAS IMMOBILIENSCOUTFORMULAR.
Geben Sie hierzu im Formular die Anzahl der Personen im Haushalt, eine gültige E-Mailadresse und eine aktuelle Telefonnummer an.
Adresse
Albroweg 36, 44319 Dortmund
Interessante Orte
Preis- und Lageinformationen
Preistrend für Bestandsimmobilien in Asseln