Die Firma Schwabenhaus baut für Sie mit diesem Objekt die eigenen vier Wände. Dieses Haus ist in Planung und verfügbar direkt nach Fertigstellung.
Miet-Kauf wird angeboten. Finanzierung ohne Eigenkapital möglich, bestehende Schulden sind kein Hindernis (Bonität vorausgesetzt). Fragen Sie nach unserem Miet-Kauf-Modell!
Mieten Sie doch einfach Ihr Traumhaus in Spangenberg mit anschließender Kaufoption
34286 Spangenberg
Die vollständige Adresse der Immobilie erhalten Sie vom Anbieter.
Auf Karte anzeigen
Die vollständige Adresse der Immobilie erhalten Sie vom Anbieter.
Infos
| Haustyp | Einfamilienhaus |
|---|---|
| Wohnfläche ca. | 110 m2 |
| Nutzfläche | 0 m2 |
| Grundstücksfläche | 865 m2 |
| Zimmer | 5 |
| Schlafzimmer | 3 |
| Badezimmer | 1 |
| Anzahl Garage/Stellplatz | 1 |
Kosten
| Kaltmiete |
1.600 € |
|---|---|
| Nebenkosten | keine Angabe |
| Heizkosten | keine Angabe |
| Gesamtmiete | 1.600 € |
Weiter mieten oder doch kaufen?
Wer in Miete wohnt, überweist dem Vermieter im Laufe der Jahre hohe Summen, die sich
auch in die eigenen vier Wände investieren lassen könnten.
Bausubstanz & Energieausweis
| Baujahr | 2026 |
|---|---|
| Qualität der Austattung | Gehoben |
| Heizungsart | Wärmepumpe |
Beschreibung des Objekts
Ausstattung
Alle Schwabenhäuser werden hochwertig ausgestattet.
Unsere Antwort auf hohe Energiekosten lautet *Energie verwenden statt verschwenden* . Wählen Sie Ihre intelligente Kombination aus Dämm-Paket, Heizungs-Paket und Technologie-Paket.
Diesem Angebot liegt die beliebte Schwabenhaus-Ausbaustufe FAST VOLLENDET zugrunde. Diese kann selbstverständlich noch entsprechend Ihrer geplanten Eigenleistungen angepasst werden.
Weitere Informationen zu unseren Ausbaustufen erhalten Sie hier: https://www.schwabenhaus.de/ausbaustufen/
Lage
Das Grundstück befindet sich attraktiv gelegen im südlichen Bereich von Spangenberg. Die Lage zeichnet sich durch eine ruhige, familienfreundliche Wohnumgebung mit überwiegend gepflegter Ein- und Zweifamilienhausbebauung aus. Durch die Randlage zur offenen Landschaft bietet der Standort ein angenehmes Wohnklima mit viel Grün, Ruhe und einer naturnahen Atmosphäre.
Trotz der ruhigen Wohnlage ist die städtische Infrastruktur schnell erreichbar: Einkaufsmöglichkeiten, Schulen, Kindergärten, Ärzte und das historische Stadtzentrum von Spangenberg liegen nur wenige Minuten entfernt. Auch Freizeit- und Erholungsangebote – darunter Wanderwege, Naturbereiche und das bekannte Schloss Spangenberg – befinden sich in unmittelbarer Nähe.
Die Verkehrsanbindung ist günstig: Über die regionalen Straßen gelangt man schnell in die umliegenden Ortschaften sowie Richtung Melsungen und Kassel. Öffentliche Verkehrsmittel sind im Ort vorhanden und gut erreichbar.
Die Kombination aus ländlicher Ruhe, naturnahem Umfeld und der Nähe zu allen wichtigen Einrichtungen macht das Grundstück zu einer besonders attraktiven Lage für Familien, Paare oder Bauherren, die ein entspanntes Wohnumfeld mit guter Lebensqualität suchen. Werden Sie jetzt wohnhaft im schönen Spangenberg.
Sonstige Angaben
Vereinbaren Sie einen persönlichen Beratungstermin, um über unser Miet-Kauf-Modell zu sprechen und Ihren Haustraum umzusetzen.
Bitte beachten Sie, dass die dargestellten Bilder und Grundrisse nur beispielhaft sind und unter Umständen Sonderbauteile enthalten, die nicht im aufgerufenen Preis inkludiert sind.
Haben Sie außerdem Verständnis dafür, dass erst nach dem persönlichen Gespräch weitere Details zu dem angebotenen Grundstück bekanntgegeben werden und dass nur vollständige Anfragen bearbeitet werden können.
Anbauteile, Carport, Garage und Keller können Extras sein, die als Sonderausstattung angeboten werden. Abbildungen, Grundrisse und Flächenangaben sind beispielhaft und können Extras zeigen. Flächenangaben nach DIN 277.
Profitieren Sie jetzt von der Schwabenhaus Online Beratung und verwirklichen Sie Ihr Traumhaus https://www.schwabenhaus.de/anmeldung-hausbau-beratung-online/
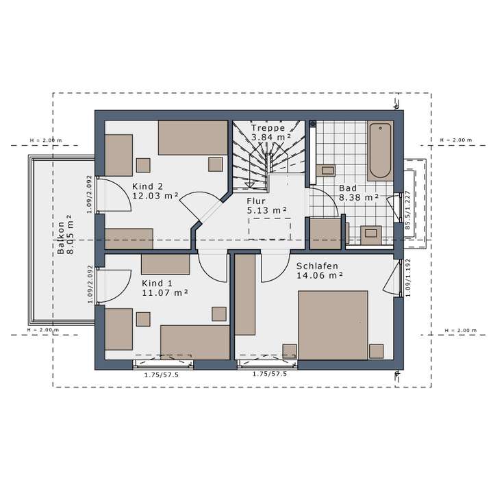
Grundriss
Grundriss Erdgeschoss
>
>
Grundriss Obergeschoss
>
>
Adresse
34286 Spangenberg
Interessante Orte
Preis- und Lageinformationen
Preistrend für Bestandsimmobilien in Spangenberg