Diese anspruchsvolle 6-Zimmer-Wohnung mit ca. 280 m² Wohnfläche befindet sich im Erd- und Obergeschoss des historischen, aber inzwischen modernen Zweifamilienhauses der Schwinkermühle bei Wolfsburg-Heiligendorf mit Keller, Dachgeschoss und überdachten Parkplätzen, sowie Werkraum. Die Wohnung bietet große, hohe Wohnräume, Türen und Fenster und verfügt über zwei große Badezimmer und 4 große Schlafzimmer. Ein besonderes Highlight ist der Zugang zum dazugehörigen Garten direkt an der Schunter. Die Wohnung ist auch für Wohngemeinschaften geeignet und Haustiere sind nach Absprache erlaubt. Die zweite Wohnung (120m²) nutzt nur der Eigentümer für sich. Er übernimmt auch gern Hausmeisteraufgaben.
Das daneben liegende Mühlengebäude ist wie Scheune und ehemaligem Pferdestall weitgehendst unbenutzt. Alle Gebäude der Schwinkermühle sind historischem Ursprungs.
Weitere Merkmale:
- Glasfaseranschluss
- Isofenster
- Echtholzfußböden
- Große moderne Wohnküche mit Kochinsel
- Weinkeller
- Trockenboden
Die Verfügbarkeit ist ab dem 1.1.2026 gegeben.
Anspruchsvolle 6-Zimmer-Wohnung in der Schwinkermühle
Schwinkermühle 1,
38444 Wolfsburg
Auf Karte anzeigen
Infos
| Wohnungskategorie | Sonstige |
|---|---|
| Wohnfläche ca. | 280 m2 |
| Nutzfläche | 330 m2 |
| Bezugsfrei ab | 1.1.2026 |
| Zimmer | 6 |
| Schlafzimmer | 4 |
| Badezimmer | 2 |
| Haustiere | Nach Vereinbarung |
| Garage/Stellplatz | Carport |
| Anzahl Garage/Stellplatz | 2 |
Kosten
| Kaltmiete |
2.500 € |
|---|---|
| Nebenkosten | + 450 € |
| Heizkosten | in Nebenkosten enthalten |
| Gesamtmiete | 2.950 € |
| Kaution o. Genossenschaftsanteile | 7.000,00 |
Weiter mieten oder doch kaufen?
Wer in Miete wohnt, überweist dem Vermieter im Laufe der Jahre hohe Summen, die sich
auch in die eigenen vier Wände investieren lassen könnten.
Bausubstanz & Energieausweis
| Baujahr | 1317 |
|---|---|
| Letzte Sanierung | 2018 |
| Objektzustand | Saniert |
| Qualität der Austattung | Gehoben |
| Heizungsart | Öl-Heizung |
| Wesentliche Energieträger | Öl |
| Energieausweis | laut Gesetz nicht erforderlich |
Beschreibung des Objekts
Lage
Das nah gelegene Heiligendorf, ein charmanter Stadtteil von Wolfsburg, bietet eine ruhige und grüne Wohnatmosphäre. Man ist gut an den öffentlichen Nahverkehr angebunden. Mit der Buslinie 201 besteht eine direkte Verbindung ins Stadtzentrum.
Diverse Einkaufsmöglichkeiten gibt es direkt im Ort sowie in der näheren Umgebung.
Schulen und Kindergärten sind in der Nähe (Kindergarten und Grundschule in Heiligendorf, weiterführende Schulen in Wolfsburg).
Sonstige Angaben
Die märchenhaft inmitten der Natur liegende historische Schwinkermühle wird umrahmt von 3 Schunter-Flussläufen mit viel Grün und Bewaldung, aber auch mit freiem Blick bis zum Elm. Neben Großzügigkeit findet man hier einen idealen Ort zum Entspannen und Regenerieren, was auch Vormieter Wout Weghorst in einer Sky-Reportage hervorgehoben hat. Das Video zeigt auch die mit einer Drohne aufgenommene, umgebene weitläufige Naturlandschaft.
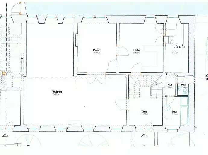
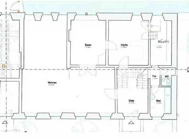
Grundriss
Grundriss Erdgeschoss
>
>
Grundriss Obergeschoss
>
>
Adresse
Schwinkermühle 1, 38444 Wolfsburg
Interessante Orte
Preis- und Lageinformationen
Preistrend für Bestandsimmobilien in Heiligendorf