Zur Vermietung steht hier ein frisch modernisiertes Einfamilienhaus in Leipzig- Portitz.
Das Haus wurde ca. 1985 auf einem ca. 1.000qm großen Grundstück als Hoch- Bungalow mit Vollkeller und einer Garage errichtet.
Das helle und sehr freundliche Einfamilienhaus wurde frisch modernisiert, eine zeitgemäße Luft- Wasser- Wärmepumpe verbaut, neuer Laminat- Bodenbelag verlegt, weiß tapeziert und gemalert, das Dusch- Badezimmer erneuert und die Elektrik überarbeitet. Sie haben hier die Möglichkeit einen Erstbezug nach umfangreicher Modernisierung anzumieten.
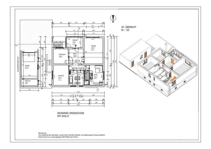
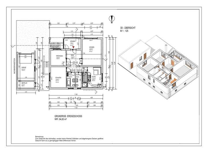
Das Gebäude verfügt über 3 gut belichtete Zimmer, 1 Duschbadezimmer, 1 Badezimmer mit Badewanne sowie eine Küche, welche sich auf ca. 95qm verteilen.
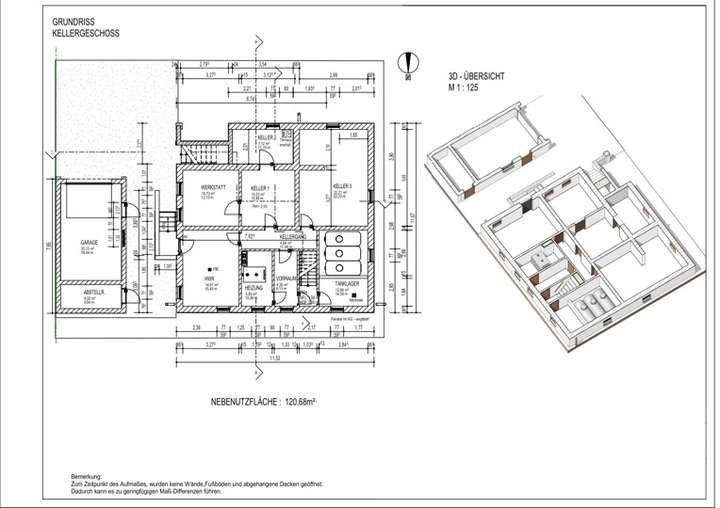
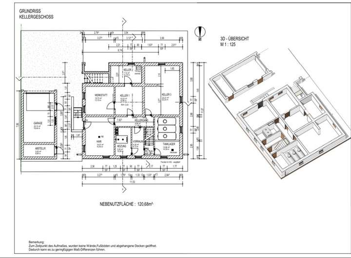
Hinzu kommt eine Nutzfläche im Hochkeller mit weiteren ca. 121 qm. Der Zugang zum Hochkeller erfolgt ebenerdig vom Grundstück (der Keller liegt somit NICHT unter der Erde), der Keller verfügt über Tageslichtfenster, ein weiteres Bad mit Duschmöglichkeit und ist beheizbar. Entsprechend eignet sich dieser z.B. als Home- Office, Hobbyraum, etc.
Das nach Süden ausgerichtete Grundstück ist bereits gärtnerisch schön und zugleich pflegeleicht angelegt, ein Gewächshaus ist ebenfalls vorhanden. Eine Garage mit elektrischem Tor gestattet es bei Bedarf z.B. ein Elektroauto zu laden (normaler 230V- Steckdosen).
Hervorzuheben ist die sehr familienfreundliche Lage, welche sich hervorragend für Kinder eignet.
Der Eigentümer ist an einer langjährigen Anmietung interessiert. Die Mindestmietzeit beträgt 24 Monate.
Frisch modernisiertes Einfamilienhaus mit Wärmepumpe und großem Grundstück in Portitz
04349 Leipzig
Die vollständige Adresse der Immobilie erhalten Sie vom Anbieter.
Auf Karte anzeigen
Die vollständige Adresse der Immobilie erhalten Sie vom Anbieter.
Infos
| Haustyp | Einfamilienhaus |
|---|---|
| Wohnfläche ca. | 95 m2 |
| Nutzfläche | 121 m2 |
| Grundstücksfläche | 1.000 m2 |
| Zimmer | 3 |
| Badezimmer | 2 |
| Garage/Stellplatz | Garage |
| Anzahl Garage/Stellplatz | 1 |
Kosten
| Kaltmiete |
2.100 € |
|---|---|
| Nebenkosten | + 150 € |
| Heizkosten | keine Angabe |
| Gesamtmiete | 2.250 € (zzgl. Heizkosten) |
Weiter mieten oder doch kaufen?
Wer in Miete wohnt, überweist dem Vermieter im Laufe der Jahre hohe Summen, die sich
auch in die eigenen vier Wände investieren lassen könnten.
Bausubstanz & Energieausweis
| Baujahr | 1985 |
|---|---|
| Letzte Sanierung | 2025 |
| Objektzustand | Erstbezug nach Sanierung |
| Qualität der Austattung | Gehoben |
| Wesentliche Energieträger | Umweltwärme |
| Energieausweis | liegt zur Besichtigung vor |
Beschreibung des Objekts
Ausstattung
- Einbauküche
- Terrasse
- Garage
- Brunnen
- Heizungsart: Wärmepumpe
- Frei ab sofort
Erstbezug nach Komplettsanierung:
- Heizung (Wärmepumpe)
- Sanitär
- Elektro
- Decken
- Bodenbeläge / Fliesen
- Malerarbeiten
Lage
Das Einfamilienhaus befindet sich im beliebten Leipziger Stadtteil Portitz – einer ruhigen und familienfreundlichen Wohngegend im Nordosten Leipzigs. Die Umgebung ist geprägt von gepflegten Ein- und Zweifamilienhäusern, viel Grün sowie einer angenehmen, nachbarschaftlichen Atmosphäre.
Portitz bietet eine sehr gute Anbindung an die Leipziger Innenstadt sowie die umliegenden Stadtteile. Über die nahegelegene B87 und die Autobahn A14 sind sowohl das Stadtzentrum als auch wichtige Verkehrsachsen schnell erreichbar. Der öffentliche Nahverkehr ist hervorragend angebunden – Bus- und Straßenbahnlinien bringen Sie bequem in die City und zu allen wichtigen Einrichtungen des täglichen Lebens.
Im direkten Umfeld befinden sich Einkaufsmöglichkeiten, Bäcker, Ärzte, Apotheken sowie verschiedene Dienstleister, die den Alltag komfortabel gestalten. Familien profitieren besonders von den Schulen und Kindertagesstätten in der Nähe sowie dem vielseitigen Freizeitangebot. Zahlreiche Grünflächen, der Naturraum entlang der Parthe sowie Sport- und Spielplätze laden zu Spaziergängen, sportlichen Aktivitäten und entspannten Stunden im Freien ein.
Der Standort vereint ruhiges, naturnahes Wohnen mit guter Infrastruktur und Stadtnähe – ideal für Paare und Familien, die Wert auf Lebensqualität und Erholung legen, ohne dabei auf die Vorzüge einer Großstadt verzichten zu müssen.
Grundriss
Grundriss EFH Portitz- Keller
>
>
Grundriss EFH Portitz
>
>
Adresse
04349 Leipzig
Interessante Orte
Preis- und Lageinformationen
Preistrend für Bestandsimmobilien in Plaußig-Portitz