Wir vermieten eine Doppelhaushälfte auf Bodenplatte.
Das Haus ist nicht möbliert, Küche etc. sind vom Mieter einzubauen.
Erdgeschoss:
Wohnen, Kochen offen, Diele, Gäste-WC, HWR-Technikraum
Obergeschoss:
Bad mit Dusche, Flur, Kind 1, Kind 2, Eltern
Dachgeschoss:
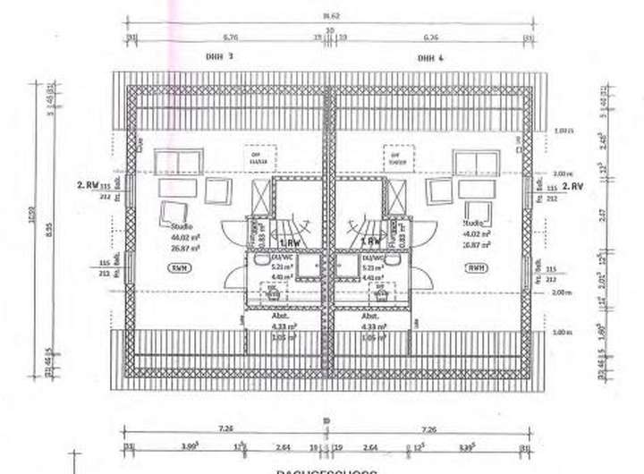
abgeschlossenes großes Studio, Flur, WC mit Dusche
Hattenhofen-Haspelmoor - grosszügige Doppelhaushälfte mit großem Garten zu vermieten !
82285 Hattenhofen
Die vollständige Adresse der Immobilie erhalten Sie vom Anbieter.
Auf Karte anzeigen
Die vollständige Adresse der Immobilie erhalten Sie vom Anbieter.
Infos
| Haustyp | Doppelhaushaelfte |
|---|---|
| Etagenzahl | 3 |
| Wohnfläche ca. | 163 m2 |
| Nutzfläche | 0 m2 |
| Grundstücksfläche | 392 m2 |
| Zimmer | 5 |
| Schlafzimmer | 4 |
| Badezimmer | 2 |
| Anzahl Garage/Stellplatz | 2 |
Kosten
| Kaltmiete |
2.190 € |
|---|---|
| Nebenkosten | + 110 € |
| Heizkosten | + 80 € |
| Gesamtmiete | 2.380 € |
| Kaution o. Genossenschaftsanteile | 6.570,00 |
Weiter mieten oder doch kaufen?
Wer in Miete wohnt, überweist dem Vermieter im Laufe der Jahre hohe Summen, die sich
auch in die eigenen vier Wände investieren lassen könnten.
Bausubstanz & Energieausweis
| Baujahr | 2018 |
|---|---|
| Heizungsart | Fußbodenheizung |
| Wesentliche Energieträger | Strom |
| Energieausweis | liegt vor |
| Energieausweistyp | Bedarfsausweis |
| Energieverbrauchskennwert | 15,0 kWh/(m²*a) |
| Energieeffizienzklasse | A+ |
15,0
kWh/(m²*a)
Energieeffizienzklasse A+
- A+
- A
- B
- C
- D
- E
- F
- G
- H
- 0
- 25
- 50
- 75
- 100
- 125
- 150
- 175
- 200
- 225
- >250
Beschreibung des Objekts
Ausstattung
Alle Stockwerke haben Fußbodenheizung und sind mit Bodenfliesen ausgestattet,
moderne Technik - Luftwasserwärmepumpe mit Lüftungsanlage,
Fenster verfügen über elektrische Rollläden,
die Doppelhaushälfte hat einen eigenen Hauseingang mit Garten sowie 2 Carports, dahinter einen Abstellraum.
Lage
Ortsteil Haspelmoor-Nord, Gemeinde Hattenhofen gehört zur Verwaltungsgemeinschaft Mammendorf, im Landkreis Fürstenfeldbruck.
Einwohner ca. 1.624 (Stand: 17.05.2023)
Schule und Kindergarten am Ort
14 km (rd. 15 Minuten mit dem Auto) nach Fürstenfeldbruck
21 km (rd. 23 Minuten mit dem Auto) zum Ammersee nach Stegen
57 km (rd. 50 Minuten) mit dem Auto nach München (Zentrum)
Bahnhof Haspelmoor in direkter Nähe (ca. 100m)hält die Regionalbahn München–Augsburg. Die durchschnittliche Fahrzeit von Haspelmoor nach München Hbf. beträgt ca. 32 Minuten, die schnellste Fahrt dauert ca. 23 Minuten.
Sonstige Angaben
Besichtigungstermine nach telefonischer Absprache möglich,
bitte Selbstauskunft vor oder spätestens zur Besichtigung mitbringen. Ein Formular stellen wir gerne zur Verfügung.
Das Haus wird an einen maximalen 4-Personhaushalt vermietet.
Vermietet wird vom Eingang aus gesehen die linke Doppelhaushälfte.
Der Einzug kann zum 01.03.2026 bzw. nach Absprache mit dem Eigentümer, erfolgen.
Angebote erfolgen freibleibend und unverbindlich, Änderungen, Irrtümer bleiben ausdrücklich vorbehalten.
Maßangaben sind am Objekt zu nehmen, alle Flächen, m²-Angaben, Maßangaben sind ca.-Angaben.
Zu den Nebenkosten kommen noch die üblichen Stromkosten und ihre Telefonkosten etc. hinzu.
In der Wohnflächenangabe ist 1/4 der Terrassenfläche beinhaltet.
--->Wir bitten bei Anfragen um Angaben zur Haushaltsgröße, Beruf und den Einkommensverhältnissen.
Grundriss
Erdgeschoss.JPG
>
>
Obergeschoss.JPG
>
>
Dachgeschoss.JPG
>
>
Adresse
82285 Hattenhofen
Interessante Orte
Preis- und Lageinformationen
Preistrend für Bestandsimmobilien in Hattenhofen