Dieses exklusive Einfamilienhaus in Holzbauweise bietet auf ca. 131 m² Wohnfläche und 2 Vollgeschossen höchsten Wohnkomfort. Das Haus wurde im Jahr 2024 erbaut und befindet sich in einem Erstbezug-Zustand mit gehobener Innenausstattung. Es verfügt über 6 Zimmer, 1 großes Badezimmer und ein separates Gäste-WC mit Dusche. Es ist außerdem mit einer modernen Küche ausgestattet und die Wohlfühltemperatur kommt von einer effizienten Erdwärme-Heizung. Besondere Highlights sind der große überdachte Eingangsbalkon (31 qm) - ideal für Fahrräder etc. - und der Südbalkon mit großer Freitreppe in den eigenen Garten. Das Haus wird ab dem 01.01.2026 bezugsfrei. Haustiere und Rauchen sind nicht gestattet.
Neuwertiges 6-Zimmer Einfamilienhaus mit 131 m² in Überlingen-Deisendorf
Im Gehren 9,
88662 Überlingen
Auf Karte anzeigen
Infos
| Haustyp | Einfamilienhaus |
|---|---|
| Etagenzahl | 2 |
| Wohnfläche ca. | 131 m2 |
| Nutzfläche | 141 m2 |
| Grundstücksfläche | 905 m2 |
| Bezugsfrei ab | 1.1.2026 |
| Zimmer | 6 |
| Schlafzimmer | 3 |
| Badezimmer | 2 |
| Haustiere | Nach Vereinbarung |
Kosten
| Kaltmiete |
2.300 € |
|---|---|
| Nebenkosten | + 250 € |
| Heizkosten | + 80 € |
| Gesamtmiete | 2.630 € (zzgl. Heizkosten) |
| Kaution o. Genossenschaftsanteile | 6.9 |
Weiter mieten oder doch kaufen?
Wer in Miete wohnt, überweist dem Vermieter im Laufe der Jahre hohe Summen, die sich
auch in die eigenen vier Wände investieren lassen könnten.
Bausubstanz & Energieausweis
| Baujahr | 2024 |
|---|---|
| Objektzustand | Erstbezug |
| Qualität der Austattung | Gehoben |
| Heizungsart | Wärmepumpe |
| Wesentliche Energieträger | Erdwärme |
| Energieausweis | liegt vor |
| Energieausweistyp | Bedarfsausweis |
| Energieverbrauchskennwert | 16,0 kWh/(m²*a) |
| Energieeffizienzklasse | A+ |
16,0
kWh/(m²*a)
Energieeffizienzklasse A+
- A+
- A
- B
- C
- D
- E
- F
- G
- H
- 0
- 25
- 50
- 75
- 100
- 125
- 150
- 175
- 200
- 225
- >250
Beschreibung des Objekts
Ausstattung
Zwei Duschen und eine große Badewanne für zwei, runde Spiegel mit Ringbeleuchtung und Heizkörper als Handtuchhalter in den Bädern, Stellplätze und Anschlüsse für Waschmaschine und Trockner, Fließen im Eingangsbereich, Laminat im Erdgeschoss, Teppich im Obergeschoss. Fußbodenheizung und zentrale Lüftungsanlage mit Wärmerückgewinnung, Elektrische programmierbare Rollläden und Jalousien. Bodentiefe Fenster. Photovoltaik mit Notstromversorgung. Satelitensignal (Astra). Tau- und Trocknungsinfrarotstrahler auf dem Eingangsbalkon.
Küche:
Schicke, zweiteilige Einbauküche mit Induktionsherd, freihängender Dunstabzugshaube, Backofen, großer Spülmaschine, hohem Kühlschrank und Gefrierschrank, Küchenmole mit Stehtisch, Speisekammer und jeder Menge Stauraum. Die Küche ist neu und mit 12.960 EUR abzulösen. Sie wird damit Eigentum des Mieters und kann bei Auszug wieder abgelöst werden. Rechnung mit 5 Jahre Garantie (Jul.2025) auf Einbaugeräte liegt vor.
Lage
Das Objekt befindet sich in Überlingen-Deisendorf in Ortsrandlage mit Blick auf Wiesen und Wälder. In 15 Min. fährt man mit dem Rad durch den Wald nach Nußdorf an den Bodensee zum Strandbad. In 15 Min. geht man zu Fuß über die Felder zur Waldorfschule Rengoldshausen. Nach Überlingen Downtown sind es 4 km. Die Buslinien 100, 5 und 7381 sind fußläufig zu erreichen. Auch zwei Fitnessstudios gibt es in der Nähe. Weiter entfernt finden Sie zudem diverse Einkaufsmöglichkeiten. Einige Museen, eine gute medizinische Versorgung, diverse Erholungs- und Sportangebote und gute Ausgehmöglichkeiten gibt es schließlich ebenfalls im größeren Umkreis.
Sonstige Angaben
Schauen Sie auf unsere Hausseite für weitere Informationen: bodenseeraum.eu
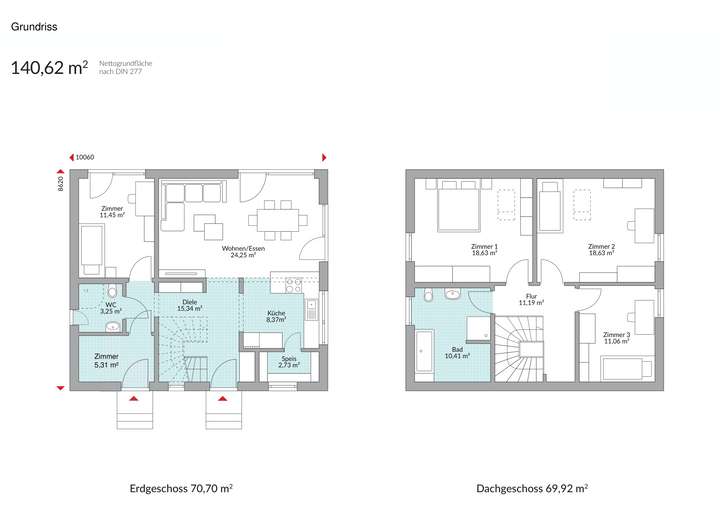
Grundriss
schematischer Grundriss
>
>
Adresse
Im Gehren 9, 88662 Überlingen
Interessante Orte
Preis- und Lageinformationen
Preistrend für Bestandsimmobilien in Überlingen