Hochwertig und modern: Dein Haus mit Garten, zwei Bädern, Gäste-WC und Einbauküche. Für komfortables und nachhaltiges Wohnen.
Im Januar werden bereits die ersten Bewohner ihr neues Zuhause beziehen.
Aktuell nimmt dein neues Zuhause weiter Gestalt an. Die Außenanlagen werden derzeit angelegt und verleihen dem Wohnensemble zunehmend sein endgültiges Erscheinungsbild. Zudem steht der nächste wichtige Bauabschnitt bevor: Ende des Monats werden die Häuser an die Versorgungsleitungen angeschlossen, sodass ein weiterer bedeutender Schritt Richtung Fertigstellung erreicht wird.
Jede Wohneinheit überzeugt durch hochwertige, stilvolle Ausstattung und clevere Details für deinen Alltag. Design-Vinylböden, elektrische Rollläden und moderne Sanitärelemente in den Bädern sorgen für echtes Wohlfühlambiente. Großzügige Wohnflächen, praktische Gartenboxen und vorgelagerte Schränke bieten dir extra viel Komfort und Stauraum.
Design-Vinyl-Boden
Moderne Fliesen in Bädern und Eingangsbereich
Vorgarten- und Terrassenschrank sowie Gartenbox
PKW-Stellplatz – vorbereitet für E-Mobilität
Glasfaseranschluss
Photovoltaikanlage und Luft-Wasser-Wärmepumpe
In deiner neuen Küche wird Kochen zum Erlebnis: modern, funktional und stilvoll eingerichtet – hier passt einfach alles. Hochwertige Markengeräte (Backofen, Induktionsfeld, Dunstabzugshaube, Geschirrspüler, Kühl-Gefrierkombi und Umluftfilter) von deutschen Herstellern bringen dir Leistung, auf die du dich im Alltag verlassen kannst. Deine Arbeitsplatte bietet viel Platz zum Vorbereiten, und clevere Stauraumlösungen bringen Ordnung und machen deinen Küchenalltag leichter.
Besichtigung unter: https://www.timum.de/page/afe7073d-5666-4904-9bd8-a3cd805978e0
Willkommen im neuen Lebenskapitel! Sei Gärtner, sei Griller, sei Familie - MoVida Haus zur Miete.
Von-Stephan-Straße 130,
52428 Jülich
Auf Karte anzeigen
Infos
| Etagenzahl | 3 |
|---|---|
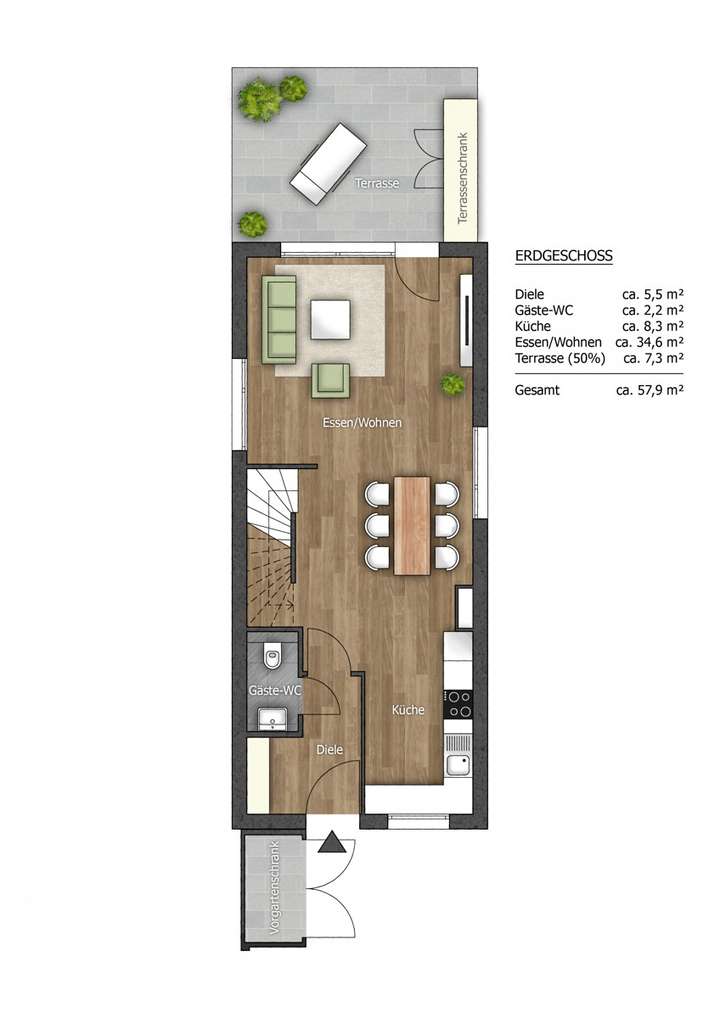
| Wohnfläche ca. | 145 m2 |
| Bezugsfrei ab | Januar 2026 |
| Zimmer | 5 |
| Schlafzimmer | 4 |
| Badezimmer | 2 |
| Haustiere | Nach Vereinbarung |
Kosten
| Kaltmiete |
1.770 € |
|---|---|
| Nebenkosten | + 290 € |
| Heizkosten | in Nebenkosten enthalten |
| Gesamtmiete | 2.110 € |
| Kaution o. Genossenschaftsanteile | 5460 |
Weiter mieten oder doch kaufen?
Wer in Miete wohnt, überweist dem Vermieter im Laufe der Jahre hohe Summen, die sich
auch in die eigenen vier Wände investieren lassen könnten.
Bausubstanz & Energieausweis
| Baujahr | 2025 |
|---|---|
| Objektzustand | Erstbezug |
| Qualität der Austattung | Luxus |
| Heizungsart | Wärmepumpe |
| Energieausweis | liegt vor |
| Energieausweistyp | Bedarfsausweis |
| Energieverbrauchskennwert | 49,0 kWh/(m²*a) |
| Energieeffizienzklasse | A |
49,0
kWh/(m²*a)
Energieeffizienzklasse A
- A+
- A
- B
- C
- D
- E
- F
- G
- H
- 0
- 25
- 50
- 75
- 100
- 125
- 150
- 175
- 200
- 225
- >250
Beschreibung des Objekts
Ausstattung
Hochwertig und modern: Dein Haus mit Garten, zwei Bädern, Gäste-WC und Einbauküche. Für komfortables und nachhaltiges Wohnen.
Jede Wohneinheit überzeugt durch hochwertige, stilvolle Ausstattung und clevere Details für deinen Alltag. Design-Vinylböden, elektrische Rollläden und moderne Sanitärelemente in den Bädern sorgen für echtes Wohlfühlambiente. Großzügige Wohnflächen, praktische Gartenboxen und vorgelagerte Schränke bieten dir extra viel Komfort und Stauraum.
Design-Vinyl-Boden
Moderne Fliesen in Bädern & Eingangsbereich
Vorgarten- und Terrassenschrank sowie Gartenbox
PKW-Stellplatz – vorbereitet für E-Mobilität
Glasfaseranschluss
Photovoltaikanlage & Luft-Wasser-Wärmepumpe
In deiner neuen Küche wird Kochen zum Erlebnis: modern, funktional und stilvoll eingerichtet – hier passt einfach alles. Hochwertige Markengeräte (Backofen, Induktionsfeld, Dunstabzugshaube, Geschirrspüler, Kühl-Gefrierkombi & Umluftfilter) von deutschen Herstellern bringen dir Leistung, auf die du dich im Alltag verlassen kannst. Deine Arbeitsplatte bietet viel Platz zum Vorbereiten, und clevere Stauraumlösungen bringen Ordnung und machen deinen Küchenalltag leichter.
Lage
Die Von-Stephan-Straße liegt in einem angenehm ruhigen Wohngebiet nördlich vom Zentrum von Jülich – einer charmanten Stadt im Kreis Düren. Urbanes Leben in naturnaher Umgebung werden hier vereint. Geprägt von modernen Einfamilienhäusern, gepflegten Gärten und viel Grün bietet das Viertel eine attraktive Mischung aus Stadtnähe und entspannter Wohnatmosphäre.
Die Verkehrsanbindung ist gut: Über die B56 und die A44 erreicht man Aachen, Köln oder Düsseldorf schnell und bequem. Der nahegelegene Bahnhof Jülich bietet direkten Anschluss ans regionale Bahnnetz, ergänzt durch ein gut ausgebautes Busnetz mit den Linien 220, 270, SB20 sowie SB70.
Familien profitieren von einer hervorragenden Infrastruktur: Kitas, Schulen aller Stufen sowie vielfältige Einkaufsmöglichkeiten – von Supermärkten, Restaurants über Apotheken bis zu Bäckereien – sind in unmittelbarer Nähe. Das Krankenhaus Jülich rundet die Versorgungsinfrastruktur mit ebenfalls niedergelassenen Arztpraxen jeglicher Fachrichtung ab.
Sportvereine, ein modernes Hallenbad, Bibliotheken und Jugendzentren stärken das familienfreundliche Angebot.
Der Brückenkopf-Park mit Zoo, Spielplätzen und Veranstaltungen lädt zur aktiven Erholung ein. Auch die Jülicher Innenstadt mit ihrem historischen Flair, gemütlichen Cafés und Wochenmärkten überzeugt. Die Rur mit ihren Rad- und Wanderwegen bietet ideale Bedingungen für Naturfreunde.
Jülich punktet zudem als Forschungs- und Bildungsstandort: Mit dem renommierten Forschungszentrum Jülich und der FH Aachen – Campus Jülich – ist die Stadt ein bedeutender Innovationsstandort. Jüngst wurde Brainergy installiert, ein Hotspot für Start-ups und Innovation auf fast 10.000 m². Das schafft nicht nur Arbeitsplätze, sondern auch ein lebendiges, zukunftsorientiertes Umfeld.
Insgesamt vereint das „Wohnquartier Von-Stephan-Straße“ ruhiges Wohnen mit guter Anbindung, hoher Lebensqualität und dem lebendigen Geist einer wachsenden Stadt – ideal für Familien, Berufstätige und Ruhesuchende.
Sonstige Angaben
Du wohnst modern und energieeffizient im KfN-40-Standard. Das nachhaltige Energiekonzept mit unserem Partner OVE sorgt für niedrige Nebenkosten und schont die Umwelt. Eine zentrale Wärmepumpe liefert nachhaltige Nahwärme. Der Strom stammt überwiegend aus der eigenen Photovoltaikanlage; überschüssige Energie wird an die einzelnen Häuser verteilt. Das ermöglicht eine besonders effiziente Nutzung der Ressourcen und sorgt für energieeffizientes Wohnen.
Bitte beachten Sie die Mindestmietdauer von 24 Monaten.
Was ist die Mietbelastungsquote? Diese beschreibt das Verhältnis zwischen dem Haushaltsnettoeinkommen und der Warmmiete. Die Mietbelastungsquote beträgt 40 %. Mehr Informationen finden Sie auf unserer Webseite.
Die Besichtigung der Einfamilienhäuser im Rohbauzustand in Jülich ist selbstverständlich möglich, erfolgt jedoch auf eigene Verantwortung. Wir stellen Ihnen gerne Bauhelme zur Verfügung, bitten aber um Verständnis, dass wir für mögliche Schäden oder Verletzungen während der Besichtigung keine Haftung übernehmen können.
Bitte tragen Sie festes Schuhwerk, da dies aus Sicherheitsgründen erforderlich ist.
Wir möchten zudem darauf hinweisen, dass Kindern unter 10 Jahren der Zutritt zur Baustelle leider nicht gestattet ist.
Bei den Fotos handelt es sich um Beispielbilder eines Musterhauses. Unser Musterhaus steht Ihnen ab Ende November zur Verfügung.
Weitere Dokumente
EnergieausweisGrundriss
17 Grundriss EG
>
>
18 Grundriss OG
>
>
19 Grundriss DG
>
>
Adresse
Von-Stephan-Straße 130, 52428 Jülich
Interessante Orte
Preis- und Lageinformationen
Preistrend für Bestandsimmobilien in Jülich