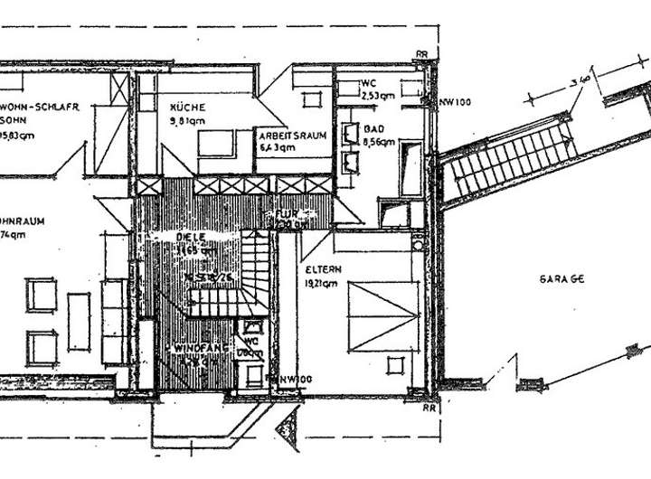
Dieses freistehende Einfamilienhaus befindet sich in einem reinen Wohngebiet in bevorzugter Lage und bietet zahlreiche Nutzungsmöglichkeiten. Mit einer Wohnfläche von 203 m² erstreckt sich die Immobilie über 5 Zimmer, Küche, Diele, Flur, 2 Bäder und ein Gäste-WC. Der großzügige Grundriss ermöglicht eine flexible Raumgestaltung und teilweise gewerbliche Nutzung, ideal für ein Kosmetikstudio, Therapieräume oder Büros. Eine räumliche Trennung ist möglich, um den privaten und beruflichen Bereich zu separieren.
Das Wohnzimmer ist mit einem gemütlichen Kamin ausgestattet, der für angenehme Wärme sorgt. Die vorhandene Einbauküche bietet alle Annehmlichkeiten für das tägliche Kochen.
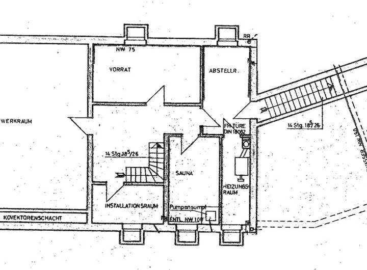
Im Untergeschoss befinden sich eine Sauna mit Nasszelle sowie ein großer Hobbyraum, der vielfältige Freizeitmöglichkeiten eröffnet. Eine Treppe verbindet den Keller direkt mit der großzügigen Doppelgarage, die ausreichend Platz für Fahrzeuge bietet. Zwei Törchen im rückwärtigen Bereich des Gartens führen zu einem Schiebeweg und erleichtern den Zugang von außen.
Der uneinsehbare Garten bietet Privatsphäre und lädt zum Entspannen im Freien ein. Diese Immobilie vereint Wohnkomfort mit vielseitigen Nutzungsmöglichkeiten und ist ideal für Familien oder Selbstständige, die Wohnen und Arbeiten unter einem Dach verbinden möchten.
Geldern: Großzügiges Wohnen in begehrter Lage oder Arbeiten und Wohnen in einem Haus
47608 Geldern
Die vollständige Adresse der Immobilie erhalten Sie vom Anbieter.
Auf Karte anzeigen
Die vollständige Adresse der Immobilie erhalten Sie vom Anbieter.
Infos
| Haustyp | Einfamilienhaus |
|---|---|
| Etagenzahl | 2 |
| Wohnfläche ca. | 203 m2 |
| Grundstücksfläche | 776 m2 |
| Zimmer | 5 |
| Schlafzimmer | 4 |
| Badezimmer | 2 |
| Garage/Stellplatz | Garage |
| Anzahl Garage/Stellplatz | 2 |
Kosten
| Kaltmiete |
1.900 € |
|---|---|
| Nebenkosten | + 300 € |
| Heizkosten | keine Angabe |
| Gesamtmiete | 2.200 € |
| Kaution o. Genossenschaftsanteile | 3800.00 EUR |
Weiter mieten oder doch kaufen?
Wer in Miete wohnt, überweist dem Vermieter im Laufe der Jahre hohe Summen, die sich
auch in die eigenen vier Wände investieren lassen könnten.
Bausubstanz & Energieausweis
| Baujahr | 1974 |
|---|---|
| Objektzustand | Gepflegt |
| Energieausweis | liegt zur Besichtigung vor |
Beschreibung des Objekts
Ausstattung
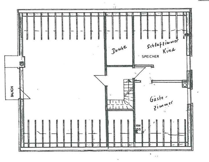
offener Kamin im Wohnzimmer, Einbauküche, großes Studio mit Balkon, großer Hobbyraum im Keller, Sauna mit geräumiger Nasszone, Marmorboden im Eingangsbereich, Kirschholzparkettboden im Wohnzimmer, Küche gefliest, Laminatboden im Studio, Bäder mit Spiegelschränken, Gäste-Toilette, Deckenspots im Wohnzimmer
Lage
Begehrte Lage in Geldern. Dieser Teil des Haagschen Feldes ist völlig ohne Durchgangsverkehr. Allerdings grenzt der Garten an eine innerörtliche Umgehungsstraße. Man erreicht in wenigen Minuten Wanderwege der nahen Niers und des großen Golfplatzes Schloss Haag.
Das überörtliche Straßennetz ist hervorragend angebunden. Vom etwa 1 km entfernten Bahnhof pendelt der Niersexpress alle 30 Minuten nach Düsseldorf Hauptbahnhof und Kleve.
Grundriss
Grundriss EG
>
>
Grundriss OG
>
>
Grundriss KG
>
>
Adresse
47608 Geldern
Interessante Orte
Preis- und Lageinformationen
Preistrend für Bestandsimmobilien in Geldern