Dieses moderne Neubau-Mehrfamilienhaus in Berlin-Spandau wird ab 2025 erstmals bezugsfertig sein und bietet einem Großmieter die seltene Gelegenheit, ein vollständig neues Wohnensemble exklusiv als Gesamtobjekt anzumieten. Der massiv errichtete Neubau erfüllt alle Anforderungen an zeitgemäßes, effizientes und komfortables Wohnen. Mit zehn regulären Wohneinheiten sowie zwei zusätzlich nutzbaren Souterraineinheiten eröffnet das Gebäude vielfältige Möglichkeiten – ideal für Unternehmen zur zentralen Mitarbeiterunterbringung, für Projektgesellschaften mit wechselnden Teams oder institutionelle Vermieter, die das Haus vollständig eigenständig bewirtschaften möchten.
Die insgesamt rund 980 m² Wohn- und Nutzfläche verteilen sich auf überwiegend großzügige Drei-Zimmer-Wohnungen mit etwa 72 m² sowie zwei helle Dachgeschossapartments mit rund 56 m², bestens geeignet für leitende Mitarbeitende oder Langzeitnutzer. Die reine Wohnfläche umfasst ca. 784 m². Die zwei Souterraineinheiten mit insgesamt 140 m² können flexibel als Büro-, Verwaltungs- oder Gemeinschaftsflächen, als Lager oder zur Erweiterung der Wohnkapazitäten dienen.
Alle Wohnungen sind hochwertig ausgestattet und bieten modernen Wohnkomfort. Große, dreifach verglaste Fenster sorgen für viel Licht und ein energieeffizientes Raumklima. Fußbodenheizung, moderne Heiztechnik und eine sehr gute Wärmedämmung garantieren niedrige Betriebskosten – ein entscheidender Vorteil für Großmieter. Hochwertiges Laminat, Einbauküchen und Tageslichtbäder runden die Ausstattung ab. Ein Aufzug erschließt alle Etagen barrierefrei und erleichtert sowohl Logistik als auch Bewohnbarkeit.
Besonders attraktiv sind die großzügigen Außenflächen: Jede Wohnung verfügt mindestens über einen Balkon, im Regelgeschoss sogar über zwei, während die Dachgeschosswohnungen jeweils einen Balkon mit Blick in die ruhige Umgebung bieten. Ein gemeinschaftlich nutzbarer Gartenbereich hinter dem Haus steigert zusätzlich die Aufenthaltsqualität.
Dank seiner klaren Struktur, der hochwertigen Bauweise und der modernen technischen Ausstattung eignet sich das Objekt hervorragend für eine langfristige Gesamtanmietung. Ob für große Mitarbeitendenteams, Firmenwohnungen, projektbasierte Belegung oder ein eigenes Vermietungskonzept – dieses Haus bietet maximale Flexibilität und Zukunftssicherheit. Die Lage in Berlin-Spandau ist verkehrsgünstig und zugleich ruhig, was Unternehmen eine attraktive Wohnumgebung für ihre Mitarbeitenden ermöglicht.
*** Für die Vermietung des Gesamtobjekts wird eine kalkulierte Kaltmiete von 30 € pro m² für unmöblierte Wohnungen und 40 € pro m² für möblierte Einheiten angesetzt. ***
Die gesamte Miete unmöbliert wäre = 23.520€
Die gesamte Miete möbliert wäre = 31.360€
Dazu kommen noch 2 Souterraineinheiten die optional zur Verfügung stehen.
Jede Wohnung nimmt eine Kaution von 3 Nettokaltmieten.
Das Objekt stellt eine seltene Gelegenheit dar, ein komplettes Neubau-Mehrfamilienhaus im Erstbezug exklusiv anzumieten. Gerne stellen wir Ihnen weitere Informationen zur Verfügung und entwickeln mit Ihnen ein maßgeschneidertes Mietkonzept, das optimal zu den Anforderungen Ihres Unternehmens oder Ihres Investmentmodells passt.
Zeitgemäßer Neubau in Berlin-Spandau – ideales Investment
13597 Berlin
Die vollständige Adresse der Immobilie erhalten Sie vom Anbieter.
Auf Karte anzeigen
Die vollständige Adresse der Immobilie erhalten Sie vom Anbieter.
Infos
| Haustyp | Mehrfamilienhaus |
|---|---|
| Wohnfläche ca. | 980 m2 |
| Nutzfläche | 196 m2 |
| Grundstücksfläche | 580 m2 |
| Bezugsfrei ab | sofort |
| Zimmer | 35 |
| Schlafzimmer | 23 |
| Badezimmer | 12 |
Kosten
| Kaltmiete |
23.520 € |
|---|---|
| Nebenkosten | + 2.500 € |
| Heizkosten | in Nebenkosten enthalten |
| Gesamtmiete | 26.020 € |
| Kaution o. Genossenschaftsanteile | 3 Nettokaltmieten |
Weiter mieten oder doch kaufen?
Wer in Miete wohnt, überweist dem Vermieter im Laufe der Jahre hohe Summen, die sich
auch in die eigenen vier Wände investieren lassen könnten.
Bausubstanz & Energieausweis
| Baujahr | 2025 |
|---|---|
| Objektzustand | Erstbezug |
| Qualität der Austattung | Luxus |
| Heizungsart | Fußbodenheizung |
| Wesentliche Energieträger | Gas |
Beschreibung des Objekts
Ausstattung
•Baujahr 2025
•10 Wohneinheiten + 2 zusätzliche Einheiten im Souterrain
•Ca. 784 m² Wohnfläche + ca. 196 m² Nutzfläche
•Ca. 580 m² Grundstücksgröße
•Barrierefreies Gebäude
•Aufzug in alle Etagen
•3-Zimmer-Wohnungen mit ca. 72m² Wohnfläche
•Zwei Dachgeschosswohnungen mit ca. 72m² Grundfläche und ca. 56 m² Wohnfläche
•Balkone: 2 pro Wohnung (Nordost & Südwest), Dachgeschoss 1 Balkon
•Fußbodenheizung in allen Wohnungen
•Hybridheizung + Luftwärmepumpe + Gas-Zentralheizung
•Moderne Wärmedämmung
•3-fach-verglaste Fenster
•Hochwertiges Laminat
•Einbauküchen
•Tageslichtbäder
•Gemeinschaftsgarten
•Kaltmiete von 30 € pro m² für unmöblierte Wohnungen
•Kaltmiete von 40 € pro m² für möblierte Wohnungen
•Kaltmiete für 10 WHG unmöbliert = 23.520€ + Optional 2 Souterrain WHG
•Kaltmiete für 10 WHG möbliert = 31.360€ + Optional 2 Souterrain WHG
•Nebenkosten ca. 250€ pro Wohnung
•Kaution von 3 Nettokaltmieten pro Wohnung
Lage
Das Mehrfamilienhaus befindet sich im Berliner Bezirk Spandau, einer der beliebtesten Wohnlagen im Westen der Hauptstadt. Spandau verbindet gewachsenen Urbanismus mit ruhigen Wohnquartieren, einer exzellenten Verkehrsanbindung und einer ausgeprägten Versorgungsstruktur.
In unmittelbarer Nähe befinden sich zahlreiche Einkaufsmöglichkeiten des täglichen Bedarfs – darunter große Fachmärkte wie IKEA, MediaMarkt und Bauhaus. Die ÖPNV-Anbindung ist hervorragend: Eine Bushaltestelle liegt nur wenige Gehminuten entfernt, wodurch sowohl der Spandauer Bahnhof als auch die City-West schnell erreichbar sind.
Spandau zeichnet sich durch seine Mischung aus städtischem Flair, Wasser- und Grünflächen, Industriearbeitsplätzen, kleinen Handwerksbetrieben und guter Infrastruktur aus. Die Lage ermöglicht Mietern kurze Wege zu Schulen, Ärzten, Restaurants und Freizeiteinrichtungen.
Dank dieser Verbindung aus urbaner Lage, Einkaufsmöglichkeiten direkt vor der Tür und schneller Verkehrsanbindung bietet der Standort optimale Voraussetzungen für langfristige Vermietbarkeit.
Die Immobilie liegt in Spandau, unmittelbar angrenzend an das Westend. Das Berliner Olympiastadion ist in nur ca. 9 Minuten mit dem Auto erreichbar. Die Umgebung bietet ruhige Wohnlagen, gute Nahversorgung sowie eine schnelle Anbindung an den öffentlichen Verkehr. Grünflächen, Einkaufsmöglichkeiten befinden sich in unmittelbarer Nähe und schaffen eine attraktive Mischung aus urbanem Komfort und naturnahem Wohnen.
Sonstige Angaben
Angaben sind ohne Gewähr und basieren ausschließlich auf Informationen, die uns von unserem Auftraggeber übermittelt wurden. Wir übernehmen keine Gewähr für die Vollständigkeit, Richtigkeit und Aktualität dieser Angaben. Irrtum und Zwischenverkauf oder Zwischenvermietung vorbehalten. Aufgrund des Gesetzes über das AufAlle spüren von Gewinnen aus schweren Straftaten (Geldwäschegesetz - GwG) von 2008 sind wir im Zuge der allgemeinen Sorgfaltspflicht dazu verpflichtet, spätestens wenn Kaufinteresse bekundet wird, Ihre Personalien zu überprüfen und dies auch dem Gesetzgeber gegenüber nachzuweisen. Bitte haben Sie daher Verständnis, dass wir eine Kopie Ihres Personalausweises anfertigen müssen. Diese sowie sämtliche Daten werden durch uns selbstverständlich streng vertraulich behandelt. Erfüllungsort für alle Verpflichtungen des Kunden ist der Sitz unserer Firma. Ist der Kunde Kaufmann im Sinne des HGB ist Gerichtsstand der Sitz unserer Firma.
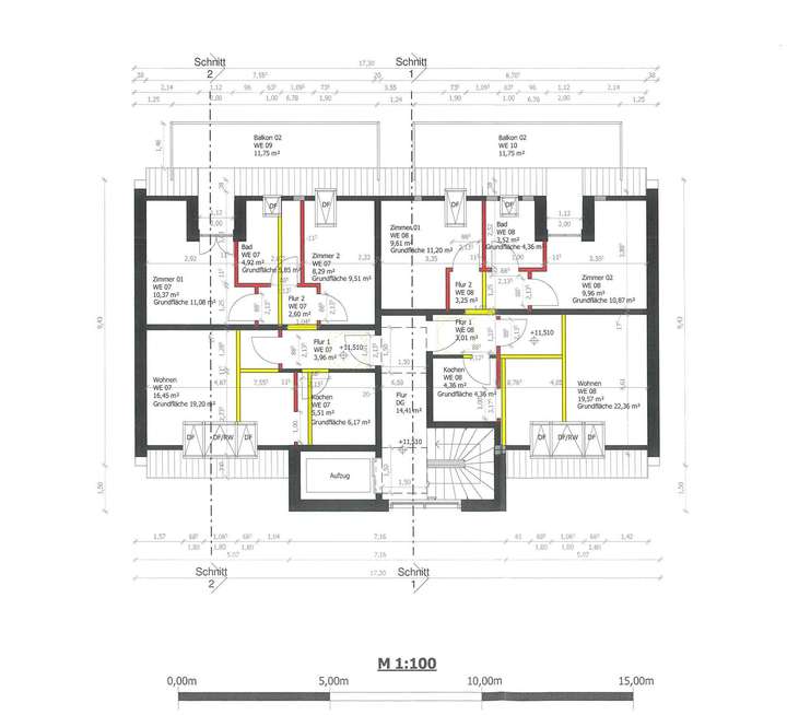
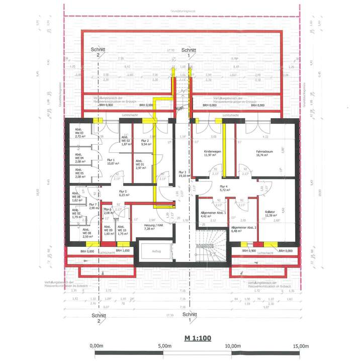
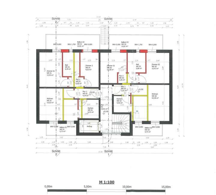
Grundriss
Dachgeschoss
>
>
Regelgeschoss
>
>
Souterrain
>
>
Adresse
13597 Berlin
Interessante Orte
Preis- und Lageinformationen
Preistrend für Bestandsimmobilien in Spandau (Spandau)