Stilvoll möbliertes, großzügig und exklusiv ausgestattetes Ein- Zweifamilienhaus mit Einliegerwohnung u. einer Netto-Wohnfläche von 280,55 m² sowie einer Gesamt-Nutzfläche von 382 m², 1990 vollständig entkernt und generalsaniert und seither ständig modernisiert. Im September 2025 wurden zuletzt noch einige weitere Instandhaltungs- und Verschönerungsmaßnahmen durchgeführt. Das Haus mit sep. Einliegerwohnung ist ab sofort bezugsfertig u.a. mit beheizbarem Wintergarten, Sauna u. Wellnessbereich, Gartenteich, Gewächshaus, Gartenhaus, Hundezwinger mit sep. Hundefreilaufgehege, überdachten Innenhof sowie eine weitere Südterrasse, eingebettet in einem eingewachsenen 1100 qm großen Traumgarten mit altem Obstbäumen u. Baumbestand bevorzugt an Ärzte, Beamte oder Angestellte im öffentlichen Dienst etc. von privat zu vermieten - die Souterrainwohnung mit Küche, Bad, Wohnbereich hat große Tageslichtfenster (wg. leichter Hanglage) und einen sep. Eingang, Sprechanlage uvm. mit direkten Zugang zum Garten.
Großzügiges Einfamilienhaus mit Einliegerwohnung u. großen Garten in Bestlage
90513 Zirndorf
Die vollständige Adresse der Immobilie erhalten Sie vom Anbieter.
Auf Karte anzeigen
Die vollständige Adresse der Immobilie erhalten Sie vom Anbieter.
Infos
| Haustyp | Einfamilienhaus |
|---|---|
| Etagenzahl | 3 |
| Wohnfläche ca. | 280 m2 |
| Nutzfläche | 100 m2 |
| Grundstücksfläche | 1.100 m2 |
| Bezugsfrei ab | sofort |
| Zimmer | 5 |
| Schlafzimmer | 3 |
| Badezimmer | 1 |
| Garage/Stellplatz | Garage |
| Anzahl Garage/Stellplatz | 2 |
Kosten
| Kaltmiete |
2.400 € |
|---|---|
| Nebenkosten | keine Angabe |
| Heizkosten | keine Angabe |
| Gesamtmiete | 2.400 € |
| Kaution o. Genossenschaftsanteile | 7500 EUR |
Weiter mieten oder doch kaufen?
Wer in Miete wohnt, überweist dem Vermieter im Laufe der Jahre hohe Summen, die sich
auch in die eigenen vier Wände investieren lassen könnten.
Bausubstanz & Energieausweis
| Baujahr | 1974 |
|---|---|
| Objektzustand | Gepflegt |
| Heizungsart | Zentralheizung |
| Wesentliche Energieträger | Öl |
| Energieausweis | liegt vor |
| Energieausweistyp | Bedarfsausweis |
| Energieverbrauchskennwert | 186,7 kWh/(m²*a) |
| Energieeffizienzklasse | F |
186,7
kWh/(m²*a)
Energieeffizienzklasse F
- A+
- A
- B
- C
- D
- E
- F
- G
- H
- 0
- 25
- 50
- 75
- 100
- 125
- 150
- 175
- 200
- 225
- >250
Beschreibung des Objekts
Ausstattung
Balkon, Terrasse, Wintergarten, Garten, Keller, Vollbad, Duschbad, Sauna, Einbauküche, Gäste-WC, Kamin, Fliesen, Sonstiges (s. Text)
Bemerkungen:
Hochwertige exkl. Ausstattung, Alarmanlage, getönte Aluminiumfenster mit elektr. Aluminium-Rollos, Marmortreppe, Marmorböden, Aussenkamin, Kachelofen, Neue Niedrigenergie-Ölzentralheizung, 30 qm großzügiges Entree, offenes Wohnen, Design-Innentüren, Landhausküche mit neuem Induktionskochfeld und neuem Backofen, schreinergefertigten Wohnzimmereinbauten aus gekälkten Pinienholz, Schlafzimmer mit hochwertigen Einbauten u. Balkon, Ankleidezimmer, Sauna, uvm.
Lage
Bevorzugte Bestlage - absolut ruhig in Zirndorf/Weiherhof mit optimaler Verkehrsanbindung zur Autobahn sowie nach Nürnberg, Fürth u. Erlangen. Öffentliche Nahverkehrsverbindung, Bahnverbindung Zirndorf-Weiherhof fußläufig, alle Einkaufsmöglichkeiten, Ärzte, Apotheken sowie Kindergärten und Schulen vorhanden. Naherholungsgebiet wie Fürther Stadtwald mit Kletterwald, Wildgehege uvm. vor der Haustüre.
Infrastruktur (im Umkreis von 5 km):
Apotheke, Lebensmittel-Discount, Allgemeinmediziner, Kindergarten, Grundschule, Hauptschule, Realschule, Gymnasium, Gesamtschule, Öffentliche Verkehrsmittel
Sonstige Angaben
Heizungsart: Zentralheizung
Energieträger: Öl
Makleranfragen unerwünscht - bevorzugt E-Mail-Kontakt bei Interesse an unserer Immobilie würden wir Sie bitten uns im Rahmen einer Kontaktanfrage einige konkrete Eckdaten zu Ihrer Person, Anzahl der einziehenden Personen, Grund des Umzugs, Adresse, Beruf, Haustierhaltung oder eine freiwillige Selbstauskunft mit Mietschuldenfreiheitsbescheinigung, etc. mitzuteilen. Bonitätsnachweis u. Schufa erwünscht. Vermietung von privat - Diskretion wird garantiert!
Makleranfragen nicht erwünscht. Nach § 7 UWG sind unaufgeforderte Kontaktaufnahmen durch Makler ohne ausdrückliche Einwilligung des Empfängers verboten!
ohne-makler (OM) ist weder Anbieter noch Vermittler der Immobilie. OM betreibt eine Plattform für Immobilieneigentümer, die unter anderem die gleichzeitige Veröffentlichung einzelner Inserate auf mehreren Immobilienportalen ermöglicht. Die Inhalte dieser Inserate werden ausschließlich von Dritten verantwortet. Für die Richtigkeit, Vollständigkeit oder Rechtmäßigkeit der Angaben übernimmt OM keine Haftung. Hinweise auf mögliche Rechtsverstöße können jederzeit gemeldet werden und werden nach Prüfung umgehend bearbeitet.
Weitere Dokumente
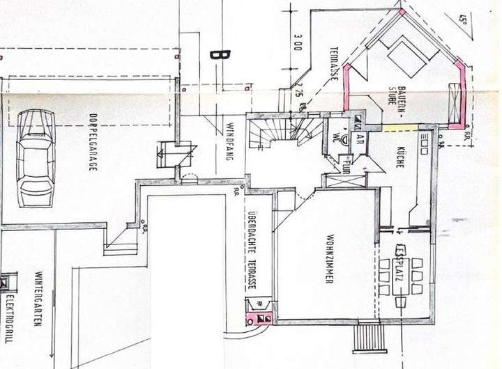
Freiwillige SelbstauskunftGrundriss
Grundriss
>
>
Grundriss
>
>
Grundriss
>
>
Adresse
90513 Zirndorf
Interessante Orte
Preis- und Lageinformationen
Preistrend für Bestandsimmobilien in Zirndorf