Diese Wohnung liegt im rund acht Hektar großen, mit altem Baumbestand durchzogenen Reemtsma Park – einer exklusiven Parklandschaft nahe der Elbe, dem Jenischpark sowie den Ortszentren von Nienstedten und Othmarschen. Der denkmalgeschützte Park beeindruckt mit weitläufigen Rasenflächen, einem Naturteich, aufwendiger Gartenarchitektur, landschaftsarchitektonischen Himmelsspiegeln und einem Spielplatz. Die Bestandsgebäude wurden im Jahre 2008 umfangreich saniert und exklusiv ausgestattet.
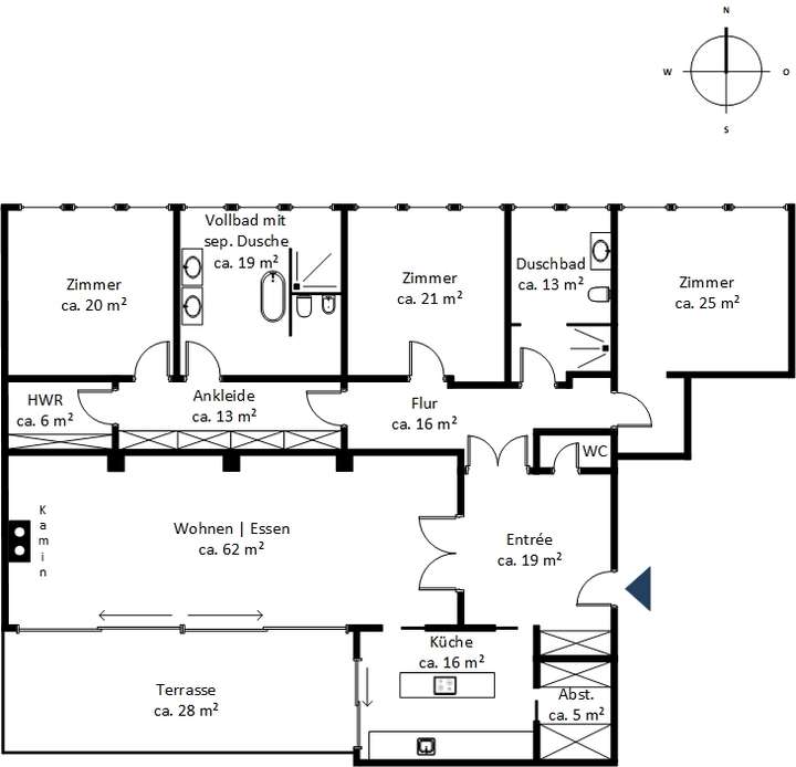
Über ein großzügiges Entrée betritt man das ca. 62 m² große Wohn- und Esszimmer mit bodentiefen Fenstern und Kamin. Eine große Schiebetür öffnet den Zugang zur Südterrasse mit Blick ins Grüne. Die moderne Poggenpohl-Küche mit Miele-Geräten ist separiert, lässt sich aber durch eine Schiebetür öffnen. Ein Abstellraum mit Einbauschränken ergänzt das Platzangebot.
Die Schlafzimmer sind geschickt vom Wohnbereich getrennt. Das Hauptschlafzimmer verfügt über eine Ankleide mit Einbauschränken und ein hochwertiges Bad mit freistehender Wanne, Doppelwaschbecken und separater Dusche. Zwei weitere Zimmer dienen flexibel als Kinder-, Arbeits- oder Gästezimmer. Ein zweites Bad rundet den Grundriss ab.
Die Wohnung wird vor Übergabe umfangreich renoviert, u.a. wird ein neuer Eichenparkettboden verlegt sowie ein Großteil der Holzteile im hellen Farbton gestaltet.
Tiefgaragenstellplätze stehen in der großzügigen Garage zur Verfügung (mtl. á € 110 zzgl. € 15 NK)
Exklusives Wohnen im Reemtsma Park
22605 Hamburg
Die vollständige Adresse der Immobilie erhalten Sie vom Anbieter.
Auf Karte anzeigen
Die vollständige Adresse der Immobilie erhalten Sie vom Anbieter.
Infos
| Wohnungskategorie | Erdgeschosswohnung |
|---|---|
| Etagenzahl | 1 |
| Wohnfläche ca. | 256 m2 |
| Bezugsfrei ab | 1.2.2026 |
| Zimmer | 4 |
| Schlafzimmer | 3 |
| Badezimmer | 2 |
| Haustiere | Nach Vereinbarung |
| Garage/Stellplatz | Tiefgarage |
| Anzahl Garage/Stellplatz | 2 |
Kosten
| Kaltmiete |
3.870 € |
|---|---|
| Nebenkosten | + 1.128 € |
| Heizkosten | in Nebenkosten enthalten |
| Gesamtmiete | 4.998 € |
Weiter mieten oder doch kaufen?
Wer in Miete wohnt, überweist dem Vermieter im Laufe der Jahre hohe Summen, die sich
auch in die eigenen vier Wände investieren lassen könnten.
Bausubstanz & Energieausweis
| Baujahr | 1953 |
|---|---|
| Objektzustand | Neuwertig |
| Heizungsart | Fernwärme |
| Wesentliche Energieträger | Nahwärme |
| Energieausweis | liegt vor |
| Energieausweistyp | Verbrauchsausweis |
| Energieverbrauchskennwert | 49,3 kWh/(m²*a) |
| Energieeffizienzklasse | A |
49,3
kWh/(m²*a)
Energieeffizienzklasse A
- A+
- A
- B
- C
- D
- E
- F
- G
- H
- 0
- 25
- 50
- 75
- 100
- 125
- 150
- 175
- 200
- 225
- >250
Beschreibung des Objekts
Lage
Diese Immobilie befindet sich in dem beliebten Elbvorort Othmarschen. Einkaufsmöglichkeiten bietet die nahe gelegene Waitzstraße mit einer Vielzahl an Einzelhandelsgeschäften sowie das Elbe-Einkaufszentrum. Kindergärten, Grund- und weiterführende Schulen, wie z.B. auch die Internationale Schule, sind in nur wenigen Minuten zu erreichen.
Der Jenischpark, die Elbe und verschiedene Sportvereine, wie auch der Groß Flottbeker Golf-, Hockey- und Tennisclub, befinden sich in der unmittelbaren Umgebung. Die Anbindung an die öffentlichen Verkehrsmittel ist aufgrund der S-Bahnstation „Othmarschen“ sowie verschiedener Buslinien als sehr gut zu bezeichnen. Mit der S-Bahn ist die Hamburger Innenstadt in nur 15 Minuten erreichbar.
Sonstige Angaben
Die Wasser- und Stromkosten zahlt der Mieter direkt an die Versorgungsträger.
Grundriss
Erdgeschoss
>
>
Adresse
22605 Hamburg
Interessante Orte
Preis- und Lageinformationen
Preistrend für Bestandsimmobilien in Othmarschen