Mitten in Mönchengladbach entsteht ein Wohnensemble, das urbanes Leben und ruhigen Rückzug selbstverständlich verbindet. Entlang der Waldhausener Straße befinden sich 35 Wohnungen und Apartments – von effizienten Mikrogrundrissen bis hin zu großzügigen Maisonette-Typen. Im geschützten Innenhof schließen sich neun Townhäuser mit privatem Garten an: modern, offen und mit der Art von Wohngefühl, die in der Stadt selten geworden ist.
Helle Räume, wertige Materialien und elegant gestaltete Bäder prägen den Innenausbau. Barrierefreie Duschen, durchdachte Grundrisse sowie ein klares Gestaltungskonzept verleihen jeder Einheit zeitlosen Komfort. Tiefgaragen- und Außenstellplätze, eine gepflegte Gartenanlage und ein sauber konzipiertes Energieniveau runden das Angebot ab – mit Qualität, die man nicht aussprechen muss, weil man sie sieht.
Ob Zuhause für Singles, Paare oder Familien – hier entsteht ein Ort für Menschen, die Stadtleben schätzen, aber nicht auf Ruhe verzichten wollen. Zentral. Nahbar. Wohnlich.
Bezug ab Dezember 2026.
Innenhof | gemütliches 4-Zimmer-Townhaus (F3) mit Hofausblick und Gäste-WC | ab sofort verfügbar!
Waldhausener Straße 130-165,
41061 Mönchengladbach
Auf Karte anzeigen
Infos
| Haustyp | Reiheneckhaus |
|---|---|
| Etagenzahl | 2 |
| Wohnfläche ca. | 108 m2 |
| Nutzfläche | 10 m2 |
| Grundstücksfläche | 50 m2 |
| Bezugsfrei ab | 1.12.2025 |
| Zimmer | 4 |
| Schlafzimmer | 2 |
| Badezimmer | 2 |
| Haustiere | Nach Vereinbarung |
| Garage/Stellplatz | Tiefgarage |
| Anzahl Garage/Stellplatz | 1 |
Kosten
| Kaltmiete |
1.928 € |
|---|---|
| Nebenkosten | + 214 € |
| Heizkosten | + 99.3 € |
| Gesamtmiete | 2.241 € (zzgl. Heizkosten) |
| Miete für Garage/Stellplatz | 95 € |
| Kaution o. Genossenschaftsanteile | 3 Kaltmieten |
Weiter mieten oder doch kaufen?
Wer in Miete wohnt, überweist dem Vermieter im Laufe der Jahre hohe Summen, die sich
auch in die eigenen vier Wände investieren lassen könnten.
Bausubstanz & Energieausweis
| Baujahr | 2025 |
|---|---|
| Letzte Sanierung | 2025 |
| Objektzustand | Erstbezug |
| Qualität der Austattung | Gehoben |
| Heizungsart | Holz-Pelletheizung |
| Wesentliche Energieträger | Pelletheizung |
| Energieausweis | liegt vor |
| Energieausweistyp | Verbrauchsausweis |
| Energieeffizienzklasse | A+ |
Energieeffizienzklasse A+
- A+
- A
- B
- C
- D
- E
- F
- G
- H
- 0
- 25
- 50
- 75
- 100
- 125
- 150
- 175
- 200
- 225
- >250
Beschreibung des Objekts
Ausstattung
• Fußbodenheizung
• Aufzug
• Bodentiefe Fenster
• Tiefgaragenstellplätze / Stellplätze optional
• Rollläden
• Abstellraum mit Waschmaschinenanschluss
• Moderne Badezimmer, barrierefrei • Balkone / Gärten
• Elektrische Handtuchheizkörper
• EBK in Mikroapartments oder optional
Lage
Zentral. Vernetzt. Lebendig.
Das Wohnensemble liegt an der Waldhausener Straße im Stadtteil Waldhausen – ein urbaner, gewachsener Straßenzug, der Wohn- und Geschäftsbereiche verbindet. Einkaufsmöglichkeiten, Cafés und Restaurants sind fußläufig erreichbar, ebenso wie Grünflächen und kleine Parks, die Raum für Ruhe und Erholung bieten. Ein Kindergarten befindet sich direkt gegenüber, wodurch die Lage auch für Familien attraktiv ist.
Die Anbindung an den öffentlichen Nahverkehr ist hervorragend: Bus- und Straßenbahnlinien verbinden das Quartier schnell mit der Innenstadt und den umliegenden Stadtteilen. Gleichzeitig profitieren die Bewohner von einer ruhigen Rückzugsqualität im Innenhof, die das Stadtleben angenehm ergänzt.
Die Umgebung zeigt eine lebendige Mischung aus modernisierten Wohnhäusern, kleinen Geschäften und Gewerbe – ein urbaner Ort, der stetig an Dynamik gewinnt und ein authentisches Zuhause mitten in der Stadt bietet.
Sonstige Angaben
Ihr eigenes Haus mit Garten zur Miete inmitten der Stadt - das perfekte Zuhause für ihre Familie.
Weitere Dokumente
F3_EGF3_Lageplan
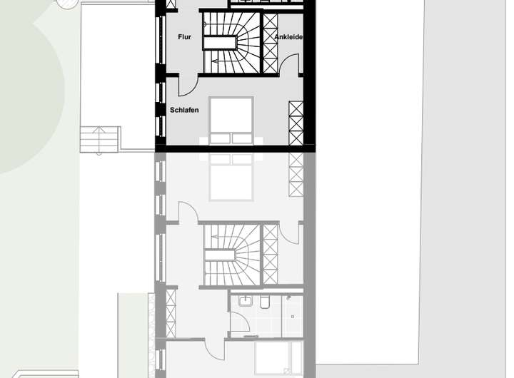
F3_OG
Grundriss
F3_EG
>
>
F3_Lageplan
>
>
F3_OG
>
>
Adresse
Waldhausener Straße 130-165, 41061 Mönchengladbach
Interessante Orte
Preis- und Lageinformationen
Preistrend für Bestandsimmobilien in Gladbach