Dieses gepflegte Einfamilienhaus in Wendelsheim präsentiert sich als ideale Immobilie für die Vermietung an Handwerker oder Monteure. Die Immobilie ist bereits optimal für eine Mehrpersonennutzung ausgestattet und bietet ausreichend Betten und Rückzugsmöglichkeiten. Im Erdgeschoss überzeugt das Haus durch einen offenen Wohn-/Essbereich mit schöner Essecke und hochwertigen Küche mit praktischer Kochinsel. Von hier aus gelangen Sie direkt auf die Terrasse und in den liebevoll gepflegten Garten – perfekt für entspannte Stunden im Freien. Ebenfalls im Erdgeschoss befindet sich eines der beiden Bäder mit praktischer Dusche.
Die Räume im gesamten Haus wurden renoviert und befinden sich in einem gepflegten Zustand. Praktisch ist die Zugangsmöglichkeit zum Grundstück von beiden Seiten: Neben einer geräumigen Garage steht ein zusätzlicher PKW-Stellplatz, sowie ein Carport zur Verfügung, sodass das Parken unkompliziert möglich ist. Im Obergeschoss befinden sich weitere großzügige Zimmer mit gut geschnittenen Grundrissen, die ausreichend Platz für individuelle Nutzung bieten. Ein der Schlafzimmer im Obergeschoss verfügt über direkten Zugang zum Balkon. Zudem befindet sich hier auf dieser Etage ein frisch saniertes Tageslichtbad, sodass sowohl Privatsphäre als auch Komfort gewährleistet sind. Die praktische Aufteilung des Hauses ermöglicht ein angenehmes Zusammenleben, während ausreichend Rückzugsorte für jeden Bewohner vorhanden sind. Ob als Monteur-/ Handwerkerunterkunft oder zwecks Vermietungen durch bspw. Air bnb – dieses Haus bietet vielseitige Nutzungsmöglichkeiten in einer attraktiven Lage von Wendelsheim.
Gepflegtes EFH mit Carport und Garage - ideal für Monteur- oder Handwerkervermietung
55234 Wendelsheim
Die vollständige Adresse der Immobilie erhalten Sie vom Anbieter.
Auf Karte anzeigen
Die vollständige Adresse der Immobilie erhalten Sie vom Anbieter.
Infos
| Haustyp | Einfamilienhaus |
|---|---|
| Etagenzahl | 3 |
| Wohnfläche ca. | 250 m2 |
| Grundstücksfläche | 436 m2 |
| Zimmer | 10 |
| Schlafzimmer | 8 |
| Badezimmer | 2 |
| Garage/Stellplatz | Garage |
| Anzahl Garage/Stellplatz | 1 |
Kosten
| Kaltmiete |
1.800 € |
|---|---|
| Nebenkosten | + 550 € |
| Heizkosten | in Nebenkosten enthalten |
| Gesamtmiete | 2.350 € |
| Kaution o. Genossenschaftsanteile | 3.600,00 |
Weiter mieten oder doch kaufen?
Wer in Miete wohnt, überweist dem Vermieter im Laufe der Jahre hohe Summen, die sich
auch in die eigenen vier Wände investieren lassen könnten.
Bausubstanz & Energieausweis
| Baujahr | 1975 |
|---|---|
| Objektzustand | Gepflegt |
| Qualität der Austattung | Normal |
| Heizungsart | Zentralheizung |
| Wesentliche Energieträger | Öl |
| Energieausweis | liegt vor |
| Energieausweistyp | Verbrauchsausweis |
| Energieverbrauchskennwert | 67,0 kWh/(m²*a) |
| Energieeffizienzklasse | B |
67,0
kWh/(m²*a)
Energieeffizienzklasse B
- A+
- A
- B
- C
- D
- E
- F
- G
- H
- 0
- 25
- 50
- 75
- 100
- 125
- 150
- 175
- 200
- 225
- >250
Beschreibung des Objekts
Ausstattung
- Gepflegtes Wohnhaus in Wendelsheim
- Öl-Zentralheizung
- schöner, offener Koch- und Essbereich mit Zugang zu Terrasse und Garten
- Grundstück ebenfalls vom Garten aus betretbar - dort der Zugang zum Carport
- saniertes Tageslichtbad mit Wanne im OG, sowie ein weiteres schickes Bad im Erdgeschoss
- Schlafmöglichkeiten für 17 Personen
- zur Vermietung oder Anmietung für bspw. Monteure oder Handwerker
- gemeinsamer Waschraum im EG mit drei Waschmaschinenanschlüssen
- ausreichend Platz für bspw. Fahrräder im Nebengebäude, weitere Nutzfläche im Kellergeschoss
- 2003 im Haupthaus erneuerte Fenster mit Doppelverglasung
- PKW-Stellplatz vorm Haus, sowie Garage
Lage
Wendelsheim ist eine charmante Ortsgemeinde im Landkreis Alzey-Worms in Rheinland-Pfalz und gehört zur Verbandsgemeinde Wöllstein. Der idyllische Weinort liegt eingebettet in die sanft geschwungene Hügellandschaft Rheinhessens, umgeben von Weinbergen, Feldern und weiten Ausblicken – ideal für alle, die ländliche Ruhe mit guter Erreichbarkeit schätzen.
Mit rund 1.500 Einwohnern bietet Wendelsheim eine ruhige und familiäre Wohnatmosphäre. Im Ort selbst finden sich eine Grundschule, ein Kindergarten, eine Bäckerei, Gastronomiebetriebe sowie zahlreiche Winzerhöfe, die das typisch rheinhessische Lebensgefühl prägen. Weiterführende Schulen, Einkaufsmöglichkeiten und ärztliche Versorgung befinden sich im nur etwa 8 Kilometer entfernten Alzey. Die Verkehrsanbindung ist hervorragend: Über die nahegelegene A63 (Mainz–Kaiserslautern) sowie die B420 erreicht man schnell umliegende Städte wie Alzey, Mainz, Worms oder Kirchheimbolanden. Auch die Anbindung an den öffentlichen Nahverkehr ist durch Buslinien in Richtung Alzey und Wöllstein gewährleistet.
Natur- und Freizeitliebhaber kommen in Wendelsheim voll auf ihre Kosten – zahlreiche Wander- und Radwege führen durch die malerische Weinlandschaft, und die Umgebung bietet vielfältige Möglichkeiten zur Erholung im Grünen. Gleichzeitig sorgen die lebendige Dorfgemeinschaft und regelmäßige Feste für eine hohe Lebensqualität und ein starkes Zusammengehörigkeitsgefühl.
Sonstige Angaben
Geldwäscheprävention gemäß Geldwäschegesetz (GwG)
Als Immobilienmakler ist die Firma Göthling Immobilien nach § 2 Abs. 1 Nr. 14 sowie § 11 Abs. 1 und 2 des Geldwäschegesetzes (GwG) verpflichtet, die Identität ihrer Vertragspartner zu überprüfen, sobald eine Geschäftsbeziehung begründet wird oder ein konkretes Kaufinteresse vorliegt.
Was bedeutet das für Sie als Interessent oder Auftraggeber?
Natürliche Personen: Wir sind gesetzlich verpflichtet, Ihre Identität durch Vorlage eines gültigen Ausweisdokuments (z. B. Personalausweis oder Reisepass) zu erfassen und zu dokumentieren.
Juristische Personen: In diesem Fall benötigen wir einen aktuellen Handelsregisterauszug sowie Angaben zu den wirtschaftlich Berechtigten im Sinne des § 3 GwG.
Diese Maßnahmen dienen der gesetzlich vorgeschriebenen Prävention von Geldwäsche und Terrorismusfinanzierung. Die erhobenen Daten werden gemäß § 11 Abs. 4 GwG für einen Zeitraum von fünf Jahren aufbewahrt. Bitte beachten Sie, dass Sie nach § 11 Abs. 6 GwG verpflichtet sind, an der Identitätsfeststellung aktiv mitzuwirken.
Haftungsausschluss:
Alle von uns zur Verfügung gestellten Objektunterlagen – wie Grundrisse, Flächenangaben oder sonstige Informationen – basieren auf Angaben der jeweiligen Eigentümer oder Vermieter.
Für die Richtigkeit, Vollständigkeit oder Aktualität wird daher, trotz sorgfältiger Prüfung, keine Haftung übernommen.
Interessenten wird empfohlen, alle Angaben eigenverantwortlich auf Ihre Richtigkeit hin zu überprüfen. Unsere Angebote sind freibleibend. Irrtümer, Zwischenverkauf, Zwischenvermietung oder anderweitige Verwertung bleiben vorbehalten.
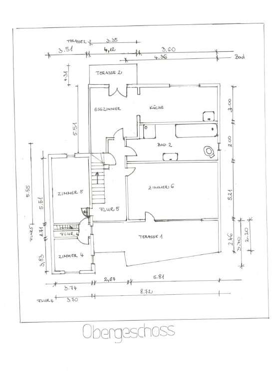
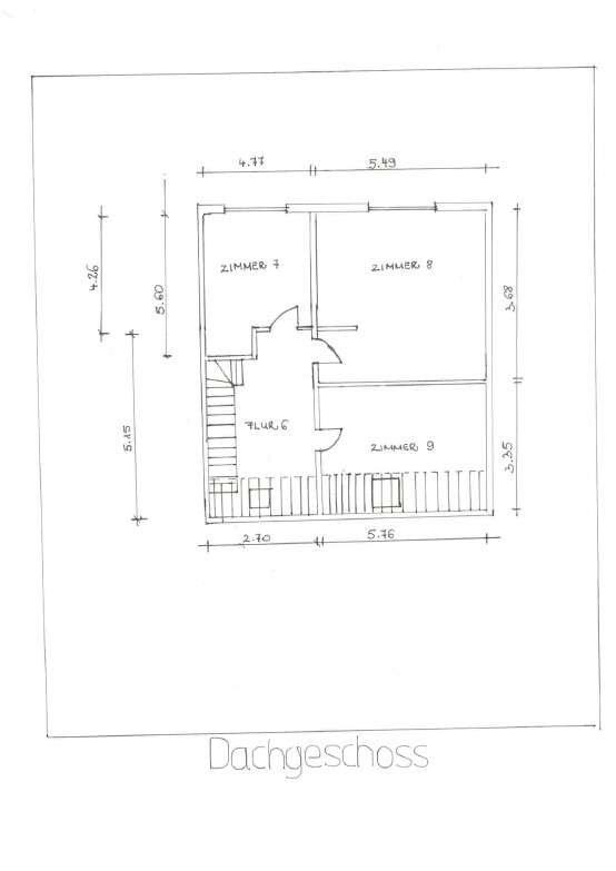
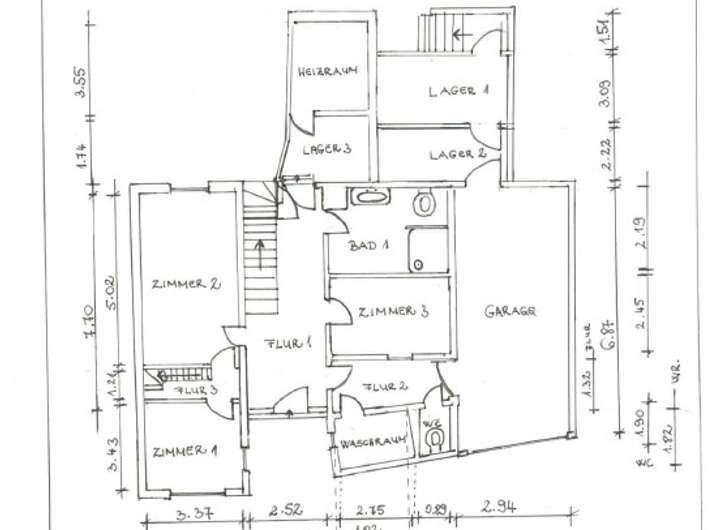
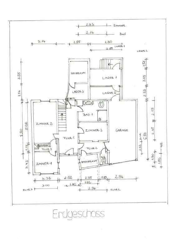
Grundriss
Erdgeschoss
>
>
Obergeschoss
>
>
Dachgeschoss
>
>
Adresse
55234 Wendelsheim
Interessante Orte
Preis- und Lageinformationen
Preistrend für Bestandsimmobilien in Wendelsheim