Im Herzen eines lebendigen Stadtteils gelegen, vereint dieses Wohnensemble am Buntentorsteinweg 171–183 modernes Wohnen mit hoher Alltagstauglichkeit und durchdachter Architektur. Die im Jahr 2016 errichtete Wirtschaftseinheit umfasst zwei separate Wohngebäude mit insgesamt 109 Wohneinheiten, die durch ihre zeitgemäße Architektur und funktionale Grundrisse überzeugen.
Jede Einheit verfügt über großzügige Außenflächen wie Balkone, Terrassen oder Loggien, die zusätzlichen Wohnkomfort und private Rückzugsorte im Freien bieten. Im Erdgeschoss befindet sich eine gut eingebundene Gewerbefläche, die von einem Rewe Supermarkt genutzt wird – ein klarer Vorteil für die tägliche Nahversorgung direkt vor Ort.
Abgerundet wird das Objekt durch eine Tiefgarage, die den Bewohnerinnen und Bewohnern bequemes und geschütztes Parken ermöglicht. Die Kombination aus moderner Ausstattung, praktischer Lage und durchdachtem Wohnkonzept macht dieses Objekt besonders attraktiv für unterschiedlichste Mietergruppen.
Moderne 2-Zimmer-Wohnung in der Bremer Neustadt - Wentzel Dr.
Buntentorsteinweg 175,
28201 Bremen
Auf Karte anzeigen
Infos
| Wohnungskategorie | Etagenwohnung |
|---|---|
| Etage | 2 von |
| Wohnfläche ca. | 59 m2 |
| Bezugsfrei ab | 01.01.2026 |
| Zimmer | 2 |
Kosten
| Kaltmiete |
861 € |
|---|---|
| Nebenkosten | + 208 € |
| Heizkosten | in Nebenkosten enthalten |
| Gesamtmiete | 1.069 € |
| Miete für Garage/Stellplatz | 0 € |
| Kaution o. Genossenschaftsanteile | 2.583,00 € |
Weiter mieten oder doch kaufen?
Wer in Miete wohnt, überweist dem Vermieter im Laufe der Jahre hohe Summen, die sich
auch in die eigenen vier Wände investieren lassen könnten.
Bausubstanz & Energieausweis
| Baujahr | 2016 |
|---|---|
| Objektzustand | Gepflegt |
| Wesentliche Energieträger | Gas |
| Energieausweis | liegt vor |
| Energieausweistyp | Bedarfsausweis |
| Energieverbrauchskennwert | 56,0 kWh/(m²*a) |
| Energieeffizienzklasse | B |
56,0
kWh/(m²*a)
Energieeffizienzklasse B
- A+
- A
- B
- C
- D
- E
- F
- G
- H
- 0
- 25
- 50
- 75
- 100
- 125
- 150
- 175
- 200
- 225
- >250
Beschreibung des Objekts
Ausstattung
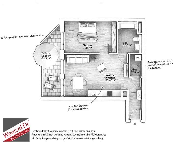
Diese helle und gut geschnittene 2-Zimmer-Wohnung überzeugt durch ihre moderne Ausstattung und durchdachte Raumaufteilung. Der großzügige Wohnbereich ist mit hochwertigem Parkettboden ausgestattet und bietet direkten Zugang zu einem sonnigen Balkon, der sowohl vom Wohnzimmer als auch vom Schlafzimmer begehbar ist – ideal zum Entspannen oder für das Frühstück im Freien.
Die offen gestaltete Einbauküche fügt sich harmonisch in den Wohnbereich ein und ist mit allen notwendigen Elektrogeräten ausgestattet – perfekt für moderne Wohnkonzepte und geselliges Kochen.
Das innenliegende Badezimmer ist hell gefliest und mit einer komfortablen Badewanne ausgestattet.
Zusätzlichen Stauraum bietet ein praktischer Abstellraum innerhalb der Wohnung sowie ein separater Kellerraum, der weiteren Platz für persönliche Gegenstände schafft.
Ein Tiefgaragenstellplatz muss verpflichtend für einen monatlichen Mietzins in Höhe von 80,00 EUR zusätzlich mit angemietet werden.
Lage
Der Buntentorsteinweg befindet sich in der Bremer Neustadt und ist hervorragend an das öffentliche Nahverkehrsnetz angebunden. Entlang der Straße verkehren mehrere Straßenbahnlinien, insbesondere die Linien 4 und 6, die eine direkte Verbindung in die Bremer Innenstadt sowie zu anderen Stadtteilen bieten. Zusätzlich gibt es mehrere Buslinien, die durch die angrenzenden Straßen führen und so eine flexible Mobilität innerhalb des Stadtteils und darüber hinaus gewährleisten.
Über die Kornstraße und die Neuenlander Straße erreicht man die Autobahn A281 in wenigen Minuten, die eine schnelle Verbindung zur A1 bietet.
Der Buntentorsteinweg und das umliegende Buntentorviertel eignen sich ideal für Familien, da sich zahlreiche Schulen und Kindergärten in der Nähe befinden.
Die Einkaufsmöglichkeiten sind vielfältig und decken den täglichen Bedarf umfassend ab. Mehrere Supermärkte, darunter Filialen von EDEKA, REWE und ALDI, befinden sich in unmittelbarer Nähe und sind bequem zu Fuß oder mit dem Fahrrad erreichbar.
Sonstige Angaben
Bei Mietvertragsabschluss wird ein Kündigungsausschluss von 1 Jahr sowie eine Indexmiete vereinbart. Der neue Energieausweis ist bereits beantragt und wird bei Vorlage nachgereicht.
Weitere Dokumente
EnergieausweisGrundriss
Grundriss
>
>
Adresse
Buntentorsteinweg 175, 28201 Bremen
Interessante Orte
Preis- und Lageinformationen
Preistrend für Bestandsimmobilien in Buntentor