Herzlich willkommen in Ihrem neuen Zuhause, das speziell für familienorientierte Kunden wie Sie gestaltet wurde. Diese Immobilie ist der ideale Ort, um gemeinsame Erinnerungen zu schaffen und ein harmonisches Familienleben zu führen.
Das Haus bietet ausreichend Platz für Ihre Familie, um zu Wachsen und Gedeihen. Mit geräumigen Schlafzimmern, einem lichtdurchfluteten Wohnbereich und einem weitläufigen Garten, ist genügend Raum für jedes Familienmitglied vorhanden
Kinderparadies – Ihr Zuhause
59192 Bergkamen
Die vollständige Adresse der Immobilie erhalten Sie vom Anbieter.
Auf Karte anzeigen
Die vollständige Adresse der Immobilie erhalten Sie vom Anbieter.
Infos
| Haustyp | Einfamilienhaus |
|---|---|
| Wohnfläche ca. | 165 m2 |
| Nutzfläche | 0 m2 |
| Grundstücksfläche | 360 m2 |
| Zimmer | 5 |
| Schlafzimmer | 4 |
| Badezimmer | 1 |
| Anzahl Garage/Stellplatz | 1 |
Kosten
| Kaltmiete |
1.650 € |
|---|---|
| Nebenkosten | keine Angabe |
| Heizkosten | keine Angabe |
| Gesamtmiete | 1.650 € |
Weiter mieten oder doch kaufen?
Wer in Miete wohnt, überweist dem Vermieter im Laufe der Jahre hohe Summen, die sich
auch in die eigenen vier Wände investieren lassen könnten.
Bausubstanz & Energieausweis
| Baujahr | 2026 |
|---|---|
| Qualität der Austattung | Gehoben |
| Heizungsart | Wärmepumpe |
Beschreibung des Objekts
Ausstattung
•Natürliche Materialien: Hochwertige, gesunde und natürliche Baustoffe schaffen eine warme und einladende Atmosphäre.
•Lichtdurchflutete Räume: Große Fensterflächen sorgen für eine optimale Nutzung von natürlichem Licht und schaffen eine offene, luftige Umgebung.
•Durchdachte Raumgestaltung: Die klare und funktionale Raumaufteilung ermöglicht eine flexible Nutzung und schafft ein harmonisches Gleichgewicht.
•Sicherheitssystem: Modernste Sicherheitstechnologien, einschließlich Überwachungskameras und intelligenter Türschlösser, bieten ein beruhigendes Gefühl der Sicherheit.
Lage
Das Grundstück befindet sich in schöner und ruhiger Lage. Die Gegend ist geprägt durch gepflegte Ein-und Zweifamilienhäuser. Kindergarten und Schule sind fußläufig erreichbar. Unna ist eine große kreisangehörige Stadt und Kreisstadt des Kreises Unna im östlichen Ruhrgebiet im Land Nordrhein-Westfalen. Die Mittelstadt ist (nach Lünen) nach der Anzahl der Einwohner die zweitgrößte Stadt des Kreises Unna.
Sonstige Angaben
Finanzielle Sicherheit und KfW-QNG-Förderung:
Unsere Experten können Ihnen bei der Klärung aller Fragen zur Finanzierung und den möglichen Förderungen zur Seite stehen, einschließlich der Kreditanstalt für Wiederaufbau (KfW) und des Qualitätssiegels Nachhaltiges Bauen (QNG).
Die KfW bietet verschiedene Förderprogramme für energieeffizientes Bauen und Sanieren an, und unser Schwabenhaus könnte von diesen Förderungen profitieren, insbesondere wenn es die KfW-Anforderungen für Energieeffizienz erfüllt.
Das Qualitätssiegel Nachhaltiges Bauen (QNG) ist ein Qualitätsnachweis für nachhaltiges Bauen und kann dazu beitragen, die Umweltauswirkungen des Hauses zu minimieren und die Energieeffizienz zu steigern. Unsere Experten können Ihnen dabei helfen, die QNG-Zertifizierung zu erreichen und von den finanziellen Vorteilen zu profitieren, die sie bietet.
Wir sind bestrebt, sicherzustellen, dass Sie nicht nur Ihr Traumhaus bekommen, sondern auch finanzielle Sicherheit und Unterstützung auf Ihrem Weg zum Eigenheim haben. Zögern Sie nicht, uns zu kontaktieren, um alle Ihre Finanzierungsfragen zu besprechen und eine maßgeschneiderte Lösung zu finden, die Ihren Bedürfnissen entspricht.
Anbauteile, Carport, Garage und Keller können Extras sein, die als Sonderausstattung angeboten werden. Abbildungen, Grundrisse und Flächenangaben sind beispielhaft und können Extras zeigen. Flächenangaben nach DIN 277.
Profitieren Sie jetzt von der Schwabenhaus Online Beratung und verwirklichen Sie Ihr Traumhaus https://www.schwabenhaus.de/anmeldung-hausbau-beratung-online/
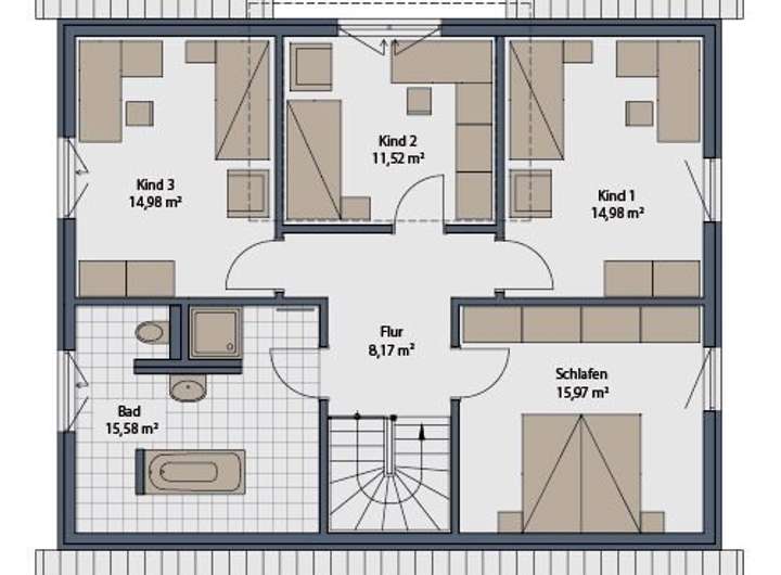
Grundriss
Grundriss Erdgeschoss
>
>
Grundriss Obergeschoss
>
>
Adresse
59192 Bergkamen
Interessante Orte
Preis- und Lageinformationen
Preistrend für Bestandsimmobilien in Bergkamen