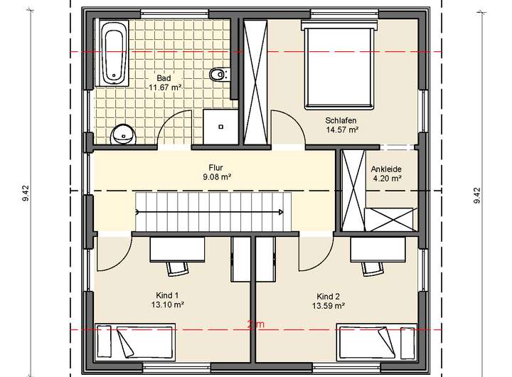
Das großzügige Einfamilienhaus besticht durch die modernen, großflächigen Fenster, die viel Licht ins Innere lassen und zum Verweilen mit Familie und Freunden einladen. Wohnen, Essen und Kochen bilden im Erdgeschoss eine Einheit und bieten über die Terrasse direkten Zugang in den Garten, sodass Sie Ihre Kinder stets im Blick haben. Im Erdgeschoss befinden sich außerdem ein Technikraum sowie ein Gäste-WC. Im Dachgeschoss gibt es keinen Streit um die Auswahl der Zimmer, denn diese sind nahezu gleich groß und im großzügigen Wellness-Bad gibt es am Morgen auch kein Gedränge.
Ohne Eigenkapital möglich. Mietkaufimmobilie abzugeben.
32130 Enger
Die vollständige Adresse der Immobilie erhalten Sie vom Anbieter.
Auf Karte anzeigen
Die vollständige Adresse der Immobilie erhalten Sie vom Anbieter.
Infos
| Haustyp | Einfamilienhaus |
|---|---|
| Wohnfläche ca. | 140 m2 |
| Nutzfläche | 0 m2 |
| Grundstücksfläche | 500 m2 |
| Zimmer | 5 |
| Schlafzimmer | 3 |
| Badezimmer | 1 |
| Anzahl Garage/Stellplatz | 1 |
Kosten
| Kaltmiete |
1.520 € |
|---|---|
| Nebenkosten | keine Angabe |
| Heizkosten | keine Angabe |
| Gesamtmiete | 1.520 € |
Weiter mieten oder doch kaufen?
Wer in Miete wohnt, überweist dem Vermieter im Laufe der Jahre hohe Summen, die sich
auch in die eigenen vier Wände investieren lassen könnten.
Bausubstanz & Energieausweis
| Baujahr | 2026 |
|---|---|
| Qualität der Austattung | Gehoben |
| Heizungsart | Wärmepumpe |
Beschreibung des Objekts
Ausstattung
Jedes unserer Fertighäuser wird speziell für Sie geplant und ist perfekt auf die Anforderungen und Vorgaben Ihres Bauvorhabens angepasst – Bebauungspläne, eine besondere Grundstückslage und die gewünschten Eigenleistungen werden im Detail geprüft und berücksichtigt.
Jedes Schwabenhaus verfügt standardmäßig über:
- Doppel-Wärmepumpe mit 5 in 1-System: Heizen, Kühlen, Lüften, Luftreinigung und Warmwasser
- Zentrale kontrollierte Wohnraum Be- und Entlüftung mit Wärmerückgewinnung
- 3-Scheiben-Wärmeschutzglas
- elektrische Rollladensteuerung*
- Smart-Home-Technologie: Intelligentes Gebäude-Management für die Licht- und Rollladen-Steuerung*
- Schwimmender Estrich mit Wärmedämmung
- Sanitär-Objekte von Markenherstellern wie z. B. Villeroy & Boch usw. sowie Echtglas-Duschabtrennung
- 10 Jahre Gewährleistung nach BGB (üblich: 5 Jahre) und 30 Jahre Garantie auf die Grundkonstruktion
*In Verbindung mit dem Technologie + Komfort-Paket „Blue-Edition“
Diesem Angebot liegt die beliebte Schwabenhaus-Ausbaustufe "Fast-Vollendet Plus" zugrunde. Diese kann selbstverständlich noch entsprechend Ihrer geplanten Eigenleistungen angepasst werden.
Lage
Enger liegt im Ravensberger Hügelland beziehungsweise im Ravensberger Land zwischen
Teutoburger Wald und Wiehengebirge im Nordosten des deutschen Bundeslandes
Nordrhein-Westfalen mit knapp über 20.000 Einwohnern. Die Stadt Enger führt seit dem
19. März 2012 offiziell den Beinamen Widukindstadt, weil in der Stadt der Sachsenherzog
Widukind begraben sein soll. Die Stadt grenzt im Westen an Spenge, im Norden an Bünde,
im Osten an Hiddenhausen sowie Herford und im Süden an die kreisfreie Stadt Bielefeld.
Die nächstgelegenen Großstädte sind das rund 15 km südlich gelegene Bielefeld und das
etwa 45 Kilometer westlich gelegene Osnabrück. Hannover liegt rund 100 km nordöstlich
von Enger.
Bekannt ist Enger vor allem durch seine historische Innenstadt, die Liesbergmühle, welche
heute als Standesamt fungiert und die alten Sattelmeierhöfe mit seinen Fachwerkbauten.
Das Grundstück liegt in einer besonders begehrten und familienfreundlichen Wohnlage von
Enger, die sich durch ihre hervorragende Lebensqualität auszeichnet. In unmittelbarer
Nähe finden Sie zahlreiche Einkaufsmöglichkeiten, Schulen sowie verschiedene
Freizeiteinrichtungen, die den Alltag angenehm und komfortabel gestalten. Trotz der
zentralen Lage besticht das Umfeld durch eine grüne, ruhige Atmosphäre, die einen hohen
Erholungswert bietet. Hier können Sie die Vorzüge einer naturnahen Umgebung genießen
und gleichzeitig von einer ausgezeichneten Anbindung an das städtische Leben profitieren.
Die ausgezeichnete Verkehrsanbindung des Grundstücks sorgt für eine schnelle
Erreichbarkeit der umliegenden Städte und Regionen. Dank der Nähe zu den
Bundesautobahnen A30 und A2 können Sie problemlos in alle Richtungen pendeln. So
genießen Sie nicht nur die Ruhe und den Komfort einer naturnah
Sonstige Angaben
Miet-Kauf möglich. Bonität vorausgesetzt. Alle Angaben ohne Gewähr. Ohne Einsatz von Eigenkapital möglich. Altschulden, Verbindlichkeiten kein Hindernis. Abbildungen können Extras beinhalten. Ausgewiesener Preis exklusiv Erwerb und sonstigen Baunebenkosten. Bitte haben Sie Verständnis, das die Anfragen chronologisch bearbeitet werden und nur mit kompletten Kontaktdaten beantwortet werden Telefonnummer, Vor- und Zuname und E-Mail. Es handelt sich um ein reales Projekt. Termine nur nach Vereinbarung in einem unserer regionalen Info-Center.
Anbauteile, Carport, Garage und Keller können Extras sein, die als Sonderausstattung angeboten werden. Abbildungen, Grundrisse und Flächenangaben sind beispielhaft und können Extras zeigen. Flächenangaben nach DIN 277.
Profitieren Sie jetzt von der Schwabenhaus Online Beratung und verwirklichen Sie Ihr Traumhaus https://www.schwabenhaus.de/anmeldung-hausbau-beratung-online/
Adresse
32130 Enger
Interessante Orte
Preis- und Lageinformationen
Preistrend für Bestandsimmobilien in Enger