Mehrere Einfamilienhäuser preiswert abzugeben. Mietkauf möglich. Altschulden kein Hindernis. Kein Eigenkapital erforderlich.
Mach aus deiner Miete Wohneigentum!
49525 Lengerich
Die vollständige Adresse der Immobilie erhalten Sie vom Anbieter.
Auf Karte anzeigen
Die vollständige Adresse der Immobilie erhalten Sie vom Anbieter.
Infos
| Haustyp | Einfamilienhaus |
|---|---|
| Wohnfläche ca. | 140 m2 |
| Nutzfläche | 0 m2 |
| Grundstücksfläche | 730 m2 |
| Zimmer | 4 |
| Schlafzimmer | 3 |
| Badezimmer | 1 |
| Anzahl Garage/Stellplatz | 0 |
Kosten
| Kaltmiete |
1.350 € |
|---|---|
| Nebenkosten | keine Angabe |
| Heizkosten | keine Angabe |
| Gesamtmiete | 1.350 € |
Weiter mieten oder doch kaufen?
Wer in Miete wohnt, überweist dem Vermieter im Laufe der Jahre hohe Summen, die sich
auch in die eigenen vier Wände investieren lassen könnten.
Bausubstanz & Energieausweis
| Baujahr | 2026 |
|---|---|
| Qualität der Austattung | Gehoben |
| Heizungsart | Wärmepumpe |
Beschreibung des Objekts
Ausstattung
Fast vollendet inkl. Estrich und Bad
Lage
Lengerich ist eine lebenswerte Stadt im Tecklenburger Land, im Westen des Bundeslandes Nordrhein-Westfalen. Zwischen Münster und Osnabrück gelegen, verbindet Lengerich eine naturnahe Umgebung mit einer gut ausgebauten Infrastruktur und einem charmanten, historischen Stadtbild. Die Stadt bietet sowohl Familien als auch Berufspendlern und Senioren eine hohe Wohn- und Lebensqualität.
Geprägt wird Lengerich durch seine Nähe zum Teutoburger Wald, der zahlreiche Möglichkeiten für Erholung, Wandern und Radfahren bietet. Der traditionsreiche Stadtkern mit liebevoll restaurierten Fachwerkhäusern, Cafés und Geschäften lädt zum Verweilen ein. Gleichzeitig finden sich in den verschiedenen Stadtteilen moderne Wohngebiete, die ein ruhiges und dennoch zentrales Leben ermöglichen.
Verkehrstechnisch ist Lengerich bestens angebunden: Der Bahnhof Lengerich liegt an der Bahnstrecke Münster–Osnabrück und bietet regelmäßige Verbindungen in beide Richtungen. Über die nahegelegene Autobahn A1 ist man auch mit dem Auto schnell in größeren Städten der Region.
Die Infrastruktur in Lengerich ist vielfältig: Mehrere Kindertagesstätten, Grund- und weiterführende Schulen sowie ein breites Angebot an ärztlicher Versorgung und Einkaufsmöglichkeiten sorgen für eine umfassende Nahversorgung. Zudem engagiert sich die Stadt aktiv in der Stadtentwicklung, insbesondere bei der Umgestaltung des Ortskerns und der Förderung familienfreundlicher Wohnprojekte.
Durch seine Kombination aus Natur, guter Erreichbarkeit, lebendiger Gemeinschaft und starker Wirtschaft ist Lengerich ein attraktiver Wohnort mit langfristiger Perspektive – sowohl für Eigennutzer als auch für Investoren im Immobilienbereich.
Sonstige Angaben
Miet-Kauf möglich. Bonität vorausgesetzt. Alle Angaben ohne Gewähr. Ohne Einsatz von Eigenkapital möglich. Altschulden, Verbindlichkeiten kein Hindernis. Abbildungen können Extras beinhalten. Ausgewiesener Preis exklusiv Erwerb und sonstigen Baunebenkosten. Bitte haben Sie Verständnis, das die Anfragen chronologisch bearbeitet werden und nur mit kompletten Kontaktdaten beantwortet werden Telefonnummer, Vor- und Zuname und E-Mail. Es handelt sich um ein reales Projekt. Termine nur nach Vereinbarung in einem unserer regionalen Info-Center.
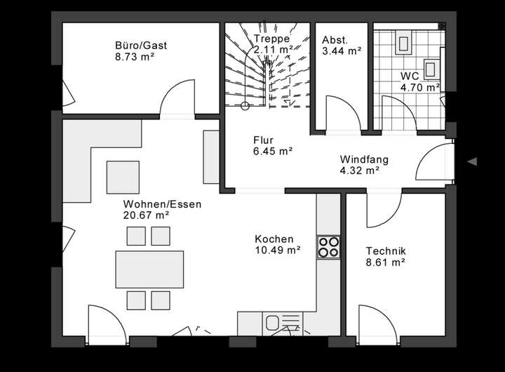
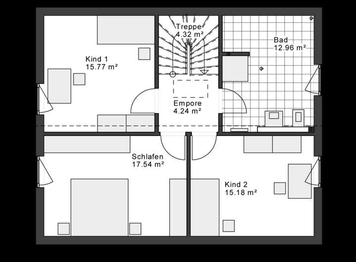
Grundriss
Grundriss EG
>
>
Grundriss OG
>
>
Adresse
49525 Lengerich
Interessante Orte
Preis- und Lageinformationen
Preistrend für Bestandsimmobilien in Lengerich