Mehrere Einfamilienhäuser preiswert abzugeben. Mietkauf möglich. Altschulden kein Hindernis. Kein Eigenkapital erforderlich.
Dein Zuhause, so individuell wie du.
32105 Bad Salzuflen
Die vollständige Adresse der Immobilie erhalten Sie vom Anbieter.
Auf Karte anzeigen
Die vollständige Adresse der Immobilie erhalten Sie vom Anbieter.
Infos
| Haustyp | Einfamilienhaus |
|---|---|
| Wohnfläche ca. | 122 m2 |
| Nutzfläche | 0 m2 |
| Grundstücksfläche | 309 m2 |
| Zimmer | 3 |
| Schlafzimmer | 3 |
| Badezimmer | 1 |
| Anzahl Garage/Stellplatz | 0 |
Kosten
| Kaltmiete |
1.300 € |
|---|---|
| Nebenkosten | keine Angabe |
| Heizkosten | keine Angabe |
| Gesamtmiete | 1.300 € |
Weiter mieten oder doch kaufen?
Wer in Miete wohnt, überweist dem Vermieter im Laufe der Jahre hohe Summen, die sich
auch in die eigenen vier Wände investieren lassen könnten.
Bausubstanz & Energieausweis
| Baujahr | 2026 |
|---|---|
| Qualität der Austattung | Gehoben |
| Heizungsart | Wärmepumpe |
Beschreibung des Objekts
Ausstattung
THINK BLACK – All in.
- Schlüsselfertig & sofort bezugsbereit – ohne zusätzlichen Aufwand
- Kompletter Innenausbau – keine Handwerkersuche, kein Planungsstress
- Durchdachte Raumaufteilung – moderne Wohnkonzepte für jede Lebensphase
- Innovative Haustechnik – zukunftssicheres Wohnen mit höchster Effizienz
- Maximaler Komfort – alles fertig, alles drin
Für alle, die einfach einziehen und losleben wollen!
Lage
Bad Salzuflen ist eine renommierten Kurstadt in Nordrhein-Westfalen, die durch ihre historische Altstadt, die herrliche Parklandschaft und das vielfältige kulturelle Angebot besticht. Die Lage vereint ruhiges Wohnen mit einer sehr guten Infrastruktur.
In unmittelbarer Nähe befinden sich zahlreiche Einkaufsmöglichkeiten, Restaurants, Ärzte und Apotheken. Der weitläufige Kurpark sowie das berühmte Gradierwerk laden zu erholsamen Spaziergängen und Freizeitaktivitäten im Grünen ein.
Bad Salzuflen ist hervorragend an das Verkehrsnetz angebunden: Die Autobahnen A2 und A30 sind in wenigen Minuten erreichbar und ermöglichen schnelle Verbindungen nach Bielefeld, Herford oder Hannover. Auch der öffentliche Nahverkehr ist gut ausgebaut.
Insgesamt handelt es sich um eine attraktive Wohnlage, die sowohl für Familien als auch für Senioren und Berufspendler ein hohes Maß an Lebensqualität bietet.
Sonstige Angaben
Miet-Kauf möglich. Bonität vorausgesetzt. Alle Angaben ohne Gewähr. Ohne Einsatz von Eigenkapital möglich. Altschulden, Verbindlichkeiten kein Hindernis. Abbildungen können Extras beinhalten. Ausgewiesener Preis exklusiv Erwerb und sonstigen Baunebenkosten. Bitte haben Sie Verständnis, das die Anfragen chronologisch bearbeitet werden und nur mit kompletten Kontaktdaten beantwortet werden Telefonnummer, Vor- und Zuname und E-Mail. Es handelt sich um ein reales Projekt. Termine nur nach Vereinbarung in einem unserer regionalen Info-Center.
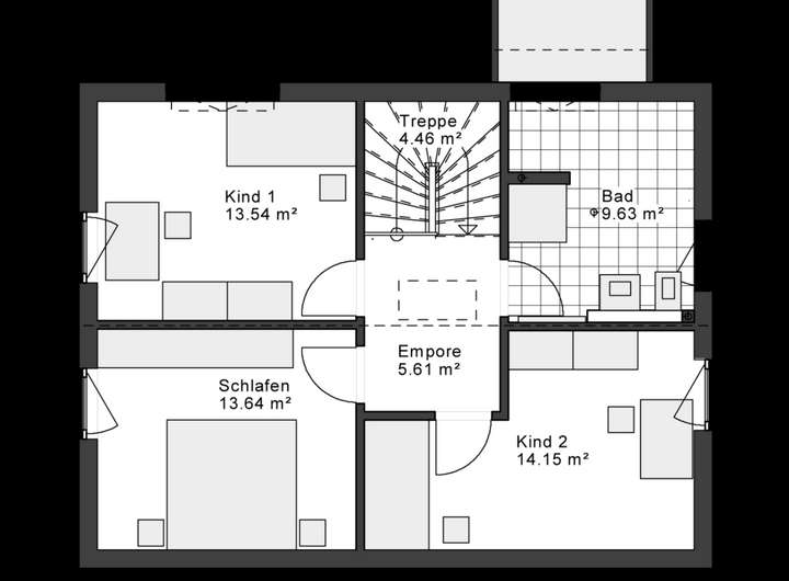
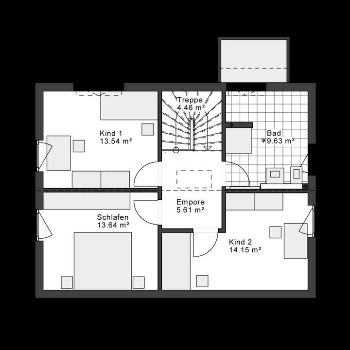
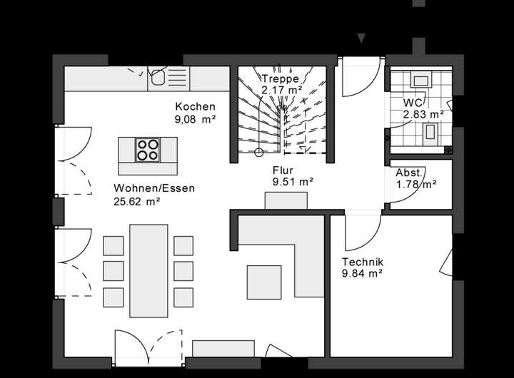
Grundriss
Grundriss EG
>
>
Grundriss OG
>
>
Adresse
32105 Bad Salzuflen
Interessante Orte
Preis- und Lageinformationen
Preistrend für Bestandsimmobilien in Bad Salzuflen