Mehrere Einfamilienhäuser preiswert abzugeben. Mietkauf möglich. Altschulden kein Hindernis. Kein Eigenkapital erforderlich.
Dein Zuhause, so individuell wie du.
30659 Hannover
Die vollständige Adresse der Immobilie erhalten Sie vom Anbieter.
Auf Karte anzeigen
Die vollständige Adresse der Immobilie erhalten Sie vom Anbieter.
Infos
| Haustyp | Einfamilienhaus |
|---|---|
| Wohnfläche ca. | 140 m2 |
| Nutzfläche | 0 m2 |
| Grundstücksfläche | 556 m2 |
| Zimmer | 4 |
| Schlafzimmer | 3 |
| Badezimmer | 1 |
| Anzahl Garage/Stellplatz | 0 |
Kosten
| Kaltmiete |
2.000 € |
|---|---|
| Nebenkosten | keine Angabe |
| Heizkosten | keine Angabe |
| Gesamtmiete | 2.000 € |
Weiter mieten oder doch kaufen?
Wer in Miete wohnt, überweist dem Vermieter im Laufe der Jahre hohe Summen, die sich
auch in die eigenen vier Wände investieren lassen könnten.
Bausubstanz & Energieausweis
| Baujahr | 2026 |
|---|---|
| Qualität der Austattung | Gehoben |
| Heizungsart | Wärmepumpe |
Beschreibung des Objekts
Ausstattung
THINK BLACK – All in.
- Schlüsselfertig & sofort bezugsbereit – ohne zusätzlichen Aufwand
- Kompletter Innenausbau – keine Handwerkersuche, kein Planungsstress
- Durchdachte Raumaufteilung – moderne Wohnkonzepte für jede Lebensphase
- Innovative Haustechnik – zukunftssicheres Wohnen mit höchster Effizienz
- Maximaler Komfort – alles fertig, alles drin
Für alle, die einfach einziehen und losleben wollen!
Lage
Hannover-Lahe ist ein ruhiger Stadtteil im Nordosten von Hannover, der für seine naturnahe Lage zwischen der Laher Heide und dem Altwarmbüchener Moor bekannt ist. Mit etwa 2.100 Einwohnern ist Lahe der kleinste Stadtteil im Stadtbezirk Bothfeld-Vahrenheide. Die Bebauung besteht überwiegend aus Einfamilien-, Doppel- und Reihenhäusern in verkehrsberuhigten Zonen, was den Stadtteil besonders für Familien attraktiv macht.
Die Verkehrsanbindung ist sehr gut, sowohl über die nahegelegene Autobahn A2 als auch durch öffentliche Verkehrsmittel wie die Stadtbahnlinie 3 und die Buslinien 120 und 581, die eine schnelle Verbindung zum hannoverschen Stadtzentrum bieten. Trotz der ruhigen Lage im Stadtteil sind größere Einkaufsmöglichkeiten und Schulen in den benachbarten Stadtteilen Bothfeld und Vahrenheide schnell zu erreichen.
Für die Freizeitgestaltung bietet der Altwarmbüchener See mit seinem Badestrand eine beliebte Anlaufstelle, während die umliegenden Naturgebiete wie die Laher Heide ideale Bedingungen für Spaziergänge und Erholung bieten. Insgesamt bietet Hannover-Lahe eine hohe Lebensqualität und eine perfekte Mischung aus ländlichem Charme und guter Erreichbarkeit des städtischen Lebens.
Sonstige Angaben
Miet-Kauf möglich. Bonität vorausgesetzt. Alle Angaben ohne Gewähr. Ohne Einsatz von Eigenkapital möglich. Altschulden, Verbindlichkeiten kein Hindernis. Abbildungen können Extras beinhalten. Ausgewiesener Preis exklusiv Erwerb und sonstigen Baunebenkosten. Bitte haben Sie Verständnis, das die Anfragen chronologisch bearbeitet werden und nur mit kompletten Kontaktdaten beantwortet werden Telefonnummer, Vor- und Zuname und E-Mail. Es handelt sich um ein reales Projekt. Termine nur nach Vereinbarung in einem unserer regionalen Info-Center.
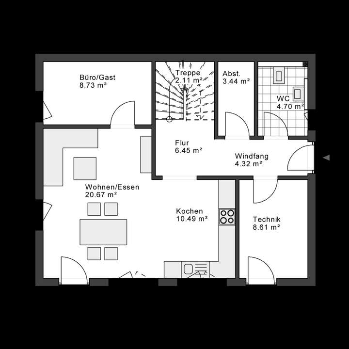
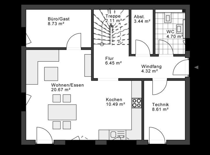
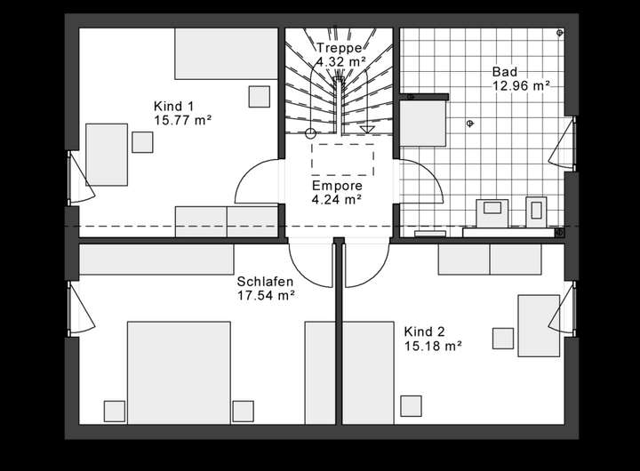
Grundriss
Grundriss EG
>
>
Grundriss OG
>
>
Adresse
30659 Hannover
Interessante Orte
Preis- und Lageinformationen
Preistrend für Bestandsimmobilien in Lahe