Attraktive Immobilie in Planung. Mietkauf möglich. Machen Sie den Check: Jetzt prüfen ob Sie Miet-Kauf berechtigt sind!
Raus aus der Alt-Immobilie - Rein in die eigenen vier Wände
- Ohne Eigenkapital
- Trotz Schulden
Vereinbaren Sie jetzt Ihren Termin mit unseren Miet-Kauf-Spezialisten!
Dein Zuhause, so individuell wie du.
59609 Anröchte
Die vollständige Adresse der Immobilie erhalten Sie vom Anbieter.
Auf Karte anzeigen
Die vollständige Adresse der Immobilie erhalten Sie vom Anbieter.
Infos
| Haustyp | Einfamilienhaus |
|---|---|
| Wohnfläche ca. | 140 m2 |
| Nutzfläche | 0 m2 |
| Grundstücksfläche | 642 m2 |
| Zimmer | 4 |
| Schlafzimmer | 3 |
| Badezimmer | 1 |
| Anzahl Garage/Stellplatz | 0 |
Kosten
| Kaltmiete |
1.500 € |
|---|---|
| Nebenkosten | keine Angabe |
| Heizkosten | keine Angabe |
| Gesamtmiete | 1.500 € |
Weiter mieten oder doch kaufen?
Wer in Miete wohnt, überweist dem Vermieter im Laufe der Jahre hohe Summen, die sich
auch in die eigenen vier Wände investieren lassen könnten.
Bausubstanz & Energieausweis
| Baujahr | 2026 |
|---|---|
| Qualität der Austattung | Gehoben |
| Heizungsart | Wärmepumpe |
Beschreibung des Objekts
Ausstattung
THINK BLACK – All in.
- Schlüsselfertig & sofort bezugsbereit – ohne zusätzlichen Aufwand
- Kompletter Innenausbau – keine Handwerkersuche, kein Planungsstress
- Durchdachte Raumaufteilung – moderne Wohnkonzepte für jede Lebensphase
- Innovative Haustechnik – zukunftssicheres Wohnen mit höchster Effizienz
- Maximaler Komfort – alles fertig, alles drin
Für alle, die einfach einziehen und losleben wollen!
Lage
Anröchte ist eine Gemeinde im Kreis Soest in Nordrhein-Westfalen und liegt verkehrsgünstig zwischen dem Sauerland und der Soester Börde. Die Lage im Herzen von Westfalen bietet sowohl ländliche Lebensqualität als auch eine gute Erreichbarkeit der umliegenden Städte. Über die nahegelegene Bundesstraße B55 besteht eine direkte Verbindung zu Lippstadt, Erwitte und Rüthen. Die Autobahn A44 (Kassel – Dortmund) ist in wenigen Minuten erreichbar und ermöglicht eine zügige Anbindung an das Ruhrgebiet sowie Richtung Kassel.
Der Öffentliche Personennahverkehr ist durch Buslinien organisiert, die Anröchte mit den Nachbarstädten sowie dem regionalen Bahnnetz verbinden. Bahnhöfe in Lippstadt und Erwitte bieten weitere Verbindungen im Regionalverkehr. Die digitale Infrastruktur ist im Gemeindegebiet gut ausgebaut: Viele Bereiche verfügen bereits über Breitbandanschlüsse, die laufend weiter modernisiert werden. Mobilfunk mit 4G ist nahezu flächendeckend verfügbar, 5G befindet sich in der Einführung.
Die Gemeinde Anröchte bietet eine umfassende Grundversorgung mit mehreren Kindergärten, Grundschulen und einer Sekundarschule. Einkaufsmöglichkeiten, ärztliche Versorgung, Apotheken sowie Freizeit- und Sportangebote stehen in ausreichendem Maß zur Verfügung. Zudem ist Anröchte bekannt für seine Natursteinvorkommen und eine starke mittelständische Wirtschaft, insbesondere in Handwerk, Bau und produzierendem Gewerbe. Die Kombination aus funktionierender Infrastruktur, wirtschaftlicher Stabilität und naturnaher Umgebung macht Anröchte zu einem attraktiven Wohn- und Arbeitsstandort in der Region.
Sonstige Angaben
Vereinbaren Sie einen persönlichen Beratungstermin, um über unser Miet-Kauf-Modell zu sprechen und Ihren Haustraum umzusetzen.
Bitte beachten Sie, dass die dargestellten Bilder und Grundrisse nur beispielhaft sind und unter Umständen Sonderbauteile enthalten, die nicht im aufgerufenen Preis inkludiert sind.
Haben Sie außerdem Verständnis dafür, dass erst nach dem persönlichen Gespräch weitere Details zu dem angebotenen Grundstück bekanntgegeben werden und dass nur vollständige Anfragen bearbeitet werden können.
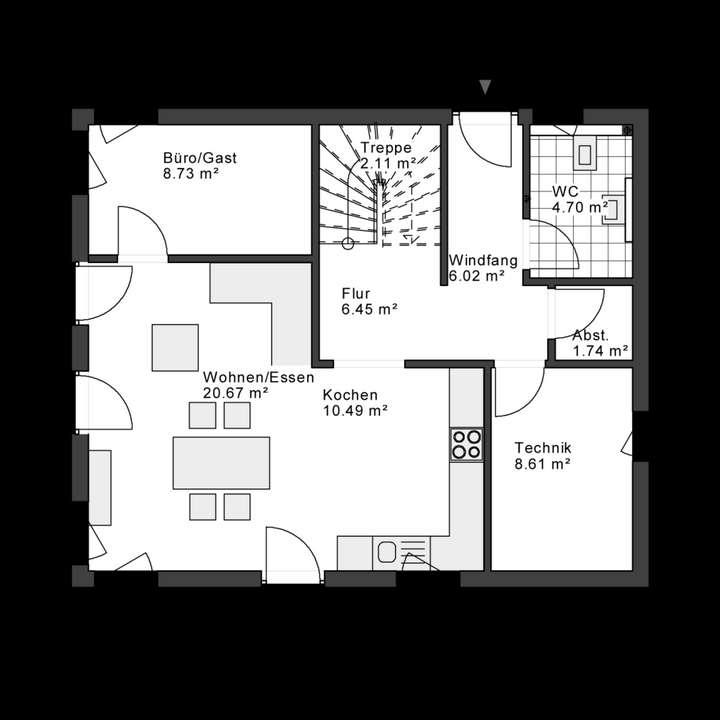
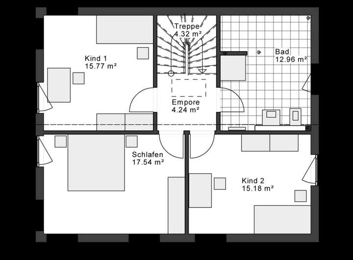
Grundriss
Grundriss EG
>
>
Grundriss OG
>
>
Adresse
59609 Anröchte
Interessante Orte
Preis- und Lageinformationen
Preistrend für Bestandsimmobilien in Anröchte