Mehrere Einfamilienhäuser preiswert abzugeben. Mietkauf möglich. Altschulden kein Hindernis. Kein Eigenkapital erforderlich.
Dein Zuhause, so individuell wie du.
32139 Spenge
Die vollständige Adresse der Immobilie erhalten Sie vom Anbieter.
Auf Karte anzeigen
Die vollständige Adresse der Immobilie erhalten Sie vom Anbieter.
Infos
| Haustyp | Einfamilienhaus |
|---|---|
| Wohnfläche ca. | 140 m2 |
| Nutzfläche | 0 m2 |
| Grundstücksfläche | 650 m2 |
| Zimmer | 4 |
| Schlafzimmer | 3 |
| Badezimmer | 1 |
| Anzahl Garage/Stellplatz | 0 |
Kosten
| Kaltmiete |
1.700 € |
|---|---|
| Nebenkosten | keine Angabe |
| Heizkosten | keine Angabe |
| Gesamtmiete | 1.700 € |
Weiter mieten oder doch kaufen?
Wer in Miete wohnt, überweist dem Vermieter im Laufe der Jahre hohe Summen, die sich
auch in die eigenen vier Wände investieren lassen könnten.
Bausubstanz & Energieausweis
| Baujahr | 2026 |
|---|---|
| Qualität der Austattung | Gehoben |
| Heizungsart | Wärmepumpe |
Beschreibung des Objekts
Ausstattung
THINK BLACK – All in.
- Schlüsselfertig & sofort bezugsbereit – ohne zusätzlichen Aufwand
- Kompletter Innenausbau – keine Handwerkersuche, kein Planungsstress
- Durchdachte Raumaufteilung – moderne Wohnkonzepte für jede Lebensphase
- Innovative Haustechnik – zukunftssicheres Wohnen mit höchster Effizienz
- Maximaler Komfort – alles fertig, alles drin
Für alle, die einfach einziehen und losleben wollen!
Lage
Spenge gehört zum Kreis Herford und bietet eine attraktive Mischung aus ländlichem Flair, naturnaher Umgebung und guter Anbindung an städtische Infrastrukturen. Die Region zeichnet sich durch eine ruhige, familienfreundliche Wohnlage aus und überzeugt durch eine hohe Lebensqualität.
Das Stadtgebiet umfasst mehrere Ortsteile, darunter Bardüttingdorf, Hücker-Aschen, Lenzinghausen und Wallenbrück. Diese sind geprägt von gepflegten Wohnsiedlungen, landwirtschaftlich genutzten Flächen und großzügigen Grünbereichen. Gleichzeitig ist das Stadtzentrum von Spenge mit Einkaufsmöglichkeiten, Schulen, Kindergärten, Ärzten und kulturellen Angeboten gut erreichbar und bildet den infrastrukturellen Mittelpunkt der Region.
Die verkehrstechnische Anbindung ist sehr gut: Über die nahegelegenen Bundesstraßen sowie die Autobahnen A2 und A30 sind die Städte Bielefeld, Herford und Bünde in kurzer Fahrzeit erreichbar. Auch der öffentliche Nahverkehr sorgt für eine gute Verbindung innerhalb der Region.
Erholungssuchende und Naturfreunde profitieren von der Nähe zum Hücker Moor, weitläufigen Rad- und Wanderwegen sowie zahlreichen Freizeitmöglichkeiten im Grünen. Die Umgebung lädt zum Spazieren, Radfahren oder einfach zum Entspannen in der Natur ein.
Insgesamt bietet die Lage eine ideale Kombination aus naturnahem Wohnen, guter Infrastruktur und schneller Erreichbarkeit städtischer Zentren – perfekt für Familien, Paare und Berufspendler, die Ruhe suchen, ohne auf Komfort verzichten zu müssen.
Sonstige Angaben
Miet-Kauf möglich. Bonität vorausgesetzt. Alle Angaben ohne Gewähr. Ohne Einsatz von Eigenkapital möglich. Altschulden, Verbindlichkeiten kein Hindernis. Abbildungen können Extras beinhalten. Ausgewiesener Preis exklusiv Erwerb und sonstigen Baunebenkosten. Bitte haben Sie Verständnis, das die Anfragen chronologisch bearbeitet werden und nur mit kompletten Kontaktdaten beantwortet werden Telefonnummer, Vor- und Zuname und E-Mail. Es handelt sich um ein reales Projekt. Termine nur nach Vereinbarung in einem unserer regionalen Info-Center.
Anbauteile, Carport, Garage und Keller können Extras sein, die als Sonderausstattung angeboten werden. Abbildungen, Grundrisse und Flächenangaben sind beispielhaft und können Extras zeigen. Flächenangaben nach DIN 277.
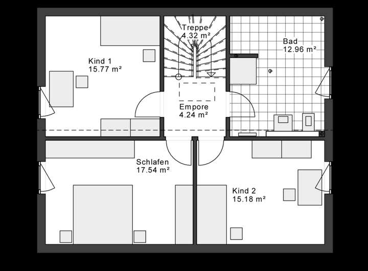
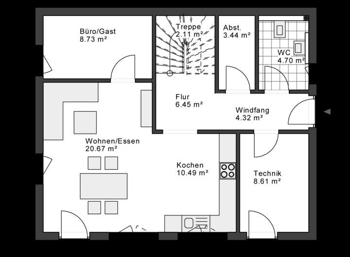
Grundriss
Grundriss EG
>
>
Grundriss OG
>
>
Adresse
32139 Spenge
Interessante Orte
Preis- und Lageinformationen
Preistrend für Bestandsimmobilien in Spenge