Mehrere Einfamilienhäuser preiswert abzugeben. Mietkauf möglich. Altschulden kein Hindernis. Kein Eigenkapital erforderlich.
Build Your Way – Entscheide selbst, wie du bauen willst.
32457 Porta Westfalica
Die vollständige Adresse der Immobilie erhalten Sie vom Anbieter.
Auf Karte anzeigen
Die vollständige Adresse der Immobilie erhalten Sie vom Anbieter.
Infos
| Haustyp | Einfamilienhaus |
|---|---|
| Wohnfläche ca. | 132 m2 |
| Nutzfläche | 0 m2 |
| Grundstücksfläche | 999 m2 |
| Zimmer | 3 |
| Schlafzimmer | 3 |
| Badezimmer | 1 |
| Anzahl Garage/Stellplatz | 0 |
Kosten
| Kaltmiete |
1.500 € |
|---|---|
| Nebenkosten | keine Angabe |
| Heizkosten | keine Angabe |
| Gesamtmiete | 1.500 € |
Weiter mieten oder doch kaufen?
Wer in Miete wohnt, überweist dem Vermieter im Laufe der Jahre hohe Summen, die sich
auch in die eigenen vier Wände investieren lassen könnten.
Bausubstanz & Energieausweis
| Baujahr | 2026 |
|---|---|
| Qualität der Austattung | Gehoben |
| Heizungsart | Wärmepumpe |
Beschreibung des Objekts
Ausstattung
THINK WHITE – Do it yourself.
- Fertige Gebäudehülle – du entscheidest über den Innenausbau
- Maximale Individualität – für kreative Köpfe & Macher
- Ideal für Eigenleistung – handwerkliches Geschick spart bares Geld
- Optimierte Grundrisse – smarte Wohnkonzepte für flexible Gestaltung
- Hochwertige Bauweise – modern, nachhaltig & energieeffizient
- Zugang zu staatlichen Förderprogrammen – clever finanzieren & sparen
Für alle, die ihr Zuhause selbst gestalten wollen!
Lage
Die Lage befindet sich in Porta Westfalica, einer Mittelstadt im Kreis Minden-Lübbecke in Nordrhein-Westfalen. Die Stadt liegt im Übergangsbereich zwischen dem Weser- und dem Wiehengebirge und ist bekannt für ihre landschaftliche Schönheit und ihre historische Bedeutung.
Wikipedia
+2
Wikipedia
+2
Wikipedia
+2
Die Umgebung bietet eine hohe Lebensqualität mit zahlreichen Freizeitmöglichkeiten. Die Region ist bekannt für ihre weitläufigen Felder, Wälder und Radwege, die zu Erkundungstouren und Erholung im Grünen einladen. Zudem verfügt Porta Westfalica über ein gut ausgebautes Netz an Schulen, Kindergärten und medizinischen Einrichtungen, was es besonders für Familien attraktiv macht.
Die Verkehrsanbindung ist ebenfalls hervorragend: Über die nahegelegene Autobahn A2 sowie den öffentlichen Nahverkehr sind die Städte Minden, Bielefeld und Hannover schnell erreichbar. So kombiniert Porta Westfalica die Ruhe des Landlebens mit der Nähe zu städtischen Zentren.
Insgesamt bietet die Lage eine ideale Kombination aus naturnaher Umgebung, guter Infrastruktur und verkehrsgünstiger Lage – perfekt für alle, die ein ruhiges und dennoch gut angebundenes Zuhause suchen.
Sonstige Angaben
Miet-Kauf möglich. Bonität vorausgesetzt. Alle Angaben ohne Gewähr. Ohne Einsatz von Eigenkapital möglich. Altschulden, Verbindlichkeiten kein Hindernis. Abbildungen können Extras beinhalten. Ausgewiesener Preis exklusiv Erwerb und sonstigen Baunebenkosten. Bitte haben Sie Verständnis, das die Anfragen chronologisch bearbeitet werden und nur mit kompletten Kontaktdaten beantwortet werden Telefonnummer, Vor- und Zuname und E-Mail. Es handelt sich um ein reales Projekt. Termine nur nach Vereinbarung in einem unserer regionalen Info-Center.
Anbauteile, Carport, Garage und Keller können Extras sein, die als Sonderausstattung angeboten werden. Abbildungen, Grundrisse und Flächenangaben sind beispielhaft und können Extras zeigen. Flächenangaben nach DIN 277.
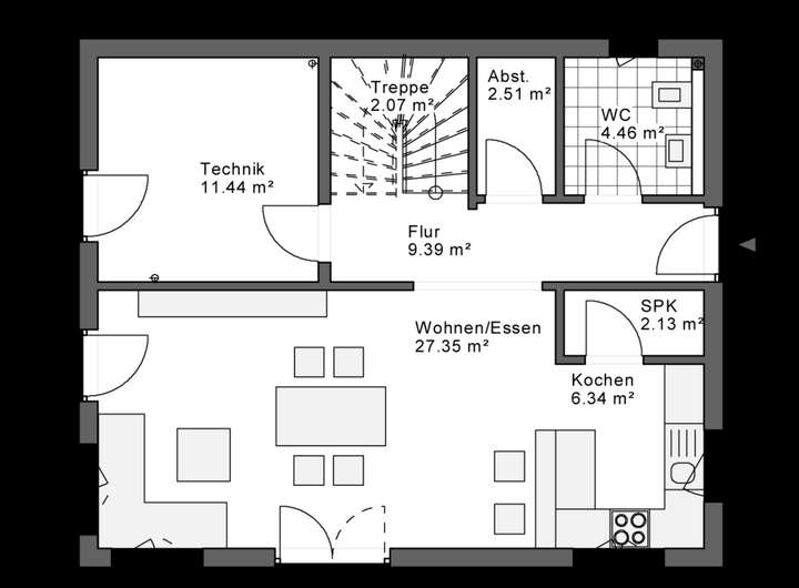
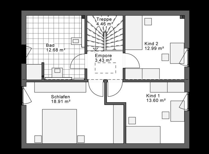
Grundriss
Grundriss EG
>
>
Grundriss OG
>
>
Adresse
32457 Porta Westfalica
Interessante Orte
Preis- und Lageinformationen
Preistrend für Bestandsimmobilien in Porta Westfalica