Mehrere Einfamilienhäuser preiswert abzugeben. Mietkauf möglich. Altschulden kein Hindernis. Kein Eigenkapital erforderlich.
Dein Zuhause, so individuell wie du.
49086 Osnabrück
Die vollständige Adresse der Immobilie erhalten Sie vom Anbieter.
Auf Karte anzeigen
Die vollständige Adresse der Immobilie erhalten Sie vom Anbieter.
Infos
| Haustyp | Doppelhaushaelfte |
|---|---|
| Wohnfläche ca. | 142 m2 |
| Nutzfläche | 0 m2 |
| Grundstücksfläche | 301 m2 |
| Zimmer | 4 |
| Schlafzimmer | 3 |
| Badezimmer | 1 |
| Anzahl Garage/Stellplatz | 0 |
Kosten
| Kaltmiete |
1.700 € |
|---|---|
| Nebenkosten | keine Angabe |
| Heizkosten | keine Angabe |
| Gesamtmiete | 1.700 € |
Weiter mieten oder doch kaufen?
Wer in Miete wohnt, überweist dem Vermieter im Laufe der Jahre hohe Summen, die sich
auch in die eigenen vier Wände investieren lassen könnten.
Bausubstanz & Energieausweis
| Baujahr | 2026 |
|---|---|
| Qualität der Austattung | Gehoben |
| Heizungsart | Wärmepumpe |
Beschreibung des Objekts
Ausstattung
THINK BLACK – All in.
- Schlüsselfertig & sofort bezugsbereit – ohne zusätzlichen Aufwand
- Kompletter Innenausbau – keine Handwerkersuche, kein Planungsstress
- Durchdachte Raumaufteilung – moderne Wohnkonzepte für jede Lebensphase
- Innovative Haustechnik – zukunftssicheres Wohnen mit höchster Effizienz
- Maximaler Komfort – alles fertig, alles drin
Für alle, die einfach einziehen und losleben wollen!
Lage
Die Umgebung vereint ruhiges Wohnen mit guter Erreichbarkeit der Innenstadt und bietet zahlreiche Möglichkeiten für Freizeit und Erholung.
Die Region ist geprägt von einer grünen, naturnahen Umgebung. Zahlreiche Rad- und Wanderwege führen durch die malerische Landschaft und laden zu Aktivitäten im Freien ein. Die Nähe zum Teutoburger Wald und zum Wiehengebirge ermöglicht es, die Natur in vollen Zügen zu genießen. Gleichzeitig bietet Osnabrück als Kultur- und Einkaufsstadt alles, was für den täglichen Bedarf und darüber hinaus nötig ist. Die Innenstadt ist schnell zu erreichen, mit vielfältigen Einkaufsmöglichkeiten, Restaurants und kulturellen Angeboten.
Die Verkehrsanbindung ist hervorragend: Über die A1 und A30 ist man schnell in anderen Städten wie Bielefeld oder Hannover, und auch der öffentliche Nahverkehr sorgt für eine bequeme Mobilität innerhalb der Stadt und in die umliegenden Regionen.
Insgesamt bietet diese Lage eine ideale Mischung aus naturnahem Wohnen und urbaner Erreichbarkeit – perfekt für alle, die den Charme der Natur schätzen und dennoch schnell in der Stadt sein möchten.
Sonstige Angaben
Miet-Kauf möglich. Bonität vorausgesetzt. Alle Angaben ohne Gewähr. Ohne Einsatz von Eigenkapital möglich. Altschulden, Verbindlichkeiten kein Hindernis. Abbildungen können Extras beinhalten. Ausgewiesener Preis exklusiv Erwerb und sonstigen Baunebenkosten. Bitte haben Sie Verständnis, das die Anfragen chronologisch bearbeitet werden und nur mit kompletten Kontaktdaten beantwortet werden Telefonnummer, Vor- und Zuname und E-Mail. Es handelt sich um ein reales Projekt. Termine nur nach Vereinbarung in einem unserer regionalen Info-Center.
Anbauteile, Carport, Garage und Keller können Extras sein, die als Sonderausstattung angeboten werden. Abbildungen, Grundrisse und Flächenangaben sind beispielhaft und können Extras zeigen. Flächenangaben nach DIN 277.
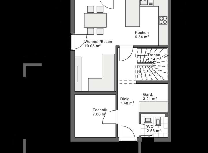
Grundriss
Grundriss EG
>
>
Grundriss OG
>
>
Grundriss DG
>
>
Adresse
49086 Osnabrück
Interessante Orte
Preis- und Lageinformationen
Preistrend für Bestandsimmobilien in Darum/Gretesch/Lüstringen