Dieses wunderschöne, kernsanierte Einfamilienhaus im Neusser Süden vereint modernen Komfort und zeitlose Eleganz auf ca. 118 m². Im Jahr 2025 wurde es mit viel Liebe zum Detail komplett saniert und erstrahlt nun in neuem Glanz. Der große offene Wohn- und Essbereich bildet das Herzstück des Hauses. Die offene Gestaltung dieses Bereichs lädt zu geselligem Beisammensein ein und schafft eine einladende Atmosphäre.
Das Haus bietet insgesamt drei gut geschnittene Zimmer, darunter ein großzügiges Schlafzimmer sowie ein weiteres Zimmer, das sich als Kinder- / Gästezimmer oder Homeoffice nutzen lässt.
Die beiden Zimmer im Obergeschoss sind mit bodentiefen Fenstern ausgestattet, die für helle, lichtdurchflutete Räume sorgen.
Zwei moderne, voll ausgestattete Tageslichtbäder – beide mit großzügigen Duschen (Hauptbad zusätzlich mit Badewanne und Doppelwaschtisch) – bieten Ihnen alles, was Sie für den perfekten Start in den Tag brauchen. Sie sind mit hochwertigen Fliesen und Badmöbeln ausgestattet und vermitteln eine klare, moderne Wohlfühlatmosphäre.
Das Haus ist mit einer zentralen Lüftungsanlage mit Wärmerückgewinnung ausgestattet, die für ein stets angenehmes Raumklima sorgt. Die dreifach verglasten Fenster garantieren sowohl hervorragende Wärmedämmung als auch einen ruhigen Rückzugsort. In Kombination mit der Fußbodenheizung erleben Sie zu jeder Jahreszeit ein wohltuendes, angenehmes Raumklima.
Die moderne Wärmepumpe sorgt für eine nachhaltige und effiziente Wärmeversorgung, während die elektrischen Rollläden zusätzlichen Komfort und Sicherheit bieten. Das hochwertige Interieur des Hauses wird durch die Fliesen in allen Räumen und den stilvollen Vinylböden in den Schlafzimmern ergänzt.
Die ca. 20 m² große Terrasse mit kleinem Gartenbereich lädt zum Wohlfühlen und Entspannen ein – ein idealer Rückzugsort für ruhige oder gesellige Stunden im Freien.,
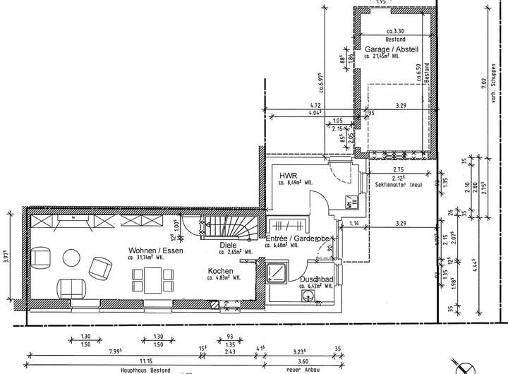
Die Garage mit ca. 21m² sowie der zusätzliche Stellplatz in der Einfahrt bieten ausreichend Platz für Ihre Fahrzeuge.
Modernes Einfamilienhaus - Erstbezug nach Kernsanierung in 2025 - Für kleine Familien oder Paare
Waldstraße 2,
41470 Neuss
Auf Karte anzeigen
Infos
| Haustyp | Einfamilienhaus |
|---|---|
| Etagenzahl | 2 |
| Wohnfläche ca. | 118 m2 |
| Grundstücksfläche | 215 m2 |
| Bezugsfrei ab | 1.2.2026 |
| Zimmer | 3 |
| Schlafzimmer | 2 |
| Badezimmer | 2 |
| Haustiere | Nein |
| Garage/Stellplatz | Garage |
| Anzahl Garage/Stellplatz | 1 |
Kosten
| Kaltmiete |
1.850 € |
|---|---|
| Nebenkosten | + 140 € |
| Heizkosten | keine Angabe |
| Gesamtmiete | 1.990 € (zzgl. Heizkosten) |
| Kaution o. Genossenschaftsanteile | 5.500 |
Weiter mieten oder doch kaufen?
Wer in Miete wohnt, überweist dem Vermieter im Laufe der Jahre hohe Summen, die sich
auch in die eigenen vier Wände investieren lassen könnten.
Bausubstanz & Energieausweis
| Baujahr | 1956 |
|---|---|
| Letzte Sanierung | 2025 |
| Objektzustand | Erstbezug nach Sanierung |
| Qualität der Austattung | Gehoben |
| Heizungsart | Wärmepumpe |
| Wesentliche Energieträger | Strom, Umweltwärme |
| Energieausweis | liegt vor |
| Energieausweistyp | Bedarfsausweis |
| Energieverbrauchskennwert | 29,2 kWh/(m²*a) |
| Energieeffizienzklasse | A+ |
29,2
kWh/(m²*a)
Energieeffizienzklasse A+
- A+
- A
- B
- C
- D
- E
- F
- G
- H
- 0
- 25
- 50
- 75
- 100
- 125
- 150
- 175
- 200
- 225
- >250
Beschreibung des Objekts
Ausstattung
• Wärmepumpe mit Fußbodenheizung in allen Räumen
• Zentrale Lüftungsanlage mit Wärmerückgewinnung
• Smarthome Funktionalität für Licht & Rollläden
• Böden durchgehend gefliest
• Hochwertiger Vinylboden in Holzoptik in beiden Schlafzimmern
• Moderne Holztreppe
• Fenster in 3-Fach Verglasung
• Elektrische Rollläden in allen Räumen
• bodentiefe Fenster im OG in beiden Zimmern
• Badmöbel der Marken Burgbad, Duravit und Villeroy & Boch
• Handtuchheizkörper in beiden Badezimmern
• Aluminium-Haustüre der Marke Pirnar
• Gegensprechanlage mit Video im EG und OG
• Abstellraum im OG
• Garage mit elektrischem Garagentor
• DSL-Anschluss mit 250 MBit möglich
• Glasfaseranschluss im Ausbau
• Wallbox / E-Ladestation nach Vereinbarung möglich
Lage
Die ruhige und doch zentrale Lage im Neusser Süden ist ein weiteres Highlight: In nur wenigen Minuten erreichen Sie fußläufig alle wichtigen Einrichtungen des täglichen Bedarfs – Bäcker, Supermarkt, Friseur und Ärzte sowie Kindergärten und Schulen befinden sich in unmittelbarer Nähe.
Neuss-Rosellerheide bietet Familien und Paaren eine ideale Mischung aus Lebensqualität und vielfältigen Freizeitmöglichkeiten. Der Stadtteil überzeugt mit seinem angenehmen, gewachsenen Wohnumfeld, in dem man sich schnell zuhause fühlt.
Zahlreiche Spazier- und Radwege durch Felder und Wälder laden zu aktiver Erholung ein.
Ergänzt wird dieses Angebot durch verschiedene Sportstätten in der Umgebung, die zusätzliche Optionen für Fitness, Vereins- oder Freizeitsport eröffnen.
Ob eine kurze Runde nach Feierabend, eine ausgedehnte Radtour am Wochenende oder ein Besuch der nahegelegenen Sportanlagen – hier finden Sie Erholung und Aktivität direkt vor der eigenen Haustür.
Die Anbindung nach Köln und Düsseldorf ist optimal und besonders attraktiv für Berufspendler: Über die nahegelegenen Autobahnen A57 und A46 sowie mit Bus und Bahn erreichen Sie die umliegenden Städte schnell und mühelos. Gleichzeitig profitieren Sie von einer gelungenen Balance aus urbaner Erreichbarkeit und entspanntem Wohnen .
Sonstige Angaben
Das Objekt ist ideal für Familien und Paare, die Wert auf ein modernes, gepflegtes Zuhause in zentraler Lage legen.
Ebenfalls steht Ihnen zur Nutzung ein Altbau Keller zur Verfügung.
Der Eingangsbereich vor der Haustür und die Einfahrt befinden sich aktuell noch im Ausbau. - Diese sind zur Vermietung selbstverständlich fertiggestellt.
Im Haus ist das Halten von Haustieren nicht gestattet; wir bitten daher um Verständnis, dass eine Vermietung ausschließlich an Interessenten ohne Haustiere erfolgt.
Wir freuen uns, ein aussagekräftiges Anschreiben von Ihnen zu erhalten – so können wir Sie als potenzielle Mieter schon ein wenig kennenlernen und die nächsten Schritte besser planen und vorbereiten.
Grundriss
Grundriss_EG
>
>
Grundriss_OG
>
>
Adresse
Waldstraße 2, 41470 Neuss
Interessante Orte
Preis- und Lageinformationen
Preistrend für Bestandsimmobilien in Neuss