**US Military lease conditions**
Charming Townhouse with Historic Flair and Modern Comfort
Tucked away in the courtyard of a remarkable estate, this delightful townhouse offers a unique blend of heritage and contemporary living. Surrounded by mature chestnut trees, a beautifully maintained garden, and lovingly preserved architectural details, the property exudes character and charm.
Spread across three spacious floors, the home welcomes you with a bright and airy atmosphere, offering plenty of space to relax and feel at ease.
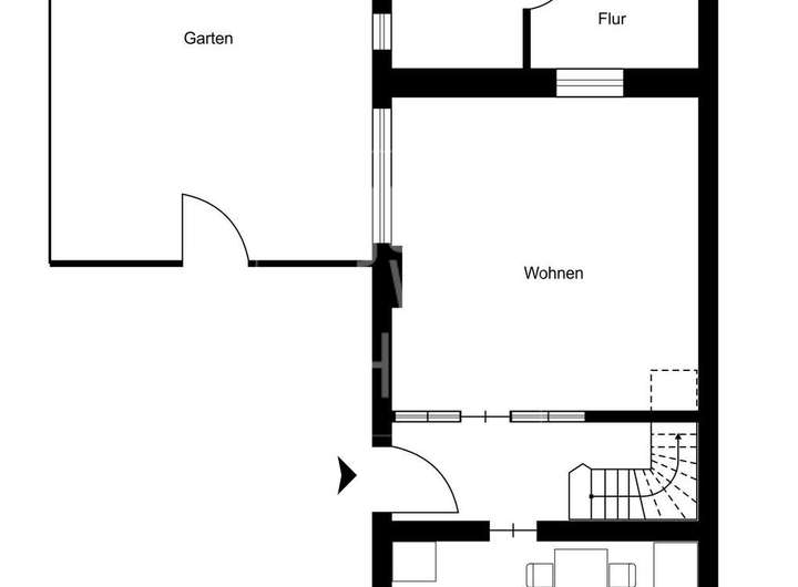
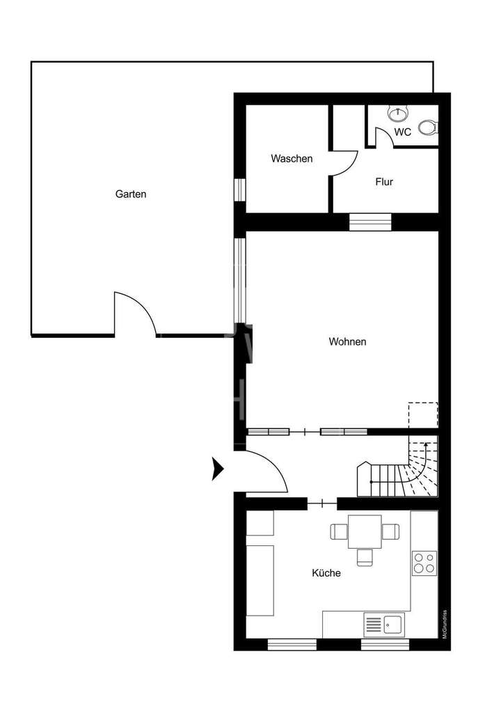
On the ground floor, you will find a generous living and dining area with a cozy fireplace and direct access to a private garden, making it the perfect spot for unwinding or entertaining. A stylish, separate fitted kitchen with high-end appliances and thoughtful design complements this level, along with a guest WC and a separate laundry room for added convenience.
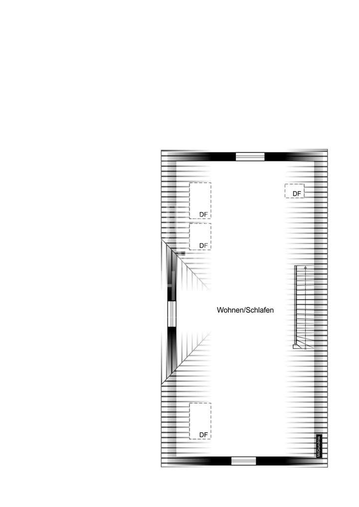
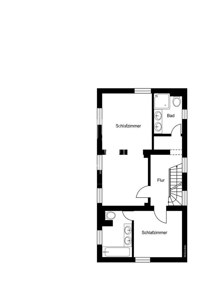
The upper floors feature a master bedroom with an en-suite bathroom including a bathtub, as well as an additional air-conditioned bedroom with an adjoining daylight bathroom. The top floor is designed as a spacious studio of approximately 45 square meters, also air-conditioned, and ideal for use as a home office, guest room, or creative space.
Elegant real wood and herringbone parquet flooring, large windows that allow abundant natural light, and a smart layout combining comfort with functionality define the home’s interior. Throughout the property, the historical essence of the estate is ever-present, creating a warm and inviting ambiance - a place where you will instantly feel at home.
Near Hainerberg: Modern Living in a Historic Setting – Exceptional Courtyard Townhouse
65189 Wiesbaden
Die vollständige Adresse der Immobilie erhalten Sie vom Anbieter.
Auf Karte anzeigen
Die vollständige Adresse der Immobilie erhalten Sie vom Anbieter.
Infos
| Wohnfläche ca. | 150 m2 |
|---|---|
| Grundstücksfläche | 150 m2 |
| Bezugsfrei ab | 01.01.2026 |
| Zimmer | 4,5 |
| Badezimmer | 2 |
| Haustiere | Nach Vereinbarung |
| Anzahl Garage/Stellplatz | 1 |
Kosten
| Kaltmiete |
3.195 € |
|---|---|
| Nebenkosten | keine Angabe |
| Heizkosten | + 230 € |
| Gesamtmiete | 3.195 € |
| Miete für Garage/Stellplatz | 100 € |
| Kaution o. Genossenschaftsanteile | three months’ rent |
Weiter mieten oder doch kaufen?
Wer in Miete wohnt, überweist dem Vermieter im Laufe der Jahre hohe Summen, die sich
auch in die eigenen vier Wände investieren lassen könnten.
Bausubstanz & Energieausweis
| Objektzustand | Gepflegt |
|---|---|
| Qualität der Austattung | Gehoben |
| Heizungsart | Gas-Heizung |
| Wesentliche Energieträger | Gas |
| Energieausweis | laut Gesetz nicht erforderlich |
Beschreibung des Objekts
Ausstattung
- Historic townhouse with unique character
- Spacious living and dining area with fireplace
- Separate, high-quality fitted kitchen
- Direct access to the private garden
- Two-three bedrooms, two daylight bathrooms
- Air-conditioned attic studio (approx. 45 m²)
- Refined materials: real wood and herringbone parquet flooring
- Central yet green location
- Private parking space
Lage
Wiesbaden-Südost, near Hainerberg
Sonstige Angaben
All information is based on statements provided by third parties. We kindly ask for your understanding that we cannot assume any liability for the accuracy or completeness of these details. All offers are subject to change without notice.
Our General Terms and Conditions (GTC) valid at the time of contract conclusion apply and will be provided upon request.
Grundriss
Erdgeschoss
>
>
1. Obergeschoss
>
>
Dachgeschoss
>
>
Adresse
65189 Wiesbaden
Interessante Orte
Preis- und Lageinformationen
Preistrend für Bestandsimmobilien in Südost