Im Rahmen der Wohnnutzung kann in diesen Räumen auch freiberuflich gearbeitet werden. Eine gewerbliche Nutzung ist ausgeschlossen, da in der Hagenstraße Gewerbebetriebe nicht zulässig sind.
Diese denkmalgeschützte Villa in Berlin Grunewald besticht durch ihre historische Eleganz und modernen Annehmlichkeiten. Mit einer herrschaftliche Eingangshalle bietet die Villa ein einladendes Ambiente für Bewohner und Gäste.
Hohe Decken, Stuckverzierungen und Echtholzparkett verleihen den Räumen einen unvergleichlichen Charme.
Erfreuen Sie sich an dem weitläufigen Garten, der von einer der herrlichen Terrassen der Villa aus zu bewundern ist.
Denkmal-Villa im Grunewald mit herrschaftlicher Eingangshalle auf 2 Etagen für Freiberufler!
Hagenstraße 28,
14193 Berlin
Auf Karte anzeigen
Infos
| Haustyp | Villa |
|---|---|
| Etagenzahl | 3 |
| Wohnfläche ca. | 600 m2 |
| Nutzfläche | 600 m2 |
| Grundstücksfläche | 1.733 m2 |
| Zimmer | 5 |
| Schlafzimmer | 2 |
| Badezimmer | 3 |
| Haustiere | Nach Vereinbarung |
| Garage/Stellplatz | Tiefgarage |
| Anzahl Garage/Stellplatz | 3 |
Kosten
| Kaltmiete |
5.800 € |
|---|---|
| Nebenkosten | + 600 € |
| Heizkosten | + 600 € |
| Gesamtmiete | 6.400 € (zzgl. Heizkosten) |
| Miete für Garage/Stellplatz | 0 € |
| Kaution o. Genossenschaftsanteile | 3 Monatsmieten |
Weiter mieten oder doch kaufen?
Wer in Miete wohnt, überweist dem Vermieter im Laufe der Jahre hohe Summen, die sich
auch in die eigenen vier Wände investieren lassen könnten.
Bausubstanz & Energieausweis
| Baujahr | 1910 |
|---|---|
| Letzte Sanierung | 2020 |
| Objektzustand | Gepflegt |
| Qualität der Austattung | Gehoben |
| Heizungsart | Gas-Heizung |
| Wesentliche Energieträger | Erdgas schwer |
| Energieausweis | laut Gesetz nicht erforderlich |
Beschreibung des Objekts
Ausstattung
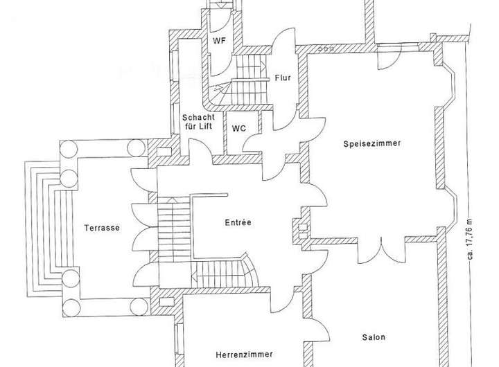
Hochparterre
- herrschaftliche Eingangsterrasse und große Empfangshalle
- Badezimmer mit ebenerdiger Dusche, Design-Waschbecken und WC
- Herrenzimmer
- Salon/Kaminzimmer mit Balkon
- Speisezimmer mit großer Terrasse und Zugang zum Garten
- Küche (Vorbereitung Anschlüsse, Fliesen, ohne Möbel)
Obergeschoss
- Balkon (Abgang von Eingangshalle)
- kleines Badezimmer mit ebenerdiger Dusche und WC
- großes helles Badezimmer mit Blick in den Garten, Design-Waschtisch, WC, Bidet, ebenerdiger Dusche und freistehender Wanne
- Schlafzimmer
- großes Wohnzimmer mit Balkon
Alle Zimmer im Erd- und Obergeschoss verfügen über Stuck/Deckenverzierung, Echtholzparkett sowie z.B.
historische Doppelkastenfenster.
Lage
Das Objekt finden Sie in lebendiger Gegend in Berlin Grunewald (Wilmersdorf). In unmittelbarer Umgebung der Immobilie fahren die Buslinien 186, M29 und X10. Zu Fuß erreichen Sie einige Restaurants, Cafés, einen Ärzte und einen Supermarkt. Verschiedene Grün- und Parkanlagen, Fitnessstudios, zwei Modegeschäfte, zwei Reinigungen und zwei Postannahmestellen finden Sie ebenfalls vor Ort..
Sonstige Angaben
Eine Live-Besichtigung ist nach vorherigem Einkommensnachweis und Vorstellung des Nutzungskonzeptes per mail möglich an mueller@qvi.de
Heinz Müller Tel; 0171 6704949.
Grundriss
Grundriss Obergeschoss
>
>
Grundriss Erdgeschoss
>
>
Adresse
Hagenstraße 28, 14193 Berlin
Interessante Orte
Preis- und Lageinformationen
Preistrend für Bestandsimmobilien in Grunewald (Wilmersdorf)