Dein neues Zuhause in der Papierfabrik Schkeuditz wartet auf dich!
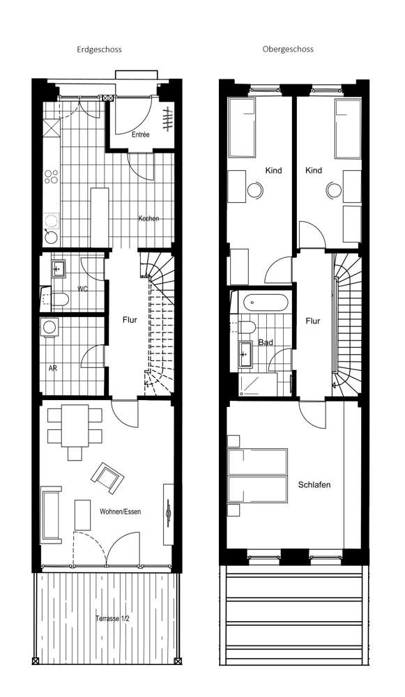
Inmitten eines charmanten, denkmalgeschützten Gebäude-Ensembles befindet sich dieses frisch sanierte Reihenhaus, das historischen Charakter mit modernem Wohnkomfort verbindet. Auf rund 132 m² Wohnfläche erwartet dich ein großzügiges Ambiente mit gehobener Ausstattung. Das offene Wohnkonzept mit vier hellen Zimmern und einer modernen, offenen Küche schafft den idealen Ort für gemütliche Abende mit Familie und Freunden.
Hochwertige Details wie edles Echtholzparkett mit Fußbodenheizung, stilvoll ausgestattete Badezimmer mit Dusche und Badewanne sowie eine großzügige Terrasse zum Entspannen sorgen für ein besonderes Wohngefühl. Zusätzlich profitierst du von gemeinschaftlichen Annehmlichkeiten wie einer Sauna, einem Fitnessbereich und einem Spielplatz für Kinder. Ein Stellplatz im Freien kann für nur 50,00 € monatlich angemietet werden.
Das Reihenhaus ist ab sofort bezugsfertig – direkt einziehen und wohlfühlen. Vereinbare noch heute einen Besichtigungstermin unter 0341 900 440-0!
Weitere Informationen und weitere Angebote findest du unter www.papierfabrik-schkeuditz.de
Exklusives Wohnen in der Papierfabrik Schkeuditz | Wassernähe | Terrasse | Abstellraum | Stellplatz
Fabrikstraße 23,
04435 Schkeuditz
Auf Karte anzeigen
Infos
| Haustyp | Reihenmittelhaus |
|---|---|
| Wohnfläche ca. | 132 m2 |
| Grundstücksfläche | 70 m2 |
| Bezugsfrei ab | sofort |
| Zimmer | 4 |
| Badezimmer | 1 |
| Haustiere | Nach Vereinbarung |
| Garage/Stellplatz | Außenstellplatz |
| Anzahl Garage/Stellplatz | 1 |
Kosten
| Kaltmiete |
1.322 € |
|---|---|
| Nebenkosten | + 400 € |
| Heizkosten | in Nebenkosten enthalten |
| Gesamtmiete | 1.722 € |
| Miete für Garage/Stellplatz | 50 € |
| Kaution o. Genossenschaftsanteile | 2.644,20 |
Weiter mieten oder doch kaufen?
Wer in Miete wohnt, überweist dem Vermieter im Laufe der Jahre hohe Summen, die sich
auch in die eigenen vier Wände investieren lassen könnten.
Bausubstanz & Energieausweis
| Objektzustand | Saniert |
|---|---|
| Qualität der Austattung | Gehoben |
| Heizungsart | Wärmepumpe |
| Energieausweis | laut Gesetz nicht erforderlich |
Beschreibung des Objekts
Ausstattung
- Historisches Gebäude-Ensemble
- Eigenes Haus mit großer Terrasse
- Hochwertig ausgestattete Bäder
- Bad mit Dusche und mit Wanne
- Gäste-WC
- Echtholzparkett und Fußbodenheizung
- Gas-Brennwerttherme und Luft-Wärmepumpe
- Gemeinschaftlich nutzbare Sauna und Fitnessbereich
- Gemeinschaftshof und Spielplatz
- Großer Abstellraum innerhalb des Hauses
- Stellplatz im Freien für 50,00 € /mtl.
- Weitere Wohnungen aus diesem Objekt finden Sie unter www.papierfabrik-schkeuditz.de
Lage
Schkeuditz – Kleinstadtflair mit Großstadtanschluss
Eingebettet zwischen den pulsierenden Städten Leipzig und Halle liegt Schkeuditz – eine charmante Stadt mit rund 18.000 Einwohnern. Bekannt durch den nahegelegenen Flughafen Leipzig/Halle, ist Schkeuditz längst nicht nur Verkehrsknotenpunkt, sondern ein attraktiver Wohnort mit hoher Lebensqualität.
Dank der hervorragenden Verkehrsanbindung über die Autobahnen A9 und A14 sowie die Bundesstraßen B6 und B186, erreichen Sie in kürzester Zeit die Zentren der umliegenden Städte. Auch per Bahn und Straßenbahn ist Schkeuditz bestens vernetzt – ideal für Pendler und Berufstätige. In knapp 15 Minuten erreicht man das Zentrum von Leipzig
Doch nicht nur Mobilität wird hier großgeschrieben: Wer Natur und Erholung sucht, findet sie direkt vor der Haustür. Der Auenwald lädt zu ausgedehnten Spaziergängen oder Fahrradtouren ein, während der Schladitzer See im Norden von Schkeuditz mit Badestellen, Wassersport und Sandstränden überzeugt – perfekt für aktive Sommertage oder entspannte Stunden im Freien.
Kulturell und historisch hat Schkeuditz einiges zu bieten. Die Stadtkirche St. Albanus, zahlreiche Denkmäler sowie ein Rittergut in der Nähe zeugen von einer bewegten Geschichte. Gleichzeitig entwickelt sich die Stadt stetig weiter: Neue Wohngebiete, moderne Freizeiteinrichtungen und ein wachsendes Vereinsleben bringen frischen Wind in die traditionsreiche Gemeinde.
Familienfreundlich, seniorengerecht und offen für Neues – Schkeuditz punktet mit einem breiten Angebot an Kindertagesstätten, Schulen, medizinischer Versorgung und Einkaufsmöglichkeiten. Zwei Krankenhäuser, vielfältige Betreuungs- und Bildungsangebote sowie ein reges Vereins- und Kulturleben machen den Ort besonders lebenswert.
Ob Sie den Alltag entschleunigen oder neue Wurzeln schlagen möchten – in Schkeuditz finden Sie den idealen Ort zum Leben, Arbeiten und Wohlfühlen.
Grundriss
Grundriss
>
>
Adresse
Fabrikstraße 23, 04435 Schkeuditz
Interessante Orte
Preis- und Lageinformationen
Preistrend für Bestandsimmobilien in Schkeuditz