+++ Entdecken Sie diese Immobilie ganz bequem im virtuellen Rundgang! Den Link finden Sie im Inserat – gerne senden wir Ihnen den Rundgang auch auf Anfrage zusammen mit dem ausführlichen Exposé zu. +++
Mitten im lebendigen und charmanten Ortskern von Hage entsteht nach einer umfassenden Umgestaltung ein modernes und zukunftsorientiertes Wohn- und Geschäftshaus, das eine perfekte Verbindung aus urbanem Lebensstil und innovativer Technik bietet. Im Erdgeschoss wurde eine brandneue, kompakte 32 m² große Wohnung geschaffen, die sich perfekt für Singles oder Paare eignet. Im ersten und zweiten Obergeschoss wurde das Gebäude komplett neu strukturiert und beherbergt nun insgesamt 11 stilvolle und individuelle Wohnungen, die über zwei separate Eingänge erreichbar sind, um den Bewohnern mehr Privatsphäre und Komfort zu bieten.
Großen Wert wurde auf Nachhaltigkeit und Energieeffizienz gelegt. Zwei leistungsstarke Wärmepumpen sorgen für eine effiziente und umweltfreundliche Beheizung des Hauses, während eine große Photovoltaikanlage den erzeugten Strom direkt in das System einspeist. Diese moderne Technologie trägt maßgeblich zur Reduzierung der Heizkosten bei und sorgt für ein hohes Maß an Energieautarkie.
Die neu entstandenen Wohnungen bieten nicht nur modernsten Komfort, sondern auch eine Vielzahl hochwertiger Ausstattungsmerkmale:
Jede Wohnung erhält eine hochwertige Einbauküche. Käufer profitieren dabei von einem attraktiven Zuschuss von 50% (maximal 3.000 €) beim Kauf einer Küche über den renommierte Norder Küchenbauer „Küchen am Meer“.
Im Garderobenbereich jeder Wohnung wird jeweils ein hochwertiger Einbauschrank integriert, der für zusätzlichen Stauraum sorgt und die Räume noch funktionaler macht. Die Fenster sind mit einer erstklassigen 3-fach-Verglasung ausgestattet, die sowohl eine exzellente Wärme- als auch Schalldämmung bietet und so den Wohnkomfort erheblich steigert. Deckenspots sorgen für eine gleichmäßige Lichtverteilung und schaffen eine moderne, angenehme Atmosphäre in den Räumen.
Jede Wohnung ist zusätzlich mit einer Fußbodenheizung ausgestattet (außer im Abstellraum), die für behagliche Wärme sorgt und das Raumklima optimiert.: Die Bäder sind mit hochwertigen, großzügigen ebenerdigen Duschen und einem Urinal ausgestattet. Viele Bäder verfügen über Oberlichter und/oder Dachfenster, die für zusätzliches Tageslicht sorgen und den Raum hell und einladend wirken lassen. Fliesen in einer modernen, aber zeitlosen Optik verlegt mit dekorative Ornamentfliesen setzen stilvolle Akzente und verleihen den Bädern einen besonderen Charakter.
Die Böden in den Wohn- und Schlafbereichen sind mit Klebevinyl in der Optik „Eiche Natur“ in Dielenoptik ausgestattet, was sowohl für ein warmes und ansprechendes Ambiente sorgt als auch äußerst pflegeleicht ist. Weiße Stiltüren im 4-Kassetten-Design mit Edelstahldrückern fügen sich elegant in das Gesamtbild ein.
Jede Wohnung verfügt über einen gefliesten Abstellraum, der praktischen Stauraum bietet und somit für zusätzliche Ordnung sorgt. Zusätzlich erhält jede Wohnung einen eigenen Außenabstellraum, der weiteren Stauraum bietet und die Wohnfläche noch flexibler nutzbar macht.
Für die Gestaltung der Außenbereiche wurde auf hohe Qualität geachtet: Die Dachterrassen und Balkone sind mit langlebigen und witterungsbeständigen Bangkirai-Holzdielen ausgestattet, die für ein natürliches, edles Flair sorgen und gleichzeitig pflegeleicht und robust sind.
Im hinteren Bereich des Hauses steht ein Parkplatz zur Verfügung, wobei die Parkplätze derzeit nicht zugewiesen sind. Zudem gibt es die Möglichkeit, zwei Garagen zu einem Aufpreis anzumieten.
Das umgebaute Wohn- und Geschäftshaus in Hage wird mit seiner zentralen Lage, der nachhaltigen Energieversorgung und der hochwertigen Ausstattung den Ansprüchen moderner Mieter allemal gerecht.
Für die Wohnungen ist ausschließlich Vodafone als Internet- und Tele
Neues Wohngefühl im Zentrum von Hage
26524 Hage
Die vollständige Adresse der Immobilie erhalten Sie vom Anbieter.
Auf Karte anzeigen
Die vollständige Adresse der Immobilie erhalten Sie vom Anbieter.
Infos
| Wohnungskategorie | Etagenwohnung |
|---|---|
| Etage | 1 von |
| Wohnfläche ca. | 45 m2 |
| Bezugsfrei ab | Kurzfristig möglich |
| Zimmer | 1 |
| Badezimmer | 1 |
| Haustiere | Nein |
Kosten
| Kaltmiete |
450 € |
|---|---|
| Nebenkosten | + 95 € |
| Heizkosten | keine Angabe |
| Gesamtmiete | 545 € |
| Kaution o. Genossenschaftsanteile | 900 € |
Weiter mieten oder doch kaufen?
Wer in Miete wohnt, überweist dem Vermieter im Laufe der Jahre hohe Summen, die sich
auch in die eigenen vier Wände investieren lassen könnten.
Bausubstanz & Energieausweis
| Baujahr | 2025 |
|---|---|
| Objektzustand | Erstbezug |
| Qualität der Austattung | Gehoben |
| Heizungsart | Wärmepumpe |
| Wesentliche Energieträger | Umweltwärme |
| Energieausweis | liegt vor |
| Energieausweistyp | Bedarfsausweis |
| Energieverbrauchskennwert | 13,3 kWh/(m²*a) |
| Energieeffizienzklasse | A+ |
13,3
kWh/(m²*a)
Energieeffizienzklasse A+
- A+
- A
- B
- C
- D
- E
- F
- G
- H
- 0
- 25
- 50
- 75
- 100
- 125
- 150
- 175
- 200
- 225
- >250
Beschreibung des Objekts
Ausstattung
- neuste Heiztechnik mit Wärmepumpe und Photovoltaikanlage (geringe Heizkosten)
- Zuschuss für die Einbauküche von 50% (max. 3000€) bei Kauf über Firma "Küchen am Meer"
- hochwertiger Einbauschrank im Garderobenbereich je Wohnung
- Fußbodenheizung
- hochwertig ausgestattete Bäder mit großen, ebenerdigen Duschen und Urinal, überwiegend mit Oberlicht und/oder Dachfenstern
- Klebevinyl Eiche Natur in Dielenoptik
- jede Wohnung erhält einen Außenabstellraum
- Dachterrassen und Balkone aus langlebigen und witterungsbeständigen Bangkirai-Holzdielen
- Parkplatz hinter dem Haus, jedoch keine zugeteilten Parkplätze
- Garage optional möglich gegen Aufpreis (2 vorhanden)
Gerne senden wir Ihnen auf Anfrage das Exposé mit einer Übersicht der verfügbaren Wohnungen zu.
Lage
Dieses Neubauprojekt befindet sich mitten im Ortskern von Hage, innerhalb einer verkehrsberuhigten Zone. Hage hat etwa 10.000 Einwohnern und bietet eine umfangreiche Infrastruktur. Diverse Einkaufsmöglichkeiten befinden sich quasi direkt vor der Haustür und sind problemlos fußläufig erreichbar. Nur etwa 300 m von Ihnen entfernt liegt der Einkaufspark mit Lidl, Aldi, Combi, Tedi und auch eine Apotheke. Entlang der "Hauptstraße", einmal quer durch Hage, sind Banken, Bücherläden, ein Fahrradgeschäft, Friseure, ein Nagelstudio, ein Bioladen, diverse Boutiquen, Eisdielen, Restaurants, Pizzerien, ein Bäcker, Apotheken, das Rathaus uvw. zu finden. Auch eine umfangreiche ärztliche Versorgung ist direkt vor Ort, viele Ärzte haben ihren Sitz in Hage. Eine weitere Versorgung bietet das regionale Gesundheitszentrum in Norden. In Berum ist das Kurzentrum für medizinischen Anwendungen mit einem Hallen- und Freibad. Beliebt ist auch der etwa 4,8 ha großen Kiessee mit tollen Spazierwegen. Einen Tennis- und Minigolfplatz finden Sie hier auch. Der Nachbarort "Lütetsburg" ist bekannt durch das Wasserschloss und den imposanten englischen Schlosspark, einer der größten in Norddeutschland. Im Schlosspark selbst lässt sich ein gemütlicher Nachmittag verbummeln. Auch finden hier jährliche Veranstaltungen statt. Ein Fitnessstudio mit Saunalandschaft, ein Tennisplatz, ein kleiner Fußballplatz, ein Reiterhof und die Golfanlage Schloss Lütetsburg bieten Ihnen weitere Freizeitmöglichkeiten.
Sonstige Angaben
Alle Angaben sind ohne Gewähr und basieren ausschließlich auf Informationen, die uns von unserem Auftraggeber übermittelt wurden.
Wir übernehmen keine Gewähr für die Vollständigkeit, Richtigkeit und Aktualität dieser Angaben. Zwischenvermietung und Irrtum vorbehalten.
Auf Wunsch stehen wir Ihnen mit weiteren Informationen zum Objekt gerne zur Verfügung. Die Besichtigung kann nach Vereinbarung mit einem unserer Mitarbeiter oder Beauftragten erfolgen.
______
CLAASHEN IMMOBILIEN – So geht Immobilien heute!
Seit über 42 Jahren sind wir mitten in der Innenstadt von Norden, Ostfriesland ansässig und rund herum professionell, jung, immer offen für neue Wege, souverän und irgendwie anders als andere Immobilienmakler. CLAASHEN IMMOBILIEN ist kein Wunsch zu klein, kein Problem zu groß und kein Ziel zu schwierig. Es ist uns egal, ob unsere Kunden eine Immobilie bauen, kaufen oder verkaufen, mieten oder vermieten wollen, denn bei CLAASHEN IMMOBILIEN werden Wünsche erfüllt, Probleme gelöst und Ziele erreicht. Durch unser weit verzweigtes Netzwerk in Norden – Norddeich über Hage, Großheide, Marienhafe und die umliegenden Orte sowie unsere modernen Verkaufsprozesse und digitalen Lösungen garantieren wir Ihnen eine reibungslose Abwicklung Ihres Immobilienverkaufs bzw. Ihrer Immobilienvermietung sowie marktgerechte Immobilienbewertungen.
Über gute Beratungsergebnisse und Bewertungen haben wir es lt. dem Nachrichtenmagazin FOCUS auch 2025 erneut in Deutschlands große Maklerliste der TOP IMMOBILIENMAKLER geschafft. Auch die großen Immobilienportale Immowelt und Immobilienscout24 zeichnen uns seit Jahren als "Premiumpartner" durch überdurchschnittliches Engagement und Servicementalität aus. Im Jahr 2020 wurden wir zudem für den "Deutschen Immobilienpreis" gelistet. Auch unsere Weiterempfehlungsquote und der hohe Anteil zufriedener Stammkunden bestätigten im Jahr 2024 unsere zuverlässigen und mehr als zufriedenstellenden Dienstleistungen im Verkauf, Vermietung sowie in der Mietverwaltung und Wohnungseigentumsverwaltung in Norden und umzu.
Wir sind spezialisiert auf:
• Wohnungen zur Miete, Wohnungen zum Kauf, Häuser zur Miete, Häuser zum Kauf, Grundstücke, Gewerbeimmobilien, Anlageimmobilien, Seniorenimmobilien
Wir sind tätig in:
• Norden, Norddeich, Hage, Berumbur, Halbemond, Marienhafe, Osteel, Upgant-Schott, Leezdorf, Rechtsupweg, Großheide, Dornum, Dornumersiel, Neßmersiel, Krummhörn, Greetsiel und weitere
Unsere Dienstleistungen:
• Verkauf und Vermietung von Immobilien, Mietverwaltung, Wohnungseigentumsverwaltung, Immobilienbewertung, Erstellung rechtssicherer Mietverträge, Vermittlung von Kauf- und Mietimmobilien, Bonitätsprüfung, Handwerkerempfehlungen, Finanzierungsvermittlung, Baulanderschließung
Sie haben noch Fragen oder schon ein konkretes Anliegen? Dann freuen wir uns auf Ihren Anruf unter 04931 93700!
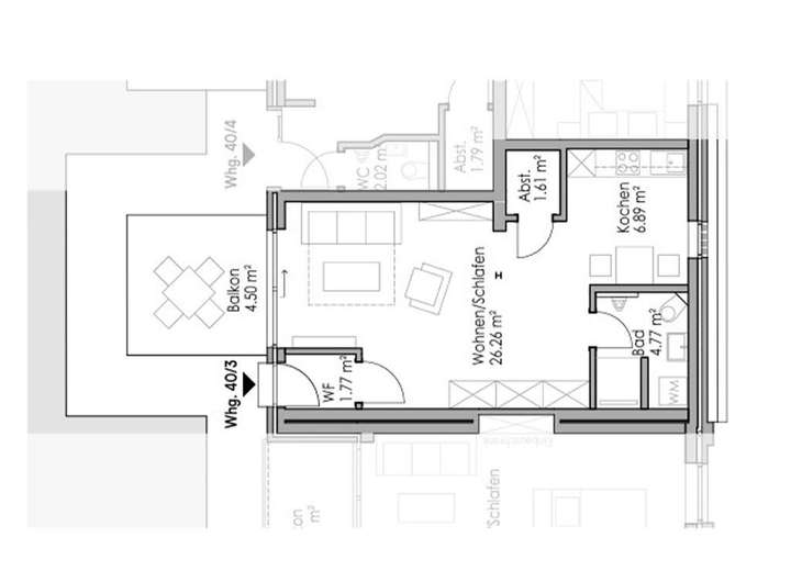
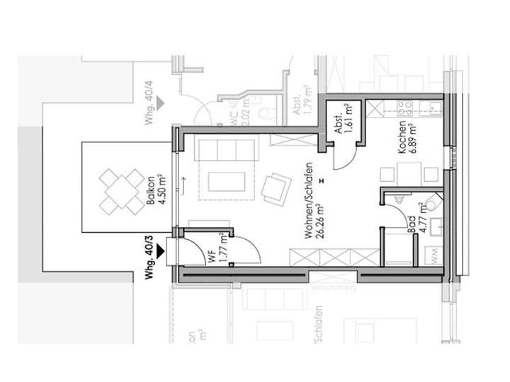
Grundriss
Grundriss
>
>
Adresse
26524 Hage
Interessante Orte
Preis- und Lageinformationen
Preistrend für Bestandsimmobilien in Hage