Dieses traumhafte Eckhaus im Dreispänner mit viel Privatsphäre und einem stilvollen Ambiente wurde 2020 im Zuge einer Kernsanierung nicht nur optisch sondern auch technisch auf den neuesten Stand gebracht.
Neben dem luxuriösen Ambiente, dem offenen Grundriss und der der Möglichkeit einer separaten Einliegerwohnung genießen Sie Ihre Privatsphäre auf der schönen Terrasse mit großem Garten mit Südausrichtung.
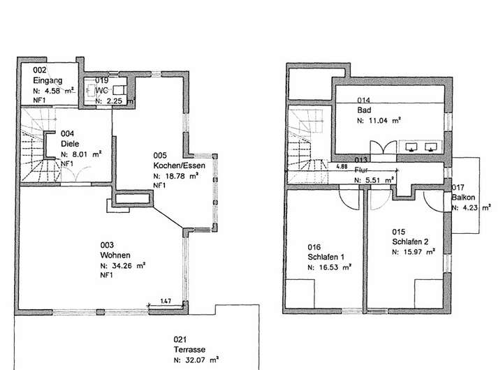
Der stilvolle Eingangsbereich mit durchdachter Garderobe bietet Ihnen den Zugang zum offenen und lichtdurchfluteten Wohn-/Essbereich mit einer exklusiven offenen Küche.
Über das Herzstück des Hauses, den modernen Wohn-/Essbereich mit Wohlfühlambiente gelangen Sie in Ihrem Garten, in dem Sie Ihre Privatsphäre genießen können. Hier bietet sich genügend Platz für eine große Sonnenlounge, Ess- und Sitzmöglichkeiten oder einen Barbcue Bereich.
Im 1.OG erwarten Sie ein Hauptschlafzimmer mit Masterbad und einem Balkon. Ein weiteres Schlafzimmer rundet das Obergeschoss ab.
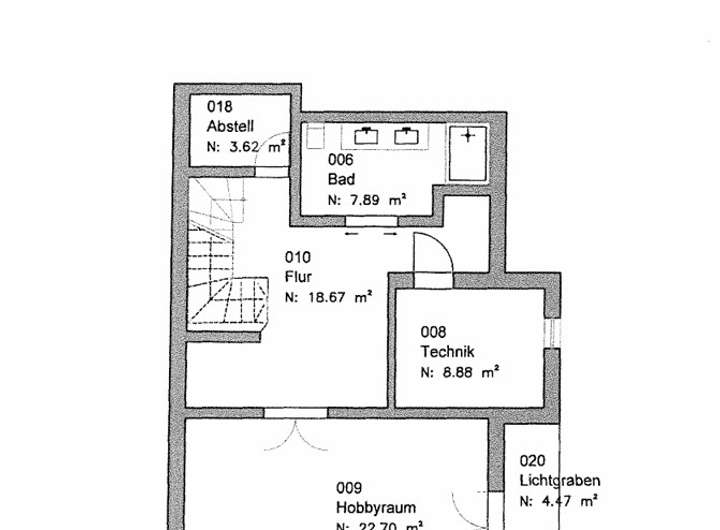
Das Untergeschoß - welches ideal als Einliegerwohnung - für Gäste oder ein Aupair genutzt werden kann, besticht durch die exklusive Ausführung, den guten Grundriss wie auch die Funktionalität, die Räume als Büro, Fitnessraum oder Gästezimmer mit eigenem Entree zu nutzen. Ein vollausgestattetes Badezimmer steht ebenfalls zur Verfügung.
Angrenzend an das Untergeschoss befindet sich ein Heizungs- und Wäscheraum mit der Möglichkeit, diesen zur Staufläche zu nutzen.
ELVIRA - Grünwald, luxuriöses Eckhaus mit großer Sonnenterrasse und Südgarten
82031 Grünwald
Die vollständige Adresse der Immobilie erhalten Sie vom Anbieter.
Auf Karte anzeigen
Die vollständige Adresse der Immobilie erhalten Sie vom Anbieter.
Infos
| Haustyp | Reiheneckhaus |
|---|---|
| Wohnfläche ca. | 172 m2 |
| Nutzfläche | 224 m2 |
| Grundstücksfläche | 694 m2 |
| Bezugsfrei ab | nach Absprache |
| Zimmer | 5 |
| Schlafzimmer | 3 |
| Badezimmer | 2 |
| Anzahl Garage/Stellplatz | 2 |
Kosten
| Kaltmiete |
5.590 € |
|---|---|
| Nebenkosten | + 230 € |
| Heizkosten | in Nebenkosten enthalten |
| Gesamtmiete | 5.980 € |
| Miete für Garage/Stellplatz | 160 € |
Weiter mieten oder doch kaufen?
Wer in Miete wohnt, überweist dem Vermieter im Laufe der Jahre hohe Summen, die sich
auch in die eigenen vier Wände investieren lassen könnten.
Bausubstanz & Energieausweis
| Baujahr | 1997 |
|---|---|
| Objektzustand | Saniert |
| Heizungsart | Fußbodenheizung |
| Wesentliche Energieträger | Erdgas schwer |
| Energieausweis | liegt vor |
| Energieausweistyp | Bedarfsausweis |
| Energieverbrauchskennwert | 90,8 kWh/(m²*a) |
| Energieeffizienzklasse | C |
90,8
kWh/(m²*a)
Energieeffizienzklasse C
- A+
- A
- B
- C
- D
- E
- F
- G
- H
- 0
- 25
- 50
- 75
- 100
- 125
- 150
- 175
- 200
- 225
- >250
Beschreibung des Objekts
Ausstattung
- Massives Eichenparkett (dunkelbraun)
- Weiße Kassettentüren
- Bodentiefe Fensterfronten
- Hochwertige Ausstattung in der Einbauküche:
BORA, SIEMENS, MIELE usw.
- Exklusive Badezimmerausstattung von Villeroy & Boch, Duravit, Hansgrohe, Feinsteinzeug und Glasduschkabinen nach Maß
- Elektrische Rollläden im OG
- Neue Gasheizungsanlage von Viessmann
- Parkmöglichkeiten: Carport und Stellplatz mit E-Anschluß
(1 Car-Port Stellplatz für 80 Euro/p.M. und ein Freistellplatz für 80 Euro/p.M. und sind bereits in der hier angegebenen Warmmiete inkludiert.)
Lage
In einer der exklusivsten und schönsten Adressen in München, der Gemeinde Grünwald, die etwa 14 km südlich der Münchner Innenstadt am östlichen Ufer der Isar liegt, befindet sich dieses charmante Reiheneckhaus.
In Grünwald gibt es eine exklusive und besondere Auswahl an Einkaufsmöglichkeiten, die weit über den alltäglichen Bedarf hinausreichen.
Eine sehr gute Grundschule, ein modernes Gymnasium, eine „International Preschool“ , Fachärzte, eine Apotheke, Cafes und Restaurants befinden sich in der exklusiven Gemeinde Grünwald.
Eine große Auswahl an Freizeitaktivitäten bietet enormen Mehrwert.
Durch die Nähe zum Isarhochufer gibt es eine Vielzahl von Freizeitgestaltungen. Sowohl der Starnberger- als auch der Tegernsee sowie das bayerische Voralpenland sind in kurzer Entfernung zu erreichen.
Sonstige Angaben
Die Kosten für Heizung und Warmwasser sind nicht in der Betriebskostenvorauszahlung berücksichtigt und werden direkt zwischen Mieter und Versorger abgerechnet.
Baujahr: 1997
Letzte Modernisierung: Kernsanierung in 2020
Zustand: Saniert
Energieausweis: Bedarfsausweis
Endenergiebedarf: 90,8 kWh/(m²a)
Energieausweis gültig bis: 30.11.2030
Energieeffizienzklasse: C
Warmwasser enthalten: Ja
wesentlicher Energieträger: Erdgas schwer
Adresse
82031 Grünwald
Interessante Orte
Preis- und Lageinformationen
Preistrend für Bestandsimmobilien in Grünwald