Diese attraktive 2-Zimmer-Wohnung mit ca. 60 m² Grundfläche befindet sich im 1. DG eines gepflegten KFW 40 Mehrfamilienhauses (Hoch gedämmt) in Zirndorf-Bronnamberg. Die Wohnung besticht durch eine gehobene Innenausstattung und einen schönen Balkon, der zum Entspannen einlädt. Ein eigener Kellerraum bietet zusätzlichen Stauraum. Die Wohnung verfügt über einen Stellplatz, die für Ihr Fahrzeug zur Verfügung steht.
Haustiere sind nach Absprache erlaubt. Wohnungen, die durch eine gehobene Innenausstattung bestechen und die zum 01.04.2026 bezogen werden können.
Nach Absprache auch ab 01.02.2026 möglich.
Für eine Besichtigung/Fragen können sie mich unter 01738768148 erreichen.
Die Küche kann gegen Ablöse von 3500 € Verhandlungsbasis
abgelöst werden Küche ist kein Jahr alt, alle Papiere liegen vor, auch Garantie für Küche/ Elektrogeräte
Ein aktueller Energieausweis liegt vor, wurde 2024 fertiggestellt. Zur Immobilien gehören auch ein Balkon, auf dem es sich wunderbar vom Alltag erholen lässt. Zu den Wohnungen gehört auch je ein Stellplatz für Ihr Auto, was Ihnen bequemes Parken ohne langes Suchen garantiert. Ebenso steht Ihnen ein Dachboden-Abteil zur Verfügung.
Folgende Leistungen gehören zu den Nebenkosten:
Schneeräumen, Reinigung
aller Gemeinschaftsflächen
und das Stellen der Mülltonnen
zur Abholung und zurück.
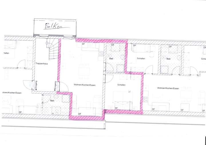
Dies sind ca. Werte die nur dazu dienen ca. Größen der Räume
zu zeigen.
Beheizte Fläche: 51,88 m²
Wohnfläche 54,33 m²
Balkon 4,90 m²
Wohn-Küchenraum 32,10 m²
Schlafzimmer 13,93 m²
Badezimmer 5,85 m²
Dachboden Abteil
Neubau Wohnung 2-Zimmer mit Balkon mit Loftcharakter
Adlerstraße 27,
90513 Zirndorf
Auf Karte anzeigen
Infos
| Wohnungskategorie | Dachgeschoss |
|---|---|
| Etage | 3 von 3 |
| Wohnfläche ca. | 55 m2 |
| Nutzfläche | 65 m2 |
| Bezugsfrei ab | 1.4.2026 |
| Zimmer | 2 |
| Schlafzimmer | 1 |
| Badezimmer | 1 |
| Haustiere | Nach Vereinbarung |
| Garage/Stellplatz | Außenstellplatz |
| Anzahl Garage/Stellplatz | 1 |
Kosten
| Kaltmiete |
760 € |
|---|---|
| Nebenkosten | + 158 € |
| Heizkosten | in Nebenkosten enthalten |
| Gesamtmiete | 918 € |
| Miete für Garage/Stellplatz | 48 € |
| Kaution o. Genossenschaftsanteile | 2230 |
Weiter mieten oder doch kaufen?
Wer in Miete wohnt, überweist dem Vermieter im Laufe der Jahre hohe Summen, die sich
auch in die eigenen vier Wände investieren lassen könnten.
Bausubstanz & Energieausweis
| Baujahr | 2022 |
|---|---|
| Letzte Sanierung | 2022 |
| Objektzustand | Neuwertig |
| Qualität der Austattung | Gehoben |
| Heizungsart | Holz-Pelletheizung |
| Energieausweis | liegt vor |
| Energieausweistyp | Bedarfsausweis |
| Energieverbrauchskennwert | 8,5 kWh/(m²*a) |
| Energieeffizienzklasse | A+ |
8,5
kWh/(m²*a)
Energieeffizienzklasse A+
- A+
- A
- B
- C
- D
- E
- F
- G
- H
- 0
- 25
- 50
- 75
- 100
- 125
- 150
- 175
- 200
- 225
- >250
Beschreibung des Objekts
Ausstattung
Das Haus
ist mit einer hochwertigen
Wasseraufbereitung ausgestattet.
Und einer Hackschnitzelheizung, die ohne fossile Brennstoffe auskommt.
-Sehr helle Wohnung, 3-Fach Verglasung
-Elektrische Rollos
-Fußbodenheizung
-Wohnung ist komplett mit großformatigen Fliesen gefliest
-Eigene Frischwasserstadion
-Ebenerdige Dusche
-Dachboden-Abteil
-Parkplatz
-Die Küche wird vom jetzigen Mieter mitgenommen
-Schnelles Internet 200er-Leitung
Makleranfragen nicht erwünscht. Nach § 7 UWG sind unaufgeforderte Kontaktaufnahmen durch Makler ohne ausdrückliche Einwilligung des Empfängers verboten!
Lage
Zirndorf bietet eine gute Infrastruktur mit Einkaufsmöglichkeiten, Ärzten und öffentlichen Verkehrsmitteln. Die Nähe zu Grünflächen und Freizeitmöglichkeiten rundet das attraktive Wohnumfeld ab. Die Anbindung an das öffentliche Verkehrsnetz ist vorhanden.
Helle im Grünen liegende Wohnung mit einer
Aussicht auf Wald und Flur und ruhiger Umgebung /Vorort mit aber einer im
ca. 2 km im Umkreis großen Einkaufsmöglichkeit.
-Nahe der Rotenburgerstraße mit ihren
Einkaufsmöglichkeiten
-S4 Anwanden = Essbahnlinie und Station ca. 3,5
Km und von dort ca. 12 Minuten nach
Hauptbahnhof Nürnberg.
-Und verschieden Busstationen und
Bahnstrecken max. in 4 km Entfern
- R-Bahn in Zirndorf und Weiherhof vorhanden
Die Immobilie liegt in belebter Gegend in Zirndorf. In direkter Umgebung finden Sie zwei Restaurants vor. Auch zwei Fitnessstudios erreichen Sie.
Das Zirndorf er Ortsteil Bronnamberg ist sehr schön im Grünen gelegen für eine gehobene Wohn- und Lebensqualität.
Durch in wenigen Minuten min dem Auto erreichbare Verkehrsanbindungen nach Nürnberger Hauptbahnhof S4
oder verschiedenen R-Bahnhöfen.
Aller Einkaufsmöglichkeiten des
täglichen Bedarfs sind nur wenige Auto-Fahrminuten in der nahen Umgebung in großer Auswahl oder wenigen
Fahrradminuten entfernt vorhanden.
In 3 Autominuten nach Anwanden ist eine S-Bahn, mit der man in 12 Minuten in Nürnberger Hauptbahnhof ist.
In der Nachbargemeinde Weiherhof und Zirndorf gibt es auch noch R-Bahn Anschluss.
Anschluss. Das Objekt befindet sich in belebter Wohnlage in Zirndorf. Der öffentliche Personennahverkehr ist über die Buslinie N8 angebunden. In direkter Umgebung finden Sie zwei Restaurants vor. Auch zwei Fitnessstudios erreichen Sie.
Sonstige Angaben
Für die Bewerbung
-Selbstauskunft wird ausgehändigt bei der Besichtigung
-Vermieter Schufa nicht älter als 6 Wochen
-Gehaltsnachweise der letzten 3 Monate
Grundriss
Grundriss Adlerstraße 27 Whg9
>
>
Adresse
Adlerstraße 27, 90513 Zirndorf
Interessante Orte
Preis- und Lageinformationen
Preistrend für Bestandsimmobilien in Zirndorf