Modern, hochwertig und ideal für Familien.
Diese neue Doppelhaushälfte aus dem Jahr 2024 liegt angenehm zurückgesetzt vom Straßenbereich und bietet dadurch ein besonders geschütztes, ruhiges Wohnumfeld.
Die klare Architektur und der durchdachte Grundriss verbinden zeitgemäßen Wohnkomfort mit einem angenehmen Raumgefühl, das sich über drei Ebenen erstreckt.
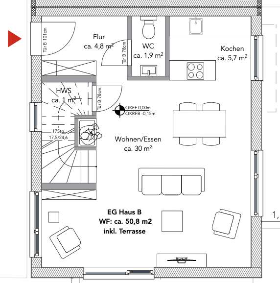
Im Erdgeschoss öffnet sich der helle Wohn- und Essbereich zur Terrasse und in den Garten und bildet das Herzstück des Hauses. Große Fensterflächen sorgen für eine freundliche Atmosphäre, während die sinnvolle Einbindung der Küche den Alltag erleichtert. Ein Gäste-WC ergänzt diese Ebene und macht das Erdgeschoss komplett.
Hier entsteht ein Wohnbereich, der sowohl gemeinsames Leben als auch Rückzug mühelos ermöglicht.
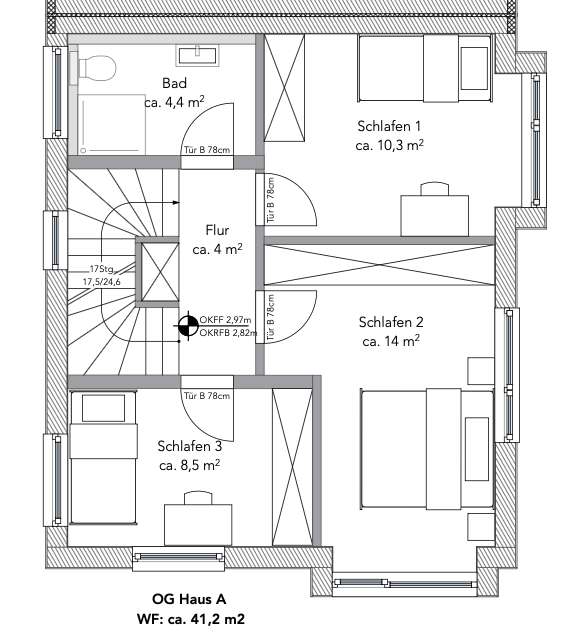
Das erste Obergeschoss bietet drei vielseitig nutzbare Zimmer sowie ein modernes Tageslichtbad mit Dusche – perfekt für Familien, Gäste oder Homeoffice. Jede Etage überzeugt durch durchdachte Details und eine klare Struktur, die den Wohnkomfort spürbar erhöhen. Das Dachgeschoss bildet mit seiner großzügigen Fläche und dem eigenen Bad mit Badewanne einen idealen Rückzugsort.
Ob Elternsuite, Arbeitsbereich oder privates Studio – diese Ebene schafft Flexibilität und Ruhe in einem.
Moderne Haustechnik rundet das Angebot ab: Wärmepumpe und Fußbodenheizung in allen Wohnbereichen sorgen für effiziente Energieversorgung und ein behagliches Raumklima.
Ein eigener Stellplatz befindet sich direkt am Haus.
Durch die ruhige, versetzte Lage und die hochwertige Ausstattung entsteht hier ein Zuhause, das stilvolles Wohnen mit familiärer Geborgenheit verbindet – ein Neubaudomizil, das sofort überzeugt.
Familientraum in Darmstadt – großzügige DHH mit Garten
64297 Darmstadt
Die vollständige Adresse der Immobilie erhalten Sie vom Anbieter.
Auf Karte anzeigen
Die vollständige Adresse der Immobilie erhalten Sie vom Anbieter.
Infos
| Haustyp | Doppelhaushaelfte |
|---|---|
| Etagenzahl | 3 |
| Wohnfläche ca. | 138 m2 |
| Nutzfläche | 119,6 m2 |
| Grundstücksfläche | 150 m2 |
| Bezugsfrei ab | sofort |
| Zimmer | 5 |
| Schlafzimmer | 4 |
| Badezimmer | 3 |
| Haustiere | Nach Vereinbarung |
| Garage/Stellplatz | Außenstellplatz |
| Anzahl Garage/Stellplatz | 1 |
Kosten
| Kaltmiete |
2.600 € |
|---|---|
| Nebenkosten | + 200 € |
| Heizkosten | + 0 € |
| Gesamtmiete | 2.800 € (zzgl. Heizkosten) |
| Miete für Garage/Stellplatz | 0 € |
Weiter mieten oder doch kaufen?
Wer in Miete wohnt, überweist dem Vermieter im Laufe der Jahre hohe Summen, die sich
auch in die eigenen vier Wände investieren lassen könnten.
Bausubstanz & Energieausweis
| Baujahr | 2024 |
|---|---|
| Objektzustand | Erstbezug |
| Qualität der Austattung | Gehoben |
| Wesentliche Energieträger | Strom |
| Energieausweis | liegt vor |
| Energieausweistyp | Bedarfsausweis |
| Energieverbrauchskennwert | 23,2 kWh/(m²*a) |
| Energieeffizienzklasse | A+ |
23,2
kWh/(m²*a)
Energieeffizienzklasse A+
- A+
- A
- B
- C
- D
- E
- F
- G
- H
- 0
- 25
- 50
- 75
- 100
- 125
- 150
- 175
- 200
- 225
- >250
Beschreibung des Objekts
Ausstattung
Allgemein:
- Neubau-Doppelhaushälfte aus dem Jahr 2024
- Wohnfläche: ca. 138 m²
insgesamt 5 Zimmer auf drei Etagen
- moderne, klare Architektur und durchdachte Grundrissgestaltung
- ruhige, familienfreundliche Lage durch zurückgesetzte Position auf dem Grundstück
- ideal für Paare, Familien oder Menschen, die Wert auf modernes Wohnen legen
Haus & Ausstattung:
- lichtdurchfluteter Wohn- und Essbereich mit Zugang zur Terrasse
- drei Schlafzimmer + zusätzliches großes Studio im Dachgeschoss
- drei Bäder: Gäste-WC im EG, Duschbad im 1. OG, Bad mit Badewanne im DG
Fußbodenheizung in allen Wohnbereichen
- energieeffiziente Haustechnik mit Wärmepumpe
- hochwertige Boden- und Wandoberflächen
- moderne Tageslichtbäder mit zeitgemäßer Ausstattung
- praktischer Abstellraum im Erdgeschoss
insgesamt ca. 136 m² Nettoraumfläche inkl. Nutzbereiche
Außenbereich:
- sonniger, pflegeleichter Gartenbereich direkt am Wohnraum
- Terrasse mit idealer Ausrichtung für Familienzeit und Erholung
- eigener Stellplatz direkt vor dem Haus
Lage:
- attraktive Wohnlage in Darmstadt-Eberstadt
- angenehm ruhige Umgebung trotz guter Erreichbarkeit
- Einkaufsmöglichkeiten, Schulen, Kitas und Freizeitangebote in direkter Nähe
- sehr gute Anbindung an den öffentlichen Nahverkehr und die Autobahn
- familienfreundliches Umfeld mit hoher Lebensqualität
Lage
Darmstadt-Eberstadt gehört zu den gefragtesten Wohnlagen im Süden der Wissenschaftsstadt.
Der Stadtteil verbindet gewachsene Wohnstrukturen mit einer lebendigen Infrastruktur und bietet damit eine ideale Mischung aus ruhigem Alltag und guter Erreichbarkeit.
Charakteristisch sind gepflegte Wohnstraßen, viel Grün im Umfeld und ein familiäres, angenehmes Wohnklima.
Im Ortskern und entlang der Haupteinkaufsachsen finden sich zahlreiche Möglichkeiten zur täglichen Versorgung – von Supermärkten über Bäckereien bis hin zu Cafés und kleineren Läden.
Schulen, Kitas und medizinische Versorgungseinrichtungen sind ebenfalls im Stadtteil angesiedelt und gut erreichbar, was Eberstadt besonders attraktiv für Familien macht.
Auch verkehrstechnisch ist der Stadtteil hervorragend angebunden: Mehrere Straßenbahn- und Buslinien verbinden Eberstadt regelmäßig mit der Darmstädter Innenstadt, dem Hauptbahnhof und umliegenden Gemeinden. Für Pendler ist zudem die schnelle Anbindung an die großen Autobahnen A5 und A67 ein entscheidender Vorteil. Gleichzeitig bietet die Nähe zu Natur- und Erholungsbereichen wie dem Eberstädter Westwald, dem Oberfeld oder den Wegen Richtung Bergstraße zahlreiche Möglichkeiten für Freizeitaktivitäten im Grünen.
Insgesamt bietet diese Lage eine ausgewogene Kombination aus Ruhe, guter Versorgung, schneller Mobilität und hoher Lebensqualität – ein Wohnumfeld, das sich langfristig bewährt und für unterschiedliche Lebenssituationen hervorragend geeignet ist.
- nächste Haltestelle: 300m
- Einkaufsmöglichkeiten: 1km
- Autobahnanschluss: 2min
- Schulen und Kitas: 1km
- Bahnhof Darmstadt/Eberstadt: 500m
Grundriss
Grundriss
>
>
Grundriss
>
>
DG (+Badezimmer vorhanden)
>
>
Adresse
64297 Darmstadt
Interessante Orte
Preis- und Lageinformationen
Preistrend für Bestandsimmobilien in Eberstadt