Das Grundstück ist projektiert als Einfamilienhaus mit Fußbodenheizung, Wärmepumpe, Einbauküche, Solaranlage, dreifach verglaste Fenster, Schornstein, komplett variabler Raumaufteilung (auch 4, 5 oder 6 Zimmer möglich), Garage und komplett schlüsselfertiger Erstellung incl. Malerarbeiten und Fußbodenverlegung.
Das Haus ist als Mietkaufvariante kalkuliert, da diese durch den Entfall eines Investors günstiger wird. Dadurch zahlen Sie die Miete quasi in die eigene Tasche und sind nach Ende der vereinbarten Laufzeit schuldenfreier Eigentümer dieses Hauses. (notariell verbrieft und grundbuchlich abgesichert) Die Gesamtlaufzeit können Sie dabei selber beeinflussen. Der Einsatz von Eigenkapital ist nicht erforderlich und bestehende Zahlungsverpflichtungen stellen dabei grundsätzlich kein Hindernis dar. (Positive Schufa und ein regelmäßiges Arbeitseinkommen vorausgesetzt)
Das Haus kann aber auch herkömmlich gemietet werden. Der monatliche Aufwand erhöht sich dabei durch den Einsatz eines Investors um rund 280€.
Das Haus wird erst komplett fertig gebaut. Vorher fließt kein Euro von Ihrem Konto ab.
Sollte Ihnen dieser Grundstücksstandort nicht gefallen, können wir Ihnen auch alternative Grundstücke oder alternative Häuser mit dem gleichen Konzept anbieten. Einfach Einloggen und Grundstückssuchmaschine aktivieren. Den Rest erledigt die KI.
Alle in der Region verfügbaren Grundstücksangebote und Hausvarianten finden Sie über unsere Grundstückssuchmaschine in unserem Projektsteuerungstool. Die Zugangsdaten erhalten Sie,
wenn Sie uns über das Kontaktformular eine Anfrage senden.
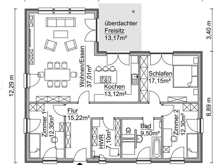
Bungalow 136m2, Garage, Küche, Terrassenüberd, PV Anlage, als Mietkaufpremium inkl. KFW Förderung
23948 Kalkhorst
Die vollständige Adresse der Immobilie erhalten Sie vom Anbieter.
Auf Karte anzeigen
Die vollständige Adresse der Immobilie erhalten Sie vom Anbieter.
Infos
| Haustyp | Bungalow |
|---|---|
| Etagenzahl | 1 |
| Wohnfläche ca. | 136 m2 |
| Nutzfläche | 136 m2 |
| Grundstücksfläche | 663 m2 |
| Bezugsfrei ab | 4. Quartal 2026 |
| Zimmer | 4 |
| Schlafzimmer | 3 |
| Badezimmer | 1 |
| Haustiere | Ja |
| Garage/Stellplatz | Garage |
| Anzahl Garage/Stellplatz | 2 |
Kosten
| Kaltmiete |
1.728 € |
|---|---|
| Nebenkosten | + 100 € |
| Heizkosten | in Nebenkosten enthalten |
| Gesamtmiete | 1.828 € |
| Miete für Garage/Stellplatz | 0 € |
Weiter mieten oder doch kaufen?
Wer in Miete wohnt, überweist dem Vermieter im Laufe der Jahre hohe Summen, die sich
auch in die eigenen vier Wände investieren lassen könnten.
Bausubstanz & Energieausweis
| Baujahr | 2026 |
|---|---|
| Objektzustand | Erstbezug |
| Qualität der Austattung | Gehoben |
| Heizungsart | Fußbodenheizung |
| Wesentliche Energieträger | Erdwärme |
| Energieausweis | liegt zur Besichtigung vor |
Beschreibung des Objekts
Ausstattung
Siehe Anlage "Ausstattungspaket Classic"
Lage
Die Stadt Klütz mit ca. 3.100 Einwohnern und sämtlichen Versorgungseinrichtungen wie Ärzten, Einkaufsmöglichkeiten, Kitas und einer Regionalschule ist Zentrum des landschaftlich reizvollen "Klützer Winkels". Das touristische Highlight der Stadt Klütz, das landeseigene Schloss Bothmer, wurde in den letzten Jahren aufwendig saniert. Das Schloss mit seinem schönen Schlossgarten ist mit dem Fahrrad, aber auch fußläufig schnell erreichbar.
Sonstige Angaben
Kalkuliert sind die Angebote als unmöblierte, aber bezugsfertige Häuser, die man in verschiedenen Ausstattungsvarianten erhalten kann. (Smart/Classik/Premium) Details und preisliche Abstufungen finden Sie in unserem Projektsteuerungstool. (Einfach registrieren)
Sie können unsere Häuser aber auch in der "all inklusiv" Variante bestellen und die Häuser incl. Interieur exakt so erhalten wie abgebildet. Alternativ können Sie sich aber auch eine Material-Liste incl. Bestelllink zu den verschiedenen Herstellern geben lassen und individuell bestellen was Ihnen ggfs, besonders gefällt. Alle Angebote sind individuell von unseren Innenarchitekten designt. Gerne liefern wir Ihnen auch alternative Designs.
Bitte bedenken Sie das die im Video dargestellten Außenanlagen in dem abgebildeten Preis nicht enthalten sind, Eine individuelle Gestaltung ist aber auf Anfragen in alle Varianten möglich.
Weitere Dokumente
Datenschutzerklärungdas sind wir
das sagt die Presse
Premium-Sicherheitssysteme
Smart-Home-Paket-Lebendige-Hei
Smart-Home-Turschloss-mit-Gesi
Ausstattungspaket Classic
Grundriss
Grundriss
>
>
Adresse
23948 Kalkhorst
Interessante Orte
Preis- und Lageinformationen
Preistrend für Bestandsimmobilien in Kalkhorst