Dieses gepflegte Mehrfamilienhaus mit insgesamt 9 Wohneinheiten überzeugt durch seine ruhige und dennoch verkehrsgünstige Lage. Das voll unterkellerte Gebäude bietet nicht nur zusätzlichen Stauraum für Mieter, sondern punktet auch mit einer gemeinschaftlich nutzbaren Gartenfläche, die zum Verweilen im Grünen einlädt.
Für den Komfort der Bewohner stehen Außenstellplätze zur Verfügung, was die Parkplatzsuche erheblich erleichtert. Die Anbindung an den öffentlichen Nahverkehr ist hervorragend – Bushaltestellen und/oder Bahnhöfe befinden sich in unmittelbarer Nähe, wodurch eine schnelle Erreichbarkeit der Innenstadt oder anderer Stadtteile gewährleistet ist.
Insgesamt handelt es sich um eine attraktive Immobilie mit stabiler Mieterstruktur, ideal für Kapitalanleger oder Investoren mit Fokus auf solide Rendite in ruhiger Wohnlage.
Schön helle, modernisierte 2-Zimmer-Wohnung mit komfortablem Zuschnitt
Reuterstr. 2,
01705 Freital
Auf Karte anzeigen
Infos
| Wohnungskategorie | Etagenwohnung |
|---|---|
| Etage | 1 von 2 |
| Wohnfläche ca. | 55 m2 |
| Bezugsfrei ab | 01.01.2026 |
| Zimmer | 2 |
| Schlafzimmer | 1 |
| Badezimmer | 1 |
| Haustiere | Nach Vereinbarung |
| Garage/Stellplatz | Außenstellplatz |
| Anzahl Garage/Stellplatz | 1 |
Kosten
| Kaltmiete |
390 € |
|---|---|
| Nebenkosten | + 200 € |
| Heizkosten | in Nebenkosten enthalten |
| Gesamtmiete | 590 € |
| Miete für Garage/Stellplatz | 25 € |
| Kaution o. Genossenschaftsanteile | € 1260 |
Weiter mieten oder doch kaufen?
Wer in Miete wohnt, überweist dem Vermieter im Laufe der Jahre hohe Summen, die sich
auch in die eigenen vier Wände investieren lassen könnten.
Bausubstanz & Energieausweis
| Baujahr | 1920 |
|---|---|
| Letzte Sanierung | 2025 |
| Objektzustand | Modernisiert |
| Qualität der Austattung | Normal |
| Heizungsart | Zentralheizung |
| Wesentliche Energieträger | Gas |
| Energieausweis | liegt vor |
| Energieausweistyp | Verbrauchsausweis |
| Energieverbrauchskennwert | 132,3 kWh/(m²*a) |
| Energieeffizienzklasse | E |
132,3
kWh/(m²*a)
Energieeffizienzklasse E
- A+
- A
- B
- C
- D
- E
- F
- G
- H
- 0
- 25
- 50
- 75
- 100
- 125
- 150
- 175
- 200
- 225
- >250
Beschreibung des Objekts
Ausstattung
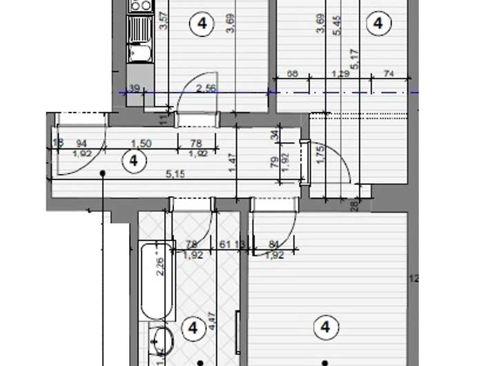
Sie betreten die Wohnung über einen langen Flur, von dem alle Zimmer abgehen. Die geräumige Küche mit Fenster und Fliesenspiegel und das Schlafzimmer sind zum Hof hin ausgerichtet. Das türhoch geflieste Badezimmer, ist mit Badewanne, WC, Waschtisch und einem Fenster ausgestattet. Das Wohnzimmer ist gen Süden ausgerichtet und somit immer schön lichtdurchflutet. Alle Wohnräume verfügen über einen neuen Laminatboden. Zur Wohnung gehört ein Kellerabteil. Ein Stellplatz gehört zur Wohnung und kostet monatlich 25,00 €. Besichtigungen finden ab sofort statt.
Lage
Verkehrslage: Die gute Lage nahe der Landeshauptstadt Dresden und somit auch gute Erreichbarkeit machen das Reisen von und nach Freital einfach und bequem. Die Autobahn ist in kurzer Zeit zu erreichen. Die Fahrt mit der S-Bahn von Freital-Deuben zum Hauptbahnhof Dresden dauert 10 Minuten. Vom Hauptbahnhof aus bestehen Anschlüsse an Fernreisezüge. Der öffentliche Nahverkehr bringt Sie in Freital schnell ans Ziel und vernetzt zuverlässig mit den umliegenden Gemeinden. Die Entfernung zum Flughafen Dresden beträgt 25 Kilometer - rund 30 Minuten Fahrtzeit mit dem Auto (über A 17 und A 4) bzw. in a. 1 Stunde mit der S-Bahn. Einkaufsmöglichkeiten sind fußläufig zu erreichen.
Sonstige Angaben
Energieausweis: Verfügbar
Ausweistyp: Verbrauchsausweis
Kennwert: 132,33 kWh
Gültig bis: 09.11.2030
Grundriss
Grundriss
>
>
Adresse
Reuterstr. 2, 01705 Freital
Interessante Orte
Preis- und Lageinformationen
Preistrend für Bestandsimmobilien in Freital