Ein Zuhause zum Wohlfühlen für die ganze Familie!
Dieses schöne Einfamilienhaus in Randlage von Traunstein bietet mit ca. 178 m² Wohnfläche und 6 Zimmern viel Platz für die ganze Familie.
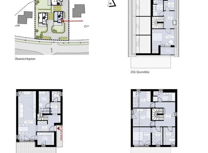
Der hochwertige Neubau überzeugt mit durchdachter Architektur, der tollen Grundrissgestaltung, den lichtdurchfluteten Räumen und dem offenen Studio im Dachgeschoss – ideal für Familien, die Wert auf Komfort und Wohnqualität legen.
Große Fensterfronten schaffen eine helle und freundliche Atmosphäre. Der offene Wohn- und Essbereich mit direktem Zugang zur Terrasse und zum Garten bildet das Herzstück des Hauses – ein Ort, an dem sich das Familienleben wunderbar entfalten kann und sich auch Ihre Gäste wohl fühlen werden.
Die Immobilie bietet großzügige Schlaf- und Kinderzimmer, moderne Tageslichtbäder mit Dusche und Wanne sowie ein ausgebautes Dachgeschoss, das sich flexibel als Arbeits- oder Hobbybereich nutzen lässt. Das Elternschlafzimmer verfügt über eine begehbare Ankleide.
Dank einer energieeffizienten Haustechnik mit einer Luftwärmepumpe und zeitgemäßer Ausstattung genießen Sie nicht nur hohen Wohnkomfort, sondern auch niedrige Betriebskosten. Hierzu trägt auch eine hauseigene PV-Anlage bei.
Zwei moderne, hochwertig ausgestattete Badezimmer mit Dusche und Wanne, das Studio im Dachgeschoss, ein zusätzliches Zimmer geeignet als Büro sowie die Schlaf- und Kinderzimmer unterstreichen die vielseitige Nutzbarkeit dieses Hauses.
Hier vereinen sich Stadtnähe, Natur und modernes Wohnen auf ideale Weise.
Modernes Neubau-Einfamilienhaus mit Garten in Traunstein - naturnah & stadtnah zugleich
83278 Traunstein
Die vollständige Adresse der Immobilie erhalten Sie vom Anbieter.
Auf Karte anzeigen
Die vollständige Adresse der Immobilie erhalten Sie vom Anbieter.
Infos
| Haustyp | Einfamilienhaus |
|---|---|
| Etagenzahl | 3 |
| Wohnfläche ca. | 178 m2 |
| Nutzfläche | 245 m2 |
| Grundstücksfläche | 436 m2 |
| Bezugsfrei ab | Ab sofort bezugsfrei |
| Zimmer | 6 |
| Schlafzimmer | 4 |
| Badezimmer | 2 |
| Garage/Stellplatz | Garage |
| Anzahl Garage/Stellplatz | 2 |
Kosten
| Kaltmiete |
2.500 € |
|---|---|
| Nebenkosten | + 200 € |
| Heizkosten | keine Angabe |
| Gesamtmiete | 2.700 € |
Weiter mieten oder doch kaufen?
Wer in Miete wohnt, überweist dem Vermieter im Laufe der Jahre hohe Summen, die sich
auch in die eigenen vier Wände investieren lassen könnten.
Bausubstanz & Energieausweis
| Baujahr | 2025 |
|---|---|
| Objektzustand | Erstbezug |
| Qualität der Austattung | Gehoben |
| Heizungsart | Fußbodenheizung |
| Wesentliche Energieträger | Umweltwärme |
| Energieausweis | liegt vor |
| Energieausweistyp | Bedarfsausweis |
| Energieverbrauchskennwert | 15,8 kWh/(m²*a) |
| Energieeffizienzklasse | A+ |
15,8
kWh/(m²*a)
Energieeffizienzklasse A+
- A+
- A
- B
- C
- D
- E
- F
- G
- H
- 0
- 25
- 50
- 75
- 100
- 125
- 150
- 175
- 200
- 225
- >250
Beschreibung des Objekts
Ausstattung
- Wohnfläche: ca. 178 m²
- Grundstück: ca. 480 m²
- Große Fensterflächen
- 6 Zimmer –davon 3 Schlafzimmer und 1 Galerie im DG flexible Nutzung
- Moderne Bauweise, Erstbezug 2025
- Nachhaltige Haustechnik: Luftwärmepumpe
- Lichtdurchfluteter Wohn- und Essbereich mit Terrassenzugang
- Hochwertiger Vinyl-Designbelag & Fliesen aus Steingut/Feinsteinzeug
- Zwei stilvolle Badezimmer (2x mit Dusche & 1x mit zus. Wanne)
- Sonnenterrasse & Garten
- Balkon im Obergeschoss
- 1 Garage und 1 Stellplätze inkl.
Lage
- Bahnhof & Stadtzentrum: ca. 3,7km entfernt
- Ärzte & Klinikum: ca. 2-5km entfernt
- Einkaufsmöglichkeiten & Supermärkte: nur ca. 1-3km entfernt
- Kindergärten & Kitas: im Umkreis von ca. 1-2km
- Schulen (Grundschule, Mittelschule, Realschule, Gymnasium): ca. 1–2km entfernt, in 15–25Min. zu Fuß oder in unter 10Min. mit dem Rad erreichbar
- Campus Chiemgau (TH Rosenheim, Standort Traunstein): nahe dem Bahnhof, in ca. 8Min. mit dem Auto erreichbar
- Weitere Hochschulen: TH Rosenheim ca. 30km (20–30Min. mit dem Zug), Universität Salzburg ca. 35km (ca. 26Min. mit dem Zug).
- Freizeit & Erholung: Freibad, Sportvereine, Kletterhalle, Fitnessstudios innerhalb Traunstein vorhanden
- Alpen & Naherholung: Chiemgau, Wander- & Skigebiete wie Hochberg, Ruhpolding, Inzell mit dem Auto zwischen 5 - 30Minuten entfernt.
- Autobahn A8: nur ca. 5km entfernt
Sonstige Angaben
- Erstbezug, Haus ist bezugsfrei
- Inklusive Grundstück, Erschließung & Anschlussgebühren
- Außenanlagen im Rundum-sorglos-Paket enthalten
- Direkter Verkauf vom Bauträger – provisionsfrei
Grundriss
Grundriss
>
>
Adresse
83278 Traunstein
Interessante Orte
Preis- und Lageinformationen
Preistrend für Bestandsimmobilien in Traunstein