Diese modern gestaltete Doppelhaushälfte bietet auf drei Ebenen viel Platz für ein komfortables Familienleben. Die Immobilie liegt in einer angenehm ruhigen Wohngegend von Hacklberg und überzeugt durch eine durchgängige Lichtführung, klare Raumstrukturen und eine Gesamtwohnfläche von rund 158,5 m².
Erdgeschoss
Der weitläufige Wohn- und Essbereich mit integrierter Küche bildet das Herzstück der unteren Ebene. Durch die große Fensterfront öffnet sich der Raum direkt zur Terrasse und in den Garten – ein idealer Bereich für Erholung und gesellige Momente. Ergänzend befinden sich hier eine Speisekammer, ein Gäste-WC, ein Abstellraum sowie ein funktionaler Hauswirtschaftsraum.
Obergeschoss
Im ersten Obergeschoss stehen ein geräumiges Schlafzimmer mit angrenzender Ankleide, ein Kinderzimmer, ein modernes Badezimmer, ein separates WC und ein weiterer Hauswirtschaftsraum zur Verfügung. Ein zentraler Flur verbindet die Räume und sorgt für eine klare Struktur.
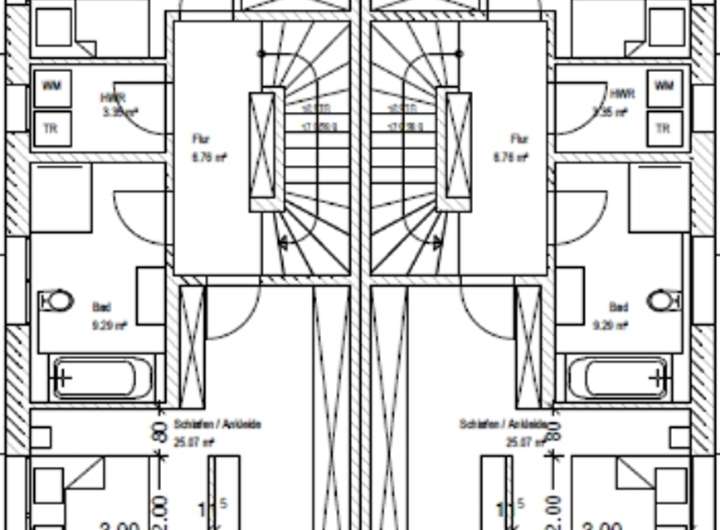
Dachgeschoss
Im ausgebauten Dachgeschoss eröffnet sich zusätzlicher Wohnraum: Zwei helle Zimmer eignen sich ideal als Kinderzimmer, Arbeitszimmer oder Gästeeinheit. Ein weiteres Badezimmer/WC sowie ein kleiner Flur komplettieren diese Etage.
Außenbereiche
Die sonnige Terrasse und der Garten bieten angenehme Rückzugsmöglichkeiten im Freien. Zwei Carportstellplätze gehören ebenfalls zum Mietumfang.
Eckdaten
– Wohnfläche: ca. 158,5 m²
– Räume: 6 (davon 4 Schlafzimmer, 2 Badezimmer + Gäste-WC)
– Zusätzliche Nutzflächen: Technik- und Abstellräume, Hauswirtschaftsräume
Mietkonditionen
Kaltmiete: 1.840 €
Nebenkosten: 100 €
Küchenmiete: 50 €
Warmmiete: 1.990 €
Carportstellplätze (2 Stück): 100 €
Warmmiete inkl. Stellplätze: 2.090 €
Hinweise
Die Nebenkosten enthalten keine ZAW-Gebühren (Abwasser/Abfall), keine Heizstromkosten und keine Internet- bzw. Telefongebühren. Diese Positionen werden vom Mieter direkt mit den jeweiligen Versorgern abgerechnet.
Anfragen über das Jobcenter können nicht berücksichtigt werden.
Infos
| Haustyp | Doppelhaushaelfte |
|---|---|
| Etagenzahl | 3 |
| Wohnfläche ca. | 155 m2 |
| Grundstücksfläche | 300 m2 |
| Bezugsfrei ab | 01.04.2026 |
| Zimmer | 5 |
| Schlafzimmer | 4 |
| Badezimmer | 3 |
| Garage/Stellplatz | Carport |
| Anzahl Garage/Stellplatz | 2 |
Kosten
| Kaltmiete |
1.840 € |
|---|---|
| Nebenkosten | keine Angabe |
| Heizkosten | keine Angabe |
| Gesamtmiete | 1.990 € (zzgl. Nebenkosten) |
| Kaution o. Genossenschaftsanteile | 5.520,00 |
Weiter mieten oder doch kaufen?
Wer in Miete wohnt, überweist dem Vermieter im Laufe der Jahre hohe Summen, die sich
auch in die eigenen vier Wände investieren lassen könnten.
Bausubstanz & Energieausweis
| Baujahr | 2025 |
|---|---|
| Objektzustand | Erstbezug |
| Qualität der Austattung | Gehoben |
| Heizungsart | Wärmepumpe |
| Energieausweis | liegt vor |
| Energieausweistyp | Bedarfsausweis |
| Energieverbrauchskennwert | 7,0 kWh/(m²*a) |
| Energieeffizienzklasse | A+ |
7,0
kWh/(m²*a)
Energieeffizienzklasse A+
- A+
- A
- B
- C
- D
- E
- F
- G
- H
- 0
- 25
- 50
- 75
- 100
- 125
- 150
- 175
- 200
- 225
- >250
Beschreibung des Objekts
Ausstattung
Die Doppelhaushälfte überzeugt durch eine gehobene Ausstattung und viele Details, die modernes Wohnen besonders angenehm machen. Zwei vollwertige Badezimmer sowie ein Gäste-WC, jeweils mit Fenster und hochwertigen Fliesen, sorgen für Komfort auf allen Etagen. Eine moderne Einbauküche mit sehr guter Ausstattung ist vorhanden und ist monatlich zu mieten. Elektrische Rollläden, eine Fußbodenheizung sowie Laminatböden in den Wohn- und Schlafräumen unterstreichen den hohen Wohnstandard.
Für Fahrzeuge stehen Carports mit zwei Stellplätzen zur Verfügung, sodass auch in dieser Hinsicht für hohen Komfort gesorgt ist.
Lage
Die Doppelhaushälfte liegt in Passau-Hacklberg, einem ruhigen und familienfreundlichen Wohngebiet. Einkaufsmöglichkeiten, Schulen, Kindergärten und Ärzte befinden sich in unmittelbarer Nähe. Die Anbindung ist sehr gut: Mit dem Auto oder Bus erreichen Sie die Passauer Innenstadt in wenigen Minuten, die Autobahn A3 Richtung Regensburg und Linz ist ebenfalls schnell erreichbar. Freizeit- und Erholungsmöglichkeiten wie Spazier- und Radwege entlang der Donau sowie Sport- und Kulturangebote in Passau runden die attraktive Lage ab.
Grundriss
EG Ries
>
>
OG Ries
>
>
DG Ries
>
>
Adresse
Ries 18, 94034 Passau
Interessante Orte
Preis- und Lageinformationen
Preistrend für Bestandsimmobilien in Hals