Dieses gepflegte Zweifamilienhaus mit einer Wohnfläche von ca. 146 m² verfügt über insgesamt vier Zimmer, die sich gleichmäßig auf die beiden vollständig abgeschlossenen Vollgeschosse verteilen. Die Immobilie befindet sich in angenehmer Wohnlage von Lampertheim und bietet vielseitige Nutzungsmöglichkeiten, etwa für Familien oder Mehrgenerationenwohnen.
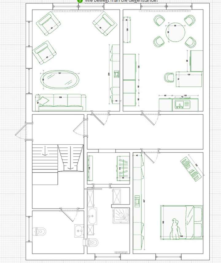
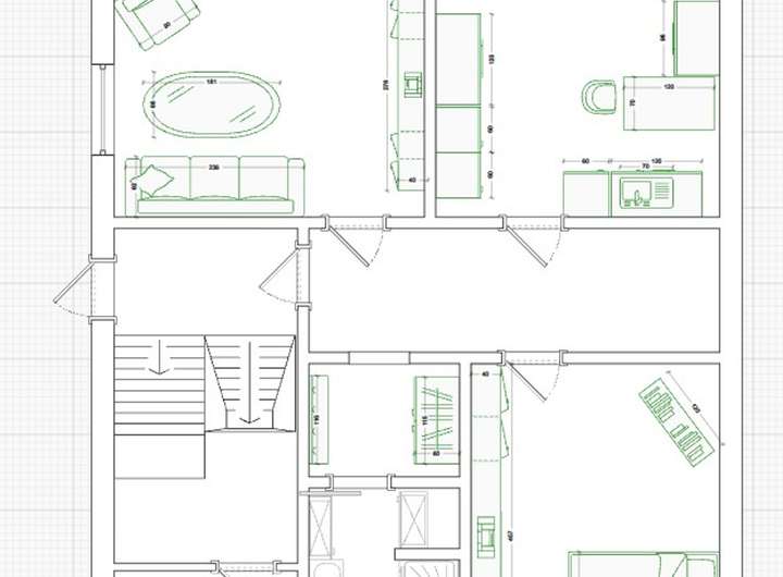
Die Erdgeschosswohnung überzeugt durch einen durchdachten Grundriss mit einem hellen Wohnzimmer, einem ruhigen Schlafzimmer, einer separaten Küche inklusive großzügiger Essecke sowie einem Badezimmer mit Duschkabine und einem zusätzlichen Gäste-WC. Die Raumaufteilung schafft eine angenehme Balance zwischen Rückzug und gemeinschaftlichem Wohnen.
Die Wohnung im Obergeschoss verfügt über die gleiche Anzahl an Räumen und den identischen Schnitt. Besonders familienfreundlich zeigt sich hier die flexible Nutzung des Wohnzimmers, das sich bei Bedarf in ein sehr großzügiges Kinderzimmer umwandeln lässt und damit zusätzliche Gestaltungsmöglichkeiten eröffnet.
Beide Wohneinheiten sind mit eigenen Küchen ausgestattet und bieten durch den identischen Aufbau eine klare, harmonische Struktur. Das Haus ist vollständig unterkellert und stellt reichlich Stauraum für Vorräte, Hobbys oder saisonale Gegenstände zur Verfügung.
Das Gebäude wurde über die Jahre regelmäßig instand gehalten und präsentiert sich in einem gepflegten Gesamtzustand. Ein besonderes Highlight ist der sehr große, liebevoll angelegte Garten mit Koi-Teich, der Ruhe und Erholung im Alltag bietet. Die angrenzende Terrasse lädt an warmen Sommertagen zum Grillen, Entspannen und geselligen Beisammensein mit Familie und Freunden ein. Ergänzend steht eine kleine Werkstatt zur Verfügung, die zusätzlichen Raum für handwerkliche Tätigkeiten oder kreative Hobbys bietet.
Zwei Garagen bieten komfortable Stellplätze für Ihre Fahrzeuge. Eine möblierte Anmietung ist möglich; alternativ können die Möbel vor Übergabe entfernt werden.
Haustierhaltung ist in diesem Objekt nicht gestattet.
Geräumiges Zweifamilienhaus mit 4 Zimmern, 2 Garagen und einem großen Garten in Lampertheim
68623 Lampertheim
Die vollständige Adresse der Immobilie erhalten Sie vom Anbieter.
Auf Karte anzeigen
Die vollständige Adresse der Immobilie erhalten Sie vom Anbieter.
Infos
| Haustyp | Mehrfamilienhaus |
|---|---|
| Etagenzahl | 2 |
| Wohnfläche ca. | 146 m2 |
| Nutzfläche | 17 m2 |
| Grundstücksfläche | 652 m2 |
| Zimmer | 4 |
| Schlafzimmer | 2 |
| Badezimmer | 2 |
| Garage/Stellplatz | Garage |
| Anzahl Garage/Stellplatz | 4 |
Kosten
| Kaltmiete |
1.890 € |
|---|---|
| Nebenkosten | + 100 € |
| Heizkosten | + 150 € |
| Gesamtmiete | 2.140 € |
| Kaution o. Genossenschaftsanteile | 5.670,00 |
Weiter mieten oder doch kaufen?
Wer in Miete wohnt, überweist dem Vermieter im Laufe der Jahre hohe Summen, die sich
auch in die eigenen vier Wände investieren lassen könnten.
Bausubstanz & Energieausweis
| Baujahr | 1958 |
|---|---|
| Heizungsart | Zentralheizung |
| Wesentliche Energieträger | Öl |
| Energieausweis | liegt vor |
| Energieausweistyp | Bedarfsausweis |
| Energieverbrauchskennwert | 299,8 kWh/(m²*a) |
| Energieeffizienzklasse | H |
299,8
kWh/(m²*a)
Energieeffizienzklasse H
- A+
- A
- B
- C
- D
- E
- F
- G
- H
- 0
- 25
- 50
- 75
- 100
- 125
- 150
- 175
- 200
- 225
- >250
Beschreibung des Objekts
Ausstattung
- sehr gepflegter, liebevoll angelegter Garten
- zwei Garagen
- eine Hobbywerkstatt
- zwei große Küchen - eine je Etage - mit Esszimmer und Einbauküchen inklusive
Lage
Lampertheim liegt im südhessischen Kreis Bergstraße und überzeugt durch eine gut ausgebaute Infrastruktur. Einkaufsmöglichkeiten für den täglichen Bedarf, Ärzte, Schulen und Kindergärten sind bequem erreichbar.
Die Anbindung an den öffentlichen Nahverkehr ist durch regionale Buslinien gewährleistet und ermöglicht eine gute Erreichbarkeit der umliegenden Städte und Gemeinden. Zahlreiche Grünflächen sowie die Nähe zum Rhein bieten attraktive Möglichkeiten für Spaziergänge, Radtouren und weitere Freizeitaktivitäten im Freien.
Sonstige Angaben
Angaben gemäß § 5 TMG
Impressum:
IVS Immobilienverwaltung Südhessen GmbH
Bad Nauheimer Str. 4
64289 Darmstadt
Handelsregister: HRB 107613
Registergericht: Darmstadt
Vertreten durch den Geschäftsführer:
Yasar Sentürk
Kontakt
Telefon: 06151-73475988
Telefax: 06151-73475150
E-Mail: info@ivs-verwaltung.de
Umsatzsteuer-ID
Umsatzsteuer-Identifikationsnummer gemäß § 27 a Umsatzsteuergesetz:
DE453070021
Gewerbeanmeldung
Die Gewerbeerlaubnis nach § 34c GewO wurde am 15.05.2025 von folgender Stelle erteilt: Bürger- und Ordnungsamt Darmstadt.
Aufsichtsbehörde
Bürger- und Ordnungsamt Darmstadt
Abt. Gaststätten- und Gewerbewesen
Luisenplatz 5
64283 Darmstadt
https://digitales-rathaus.darmstadt.de/kategorien/kontaktpersonen/buerger-und-ordnungsamt-abt-gaststaetten-und-gewerbewesen
Angaben zur Berufshaftpflichtversicherung
Name und Sitz des Versicherers:
ERGO Versicherung AG
40198 Düsseldorf
Geltungsraum der Versicherung:
Deutschland
Grundriss
Skizze Grundriss.jpg
>
>
Adresse
68623 Lampertheim
Interessante Orte
Preis- und Lageinformationen
Preistrend für Bestandsimmobilien in Lampertheim