Nur wenige hundert Meter hinter der Einfahrt zum Ortsteil
Oberrottweil der Gemeinde Vogtsburg befindet sich das bis
dato zur Tierhaltung genutzte Wiesengrundstück angrenzend an
den sanft plätschernden Krottenbach, wo nun dieses Neubau-
Doppelhaus realisiert wird.
Die Doppelhaushälfte eignet sich ideal für junge Familien, die
sehnsüchtig nach einem bezahlbaren Eigenheim in dem
renommierten Winzerort am schönen Kaiserstuhl Ausschau
halten. Die entstehenden Grundstücke haben eine Größe von
circa 200 qm und bieten damit neben dem Baukörper noch
genügend Platz für eine Terrasse mit Garten, was zum Verweilen
mit Familie und Freunden sowie Spielen für die Kinder einlädt.
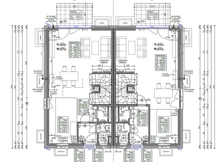
Das Carport bietet Platz für ein Fahrzeug, auch Fahrräder und die Mülltonnen können hier untergestellt werden. Über die breite Diele, welche gleichzeitig als Garderobe dient, gelangen Sie ins Innere Ihrer eigenen vier Wände. Rechter Hand befindet sich gleich das Gäste-WC und ein Abstellraum für Haushaltsgerätschaften.
Durch eine Tür gehend gelangen Sie direkt ins Herzstück Ihres Zuhauses: auf über 31 qm Wohnfläche erstreckt sich der gigantische Wohn- und Essbereich, mit einer gemütlichen Helligkeit dank der bodentiefen Fensterfront. Gleich um die Ecke befindet sich die offen gestaltete Küche in U-Form. Dank deren Größe gibt es keine Ausreden mehr – hier kann die ganze Familie beim Kochen mit anpacken.
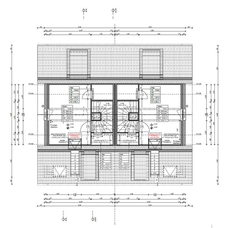
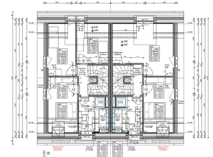
Über die Treppe gelangen Sie ins Dachgeschoss. Dort finden Sie drei ähnlich (9 qm - 11,5 qm) große Schlafzimmer vor. Das großzügige Raumangebot wird durch die Verwendung ebenerdiger Gauben gewährleistet. Die Zimmer sind alle über den breiten Flur zugänglich, ob die Nutzung durch die Kinder, als Büro oder Elternschlafzimmer erfolgt, obliegt ihnen.
Für letztere hält der ausgebaute Dachspitz allerdings noch eine besondere Überraschung parat. Zusätzlich befindet sich auf dieser Etage noch das Badezimmer mit WC, Waschbecken, ebenerdiger Dusche und sogar einer Badewanne, wo es sich abends entspannen lässt, sollte der Tag mal wieder etwas stressiger verlaufen sein.
Ein großes Fenster sorgt für ausreichend Tageslicht und Lüftungsmöglichkeiten. Über eine weitere Treppe erreichen Sie den bereits angekündigten ausgebauten Dachspitz. Auf über 15 qm Wohnfläche kann alternativ das Elternschlafzimmer eingerichtet werden, die Verwendung obliegt am Ende ganz Ihnen.
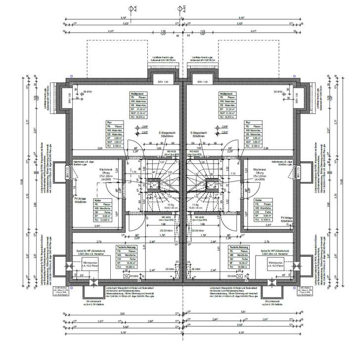
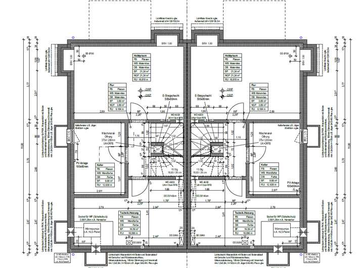
Abschließender Hinweis für Sie: Die Doppelhaushälfte ist vollständig unterkellert. Neben dem Heizungsraum (Wärmepumpe unterstützt durch eine PV-Anlage auf dem Dach) finden Sie hier Anschlüsse für Waschmaschine und Trockner sowie einen separaten Kellerraum beispielsweise für Gartengerätschaften vor. Ein weiteres Zimmer mit über 20 qm ist beheizt und verfügt über ausreichend Lichteinfall, sodass es ebenso als Zimmer und mit zur Wohnfläche zählt. Es eignet sich ideal als Hobbyraum.
Oberrotweil Erstbezug 2026: Neubau-Doppelhaushälfte für junge Familie mit pflegeleichtem Garten
Bahnhofstraße 36,
79235 Vogtsburg im Kaiserstuhl
Auf Karte anzeigen
Infos
| Haustyp | Doppelhaushaelfte |
|---|---|
| Etagenzahl | 3 |
| Wohnfläche ca. | 131 m2 |
| Grundstücksfläche | 200 m2 |
| Bezugsfrei ab | 31.12.2026 |
| Zimmer | 6 |
| Schlafzimmer | 5 |
| Badezimmer | 1 |
| Garage/Stellplatz | Carport |
| Anzahl Garage/Stellplatz | 1 |
Kosten
| Kaltmiete |
2.000 € |
|---|---|
| Nebenkosten | keine Angabe |
| Heizkosten | keine Angabe |
| Gesamtmiete | 2.000 € |
| Miete für Garage/Stellplatz | 0 € |
Weiter mieten oder doch kaufen?
Wer in Miete wohnt, überweist dem Vermieter im Laufe der Jahre hohe Summen, die sich
auch in die eigenen vier Wände investieren lassen könnten.
Bausubstanz & Energieausweis
| Baujahr | 2026 |
|---|---|
| Objektzustand | Erstbezug |
| Qualität der Austattung | Gehoben |
| Heizungsart | Wärmepumpe |
| Wesentliche Energieträger | Strom |
| Energieausweis | laut Gesetz nicht erforderlich |
Beschreibung des Objekts
Ausstattung
-Nachhaltige Stahl-Holz-Bauweise im energieeffizienten KfW 40-
Standard
-Fassade als Wärmedämmverbundsystem versehen mit Kalk-
Zementputz
-Fußbodenheizung in allen Räumen (Luft-Wasser-Wärmepumpe)
-Große Kunststofffenster (3x verglast) mit elektrischen
Aluminiumrolladen
-Zentrales Lüftungssystem in allen Räumen
-Modern gestaltetes Wohnkonzept mit offener Küche
-Bodenbelag: Parkettboden im Wohn- und Schlafbereich und
60x60 cm Fliesen im Bad
-Wandbelag: Malervlies im Wohn- und Schlafbereich und 60x30
cm Fliesen im Bad
-Zeitlose Badgestaltung mit ebenerdiger Dusche und
Tageslichtfenster
-Sanitärgegenstände / Armaturen der namhaften Firmen Duravit
und Hansgrohe
Lage
Oberrotweil ist ein besonders bei Familien beliebter Ortsteil, direkt angrenzend an das Zentrum der Gemeinde Vogtsburg. Mit
direktem Ausblick auf die für den Kaiserstuhl typischen Reben
gibt es in der Nachbarschaft zahlreiche Weingüter und Gasthäuser mit renommierten Gastronomien.
Direkt in der Natur gelegen, lässt das Freizeitangebot keine Wünsche offen. Egal ob Wanderungen oder Radtouren, Verweilen auf Spielplätzen oder
im örtlichen Schwimmbad, hier ist für jeden etwas dabei. Ob Musik, Sport oder Narren, hier floriert das Vereinsleben.
Dem übergeordnet verfügt die Ortschaft ebenso über eine hervorragende Infrastruktur. Vom Neubauprojekt fußläufig
erreichbar ist das Ärztezentrum, der Supermarkt sowie Banken
und der kleine örtliche Busbahnhof.
Sowohl Kindergarten als auch Grundschule sind in der Gemeinde
vertreten, weiterführende Schulen gibt es dann in den umliegenden Kaiserstuhl-Gemeinden. Die nächste Großstadt ist Freiburg im Breisgau mit einer
Entfernung von circa 20 km.
Grundriss
Untergeschoss
>
>
Erdgeschoss
>
>
Dachgeschoss
>
>
Dachspitz
>
>
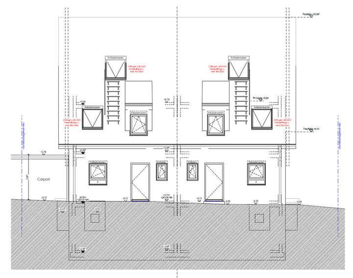
Hauseingangsansicht
>
>
Gartenansicht
>
>
Seitenansicht
>
>
Adresse
Bahnhofstraße 36, 79235 Vogtsburg im Kaiserstuhl
Interessante Orte
Preis- und Lageinformationen
Preistrend für Bestandsimmobilien in Vogtsburg im Kaiserstuhl