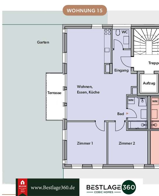
Diese zeitgemäß ausgestattete Wohnung in citynaher Lage von Offenbach überzeugt durch ein hochwertiges Interior und ein harmonisches, modernes Designkonzept. Großflächige bodentiefe Fenster (2,60 m Höhe) sowie eine Deckenhöhe von 2,78 m schaffen eine helle, offene Wohnatmosphäre. Maßgefertigte Türen aus Schreinerhand (2,26 m), edles Vollholzparkett und eine individuell regulierbare Fußbodenheizung unterstreichen den gehobenen Wohnkomfort.
Die hochwertige Nolte-Einbauküche mit Bosch-Geräten und das elegant gestaltete Bad – ausgestattet mit Wanne, ebenerdiger Dusche und Philippe-Starck-Armaturen – verbinden Funktionalität mit stilvollem Ambiente. Die großzügige Terrasse mit angrenzendem Gartenanteil erweitert den Wohnbereich um einen entspannenden Rückzugsort im Freien.
Weitere Pluspunkte: elektrische Metallrollläden, ein Aufzug im Haus, ein separater Kellerraum, ein Fahrradkeller sowie ein Tiefgaragenstellplatz (zzgl. EUR 150,00).
Ein ideales Zuhause für alle, die urbanes Stadtleben mit modernen Komfort- und Ausstattungsmerkmalen auf gehobenem Niveau kombinieren möchten.
Premium-Design trifft Citylage – Hochwertige 3-Zimmer-Wohnung mit Garten
63067 Offenbach am Main
Die vollständige Adresse der Immobilie erhalten Sie vom Anbieter.
Auf Karte anzeigen
Die vollständige Adresse der Immobilie erhalten Sie vom Anbieter.
Infos
| Wohnungskategorie | Etagenwohnung |
|---|---|
| Wohnfläche ca. | 80 m2 |
| Bezugsfrei ab | ab sofort |
| Zimmer | 3 |
| Schlafzimmer | 2 |
| Badezimmer | 1 |
| Garage/Stellplatz | Tiefgarage |
| Anzahl Garage/Stellplatz | 1 |
Kosten
| Kaltmiete |
1.620 € |
|---|---|
| Nebenkosten | + 258 € |
| Heizkosten | in Nebenkosten enthalten |
| Gesamtmiete | 1.878 € |
| Miete für Garage/Stellplatz | 150 € |
| Kaution o. Genossenschaftsanteile | 3 Nettomieten |
Weiter mieten oder doch kaufen?
Wer in Miete wohnt, überweist dem Vermieter im Laufe der Jahre hohe Summen, die sich
auch in die eigenen vier Wände investieren lassen könnten.
Bausubstanz & Energieausweis
| Baujahr | unbekannt |
|---|---|
| Objektzustand | Neuwertig |
| Qualität der Austattung | Luxus |
| Heizungsart | Fußbodenheizung |
Beschreibung des Objekts
Ausstattung
Extras:
• Citynahe Wohnlage in Offenbach
• Luxuriöse Ausstattung
• Bodentiefe Fenster (einzeln abschließbar)
• Fensterhöhe 2,60 Meter
• Raumhöhe 2,78 Meter
• Türen 2,26 Meter hoch (Schreinerarbeit)
• Vollholzparkett
• Fußbodenheizung (jedes Zimmer einzeln regulierbar)
• Einbauküche von Nolte mit hochwertigen Bosch Geräten
• Badewanne und ebenerdige Dusche mit hochwertigen Armaturen von Philipp Starck
• Terrasse
• Garten
• Elektrische Metall Rollläden
• Aufzug im Haus
• Separater Kellerraum + Fahrradkeller
• Tiefgaragenstellplatz (zzgl. EURO 150,00)
u.v.a.m.
Lage
Offenbach am Main liegt südlich des Mains und grenzt unmittelbar an die Stadt Frankfurt am Main. Die Stadt ist Teil des Ballungsgebiets Rhein-Main und profitiert von ihrer Nähe zu Frankfurt, einem der wichtigsten Wirtschaftszentren in Deutschland.
Die Stadt bietet eine breite Palette von kulturellen Angeboten, darunter Theater, Museen und Veranstaltungen. Das Isenburger Schloss und der Büsingpark sind beliebte Sehenswürdigkeiten in Offenbach.
Offenbach besitzt einen eigenen Hauptbahnhof und ist über Straßen und Autobahnen gut erreichbar. Der Frankfurter Flughafen, einer der größten Flughäfen Europas, ist nur eine kurze Fahrt entfernt.
Sonstige Angaben
Liebe Eigentümer,
für unsere anspruchsvollen Interessenten sind wir ständig auf der Suche nach exklusiven Wohnungen und Häusern. Sollten Sie sich mit dem Gedanken tragen Ihre Immobilie zu verkaufen oder zu vermieten, freuen wir uns von Ihnen zu hören.
Ihr Ansprechpartner: Edin Cobic
Tel: +49 (0)69/ 788 088 20
Mobil: +49 (0)173/ 98 13 187
E.Cobic@Bestlage360.de
www.Bestlage360.de
Weitere Dokumente
Beste PerformanceWas können wir für Sie tun
Weitere Angebote für Sie
Grundriss
Unser Service für Sie
>
>
Instagram
>
>
Wir suchen 1
>
>
Wir für Sie
>
>
Grundriss
>
>
Adresse
63067 Offenbach am Main
Interessante Orte
Preis- und Lageinformationen
Preistrend für Bestandsimmobilien in Stadtmitte