Das Grundstück ist für den Bau eines Schwabenhaus reserviert, das gemeinsam mit Ihnen geplant wird. Im Preis enthalten sind das Grundstück sowie das Haus in der beschriebenen Ausbaustufe.
Erfahren Sie in Ihrem persönlichen Beratungstermin alles über die mögliche Bebauung sowie zu den aktuellen Förderungen.
Traumhafte Südhanglage in Hünfeld – Ihr Zuhause per Mietkauf
36088 Hünfeld
Die vollständige Adresse der Immobilie erhalten Sie vom Anbieter.
Auf Karte anzeigen
Die vollständige Adresse der Immobilie erhalten Sie vom Anbieter.
Infos
| Haustyp | Einfamilienhaus |
|---|---|
| Wohnfläche ca. | 135 m2 |
| Nutzfläche | 0 m2 |
| Grundstücksfläche | 466 m2 |
| Zimmer | 4 |
| Schlafzimmer | 3 |
| Badezimmer | 1 |
| Anzahl Garage/Stellplatz | 1 |
Kosten
| Kaltmiete |
1.886 € |
|---|---|
| Nebenkosten | keine Angabe |
| Heizkosten | keine Angabe |
| Gesamtmiete | 1.886 € |
Weiter mieten oder doch kaufen?
Wer in Miete wohnt, überweist dem Vermieter im Laufe der Jahre hohe Summen, die sich
auch in die eigenen vier Wände investieren lassen könnten.
Bausubstanz & Energieausweis
| Baujahr | 2026 |
|---|---|
| Qualität der Austattung | Gehoben |
| Heizungsart | Wärmepumpe |
Beschreibung des Objekts
Ausstattung
Alle Schwabenhäuser werden hochwertig ausgestattet.
Unsere Antwort auf hohe Energiekosten lautet *Energie verwenden statt verschwenden* . Wählen Sie Ihre intelligente Kombination aus Dämm-Paket, Heizungs-Paket und Technologie-Paket.
Diesem Angebot liegt die beliebte Schwabenhaus-Ausbaustufe FAST VOLLENDET zugrunde. Diese kann selbstverständlich noch entsprechend Ihrer geplanten Eigenleistungen angepasst werden.
Weitere Informationen zu unseren Ausbaustufen erhalten Sie hier: https://www.schwabenhaus.de/ausbaustufen/
Lage
Das Grundstück liegt in einem ruhigen und gewachsenen Wohngebiet von Hünfeld und verbindet hohe Lebensqualität mit optimaler Anbindung. Eingebettet in eine familienfreundliche Umgebung genießen Sie hier nicht nur eine sonnige Südhanglage mit herrlichem Ausblick auf die Stadt, sondern auch die Vorzüge einer ausgezeichneten Infrastruktur.
Alle Einrichtungen des täglichen Bedarfs sind bequem erreichbar: Ein Supermarkt befindet sich nur ca. 230 Meter entfernt. Für Familien besonders attraktiv: Eine Grundschule liegt in fußläufiger Entfernung (ca. 300 Meter) und auch ein Kindergarten ist nur etwa 1,1 Kilometer entfernt.
Die Anbindung an den öffentlichen Nahverkehr ist durch eine Bushaltestelle in rund 750 Metern gegeben. Zudem erreichen Sie die Autobahn in weniger als 6 Kilometern, wodurch eine schnelle Verbindung nach Fulda, Bad Hersfeld oder weiterführend in die Region gewährleistet ist.
Damit bietet die Lage eine perfekte Balance zwischen zentraler Erreichbarkeit, naturnaher Ruhe und hoher Wohnqualität – ein idealer Ausgangspunkt für Familien, Pendler und alle, die ein harmonisches Umfeld mit besten Zukunftsperspektiven suchen.
Sonstige Angaben
Die Finanzierung Ihres Traumhauses ist ohne Eigenkapital möglich, bestehende Schulden sind kein Hindernis – Bonität vorausgesetzt.
Rufen Sie noch heute an und fragen Sie nach unserem Miet-Kauf-Modell.
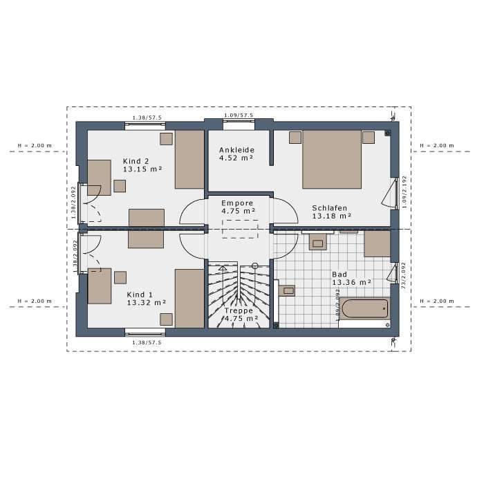
Die dargestellten Bilder und Grundrisse sind Beispiele und können Sonderausstattungen enthalten, die nicht im Preis enthalten sind. Die Kaufnebenkosten sind nicht im Preis enthalten. Alle Angaben ohne Gewähr.
Bitte haben Sie Verständnis, dass nur vollständig ausgefüllte Anfragen bearbeitet werden können.
Anbauteile, Carport, Garage und Keller können Extras sein, die als Sonderausstattung angeboten werden. Abbildungen, Grundrisse und Flächenangaben sind beispielhaft und können Extras zeigen. Flächenangaben nach DIN 277.
Profitieren Sie jetzt von der Schwabenhaus Online Beratung und verwirklichen Sie Ihr Traumhaus https://www.schwabenhaus.de/anmeldung-hausbau-beratung-online/
Grundriss
Erdgeschoss
>
>
Obergeschoss
>
>
Adresse
36088 Hünfeld
Interessante Orte
Preis- und Lageinformationen
Preistrend für Bestandsimmobilien in Hünfeld