*** Achtung: Anfragen bitte nur schriftlich, keine Anrufe! ***
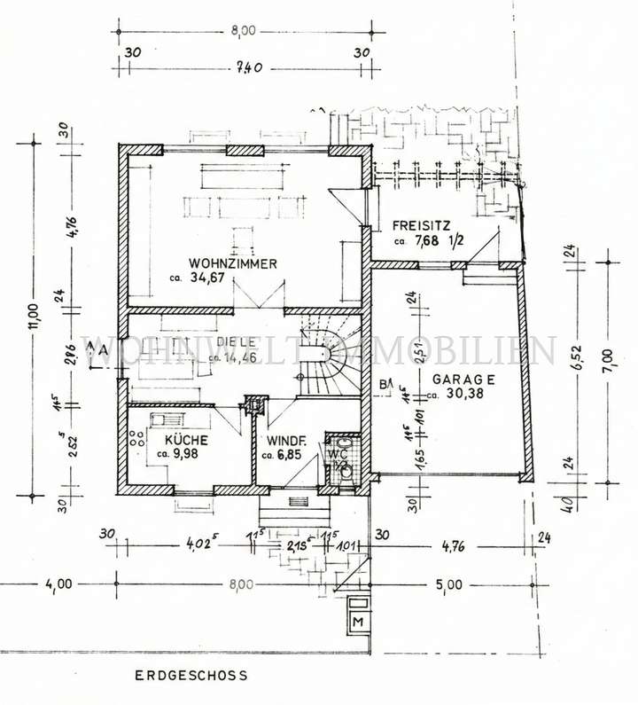
Dieses gepflegte Einfamilienhaus aus dem Jahr 1983 bietet Ihnen ca. 143,82 m² Wohnfläche auf einem großzügigen Grundstück von ca. 419 m² und ist ab sofort verfügbar. Mit insgesamt 5 Zimmern, darunter 1 geräumiges Schlafzimmer, 3 Kinderzimmer und einem Wohnzimmer bietet dieses Haus ausreichend Platz für eine Familie. Den Balkon erreichen Sie vom Schlaf- und vom Kinderzimmer. Die großzügige Diele (ca. 14,46 m²), die angrenzend an die Küche ist, kann als Esszimmer genutzt werden. Das lichtdurchflutete Wohnzimmer lädt zum Entspannen ein, von hier aus erreichen Sie den angrenzenden überdachten Freisitz mit ca. 15 m², perfekt für gesellige Abende oder entspannte Tage im großzügigen Garten. Das Haus bietet ein gut ausgestattetes Badezimmer, das sowohl mit Dusche als auch Badewanne versehen ist. Ein zusätzliches Gäste-WC mit Dusche bietet weiteren Komfort. Im Untergeschoss erwartet Sie ein großzügiger Hobbyraum mit ca. 35,22 m², sowie zwei weitere Kellerräume und ein praktischer Wasch-/Heizungsraum. Nutzen Sie die umfangreichen Lagerflächen und gestalten Sie den Hobbyraum nach Ihren Wünschen. Die Einzelgarage auf dem Grundstück bietet sicheren Platz für Ihr Fahrzeug und zusätzliche Abstellmöglichkeiten.
Großzügiges Einfamilienhaus in Karlsfeld/Rotschwaige
85757 Karlsfeld
Die vollständige Adresse der Immobilie erhalten Sie vom Anbieter.
Auf Karte anzeigen
Die vollständige Adresse der Immobilie erhalten Sie vom Anbieter.
Infos
| Haustyp | Einfamilienhaus |
|---|---|
| Wohnfläche ca. | 140 m2 |
| Nutzfläche | 69,85 m2 |
| Grundstücksfläche | 419 m2 |
| Bezugsfrei ab | ab sofort |
| Zimmer | 5 |
| Schlafzimmer | 4 |
| Badezimmer | 1 |
| Haustiere | Nach Vereinbarung |
| Garage/Stellplatz | Garage |
| Anzahl Garage/Stellplatz | 1 |
Kosten
| Kaltmiete |
2.500 € |
|---|---|
| Nebenkosten | + 150 € |
| Heizkosten | keine Angabe |
| Gesamtmiete | 2.650 € |
| Kaution o. Genossenschaftsanteile | 2 MM |
Weiter mieten oder doch kaufen?
Wer in Miete wohnt, überweist dem Vermieter im Laufe der Jahre hohe Summen, die sich
auch in die eigenen vier Wände investieren lassen könnten.
Bausubstanz & Energieausweis
| Baujahr | 1983 |
|---|---|
| Objektzustand | Gepflegt |
| Qualität der Austattung | Normal |
| Heizungsart | Gas-Heizung |
| Wesentliche Energieträger | Gas |
| Energieausweis | liegt vor |
| Energieausweistyp | Verbrauchsausweis |
| Energieverbrauchskennwert | 138,0 kWh/(m²*a) |
| Energieeffizienzklasse | E |
138,0
kWh/(m²*a)
Energieeffizienzklasse E
- A+
- A
- B
- C
- D
- E
- F
- G
- H
- 0
- 25
- 50
- 75
- 100
- 125
- 150
- 175
- 200
- 225
- >250
Beschreibung des Objekts
Ausstattung
- Wohn- und Schlafräume sind mit Parkett ausgelegt
- die Küche, Diele und der Windfang sind gefliest
- das Gäste-WC verfügt über eine Dusche
- das Badezimmer ist mit einer Dusche und einer Wanne ausgestattet
- Hobbyraum (ca. 35,22 m²), 2 Kellerräume & 1 Heizungs-/Waschraum
- überdachte Terrasse (ca. 15 m²) und Balkon (Süd)
- 1 Einzelgarage
Lage
Das Einfamilienhaus befindet sich in der charmanten Gemeinde Karlsfeld, genauer gesagt im begehrten Stadtteil Rothschwaige. Diese Region ist bekannt für ihre harmonische Mischung aus ländlichem Flair und urbanem Komfort. Das Umfeld zeichnet sich durch eine gehobene Nachbarschaft mit gepflegten Gärten und ruhigen Straßen aus, die ideal für Familien sind. Karlsfeld genießt eine hervorragende Anbindung an die umliegenden Städte und bietet eine Vielzahl von Freizeitmöglichkeiten sowie eine gut ausgebaute Infrastruktur. Einkaufsmöglichkeiten, Schulen und Kindergärten sind bequem erreichbar. Zudem locken die grünen Naherholungsgebiete, darunter Seen und Parks, mit zahlreichen Aktivitäten im Freien. Trotz der beschaulichen Umgebung müssen Sie auf die Annehmlichkeiten des städtischen Lebens nicht verzichten, da das pulsierende München nur eine kurze Autofahrt entfernt liegt.
Sonstige Angaben
Telefonische Anfragen werden nicht angenommen, Anfragen bitte nur schriftlich.
Grundriss
Erdgeschoss
>
>
Obergeschoss
>
>
Kellergeschoss
>
>
Adresse
85757 Karlsfeld
Interessante Orte
Preis- und Lageinformationen
Preistrend für Bestandsimmobilien in Karlsfeld