Hinweis: Es werden alle drei Reihenhäuser vermietet.
Das moderne Reihenhaus befindet sich in einer begehrten Wohnlage nur wenige Gehminuten von der Reit- und Poloanlage Falkensee-Finkenkrug entfernt. Es wurde im 2025 in moderner Architektur und grundsolider Massivbauweise errichtet.
Die Anlage besteht aus zwei Reihenend- und einem Reihenmittelhaus, die sich jeweils aufteilen in Erdgeschoss, Obergeschoss und Dachgeschoss.
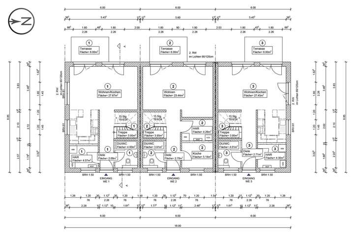
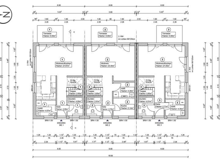
Im Erdgeschoss befinden sich ein Wohn- und Esszimmer mit Zugang zur Westterrasse, eine Küche mit hochwertiger Einbauküche (in den Endhäusern als offene Küche), ein Gäste-Badezimmer mit Dusche, ein Hausanschlussraum mit der Haustechnik und Waschmaschinenstellplatz sowie eine Hauseingangsdiele. In der Diele führt eine Treppenkonstruktion aus Stahl mit Massivholzstufen in das Obergeschoss. Die Wohnfläche im Erdgeschoss beträgt inklusive 6 m² Terrassenanteil ca. 49 m².
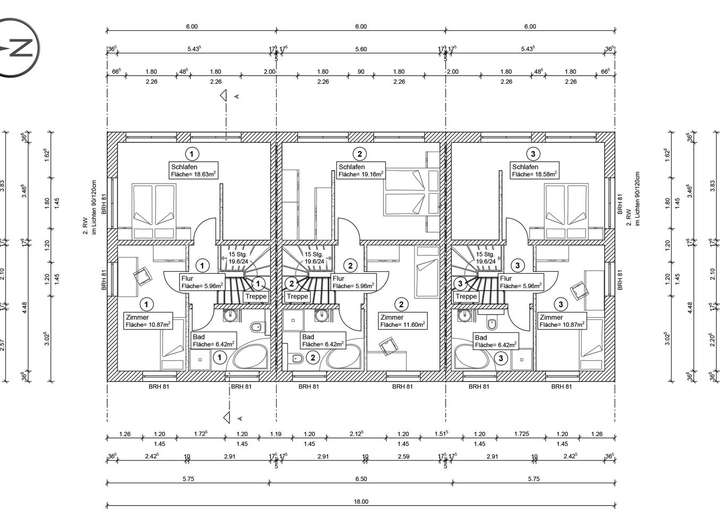
Im Obergeschoss befinden sich zwei helle Zimmer (teilweise mit bodentiefen Fenstern), ein Badezimmer mit Badewanne und bodengleicher Dusche sowie ein Flur. Im Flur führt eine Treppenkonstruktion aus Stahl mit Massivholzstufen in das Dachgeschoss. Die Wohnfläche im Obergeschoss beträgt ca. 42 m².
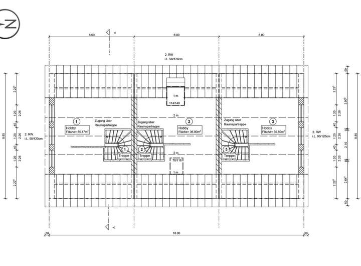
Im Dachgeschoss befindet sich ein Studiozimmer (mit bodentiefen Fenstern in den Endhäusern). Die Wohnfläche im Dachgeschoss beträgt ca. 37 m².
Auf dem sonnigen Gartengrundstück befinden sich für jede Wohneinheit befestigte Terrassen, zwei Pkw-Stellplätze mit Vorbereitung einer Wallbox zur Aufladung von Elektrofahrzeugen und eine schön gestaltete Gartenanlage mit vollständiger Einfriedung und befestigten Wegen.
Die monatliche Miete setzt sich folgendermaßen zusammen:
Nettokaltmiete: 2.150,00 €
Betriebskosten: 185,00 € (exklusive Heizung und Warmwasser)
Hinweis: Sämtliche Versorgungsverträge (Heizung, Strom, Internet und TV) werden vom Mieter direkt mit dem Versorger abgeschlossen.
Modernes Reihenend- oder Mittelhaus im Erstbezug in Falkensee-Finkenkrug
14612 Falkensee
Die vollständige Adresse der Immobilie erhalten Sie vom Anbieter.
Auf Karte anzeigen
Die vollständige Adresse der Immobilie erhalten Sie vom Anbieter.
Infos
| Haustyp | Reihenmittelhaus |
|---|---|
| Wohnfläche ca. | 109 m2 |
| Grundstücksfläche | 75 m2 |
| Zimmer | 4 |
| Schlafzimmer | 3 |
| Badezimmer | 2 |
| Garage/Stellplatz | Außenstellplatz |
| Anzahl Garage/Stellplatz | 2 |
Kosten
| Kaltmiete |
2.150 € |
|---|---|
| Nebenkosten | + 185 € |
| Heizkosten | keine Angabe |
| Gesamtmiete | 2.335 € (zzgl. Heizkosten) |
| Kaution o. Genossenschaftsanteile | 6.450 € |
Weiter mieten oder doch kaufen?
Wer in Miete wohnt, überweist dem Vermieter im Laufe der Jahre hohe Summen, die sich
auch in die eigenen vier Wände investieren lassen könnten.
Bausubstanz & Energieausweis
| Baujahr | 2025 |
|---|---|
| Objektzustand | Erstbezug |
| Qualität der Austattung | Gehoben |
| Heizungsart | Fußbodenheizung |
| Energieausweis | liegt vor |
| Energieausweistyp | Bedarfsausweis |
| Energieverbrauchskennwert | 21,8 kWh/(m²*a) |
| Energieeffizienzklasse | A+ |
21,8
kWh/(m²*a)
Energieeffizienzklasse A+
- A+
- A
- B
- C
- D
- E
- F
- G
- H
- 0
- 25
- 50
- 75
- 100
- 125
- 150
- 175
- 200
- 225
- >250
Beschreibung des Objekts
Ausstattung
- hochwertige Massivbauweise mit Porenbeton und Kalksandstein
- moderne Architektur Baujahr 2025 als Erstbezug
- bezugsfertige Übergabe inklusive Außenanlagen und Gartengestaltung
- Hauseingangstür mit Dreifachverriegelung
- Fenster mit Dreifachverglasung
- elektrische Alu-Rollläden an allen Fenstern (außer Dachflächenfenster)
- Innenfensterbänke aus Kunst- bzw. Naturstein
- Wohn- und Essbereich mit Zugang zur großen Terrasse
- Fußbodenbeläge aus Eichenparkett, Fliesen und Feinsteinzeug
- Küche mit moderner und hochwertiger Einbauküche
- Gäste-Bad im Erdgeschoss mit bodengleicher Dusche
- Badezimmer im Obergeschoss mit Badewanne und bodengleicher Dusche
- Geschosstreppe als lackierte Stahlkonstruktion mit Massivholzstufen
- Sichtschutz zum Nachbarn auf der Gartenterrasse
- Luft/Wasser-Wärmepumpe mit Brauchwasserspeicher von der Firma Bosch
- Fußbodenheizung in allen Geschossen außer Hauswirtschaftsraum
- dezentrale Wohnungslüftung mit Wärmerückgewinnung
- Außenanlagen mit befestigten Plätzen und Wegen sowie Rasenflächen
- zwei PKW-Stellplätze je Wohneinheit mit Vorbereitung für eine Wallbox
- Trinkwasserenthärtungsanlage
- Dachkasten mit indirekter Beleuchtung
- Video-Gegensprechanlage in jeder Wohneinheit
- High-Speed-Internet über Glasfaseranschluss und SAT-TV im Haus
- Straße befestigt und asphaltiert
- elektrisches Einfahrtstor
- voll erschlossen, Straße befestigt und asphaltiert
Lage
Falkensee ist eine sehr beliebte und familienfreundliche Stadt am westlichen Berliner Stadtrand, welche in eine tolle Naturlandschaft eingebettet ist und zu ausgedehnten Spaziergängen und abwechslungsreichen Freizeitaktivitäten an frischer Luft einlädt.
Falkensee gehörte im Jahr 2017 zu den am schnellsten wachsenden Städten Deutschlands. Und nicht ohne Grund: In den letzten Jahren wurde viel Geld in den Auf- und Ausbau einer sehr guten Infrastruktur, in die Kinder- und Schulbetreuung, in die Ärzte- und Gesundheitsversorgung, in vielfältige Einkaufsmöglichkeiten und in die Gastronomie investiert.
Die angebotene Immobilie befindet sich in Falkensee-Finkenkrug. Dieser Ortsteil zählt zu den beliebtesten Wohngegenden von Falkensee. Er ist geprägt von neu erbauten Ein-, Zwei- und Mehrfamilienhäusern sowie sehr aufwendig und liebevoll sanierten Villen aus dem letzten Jahrhundert. Insbesondere jungen Familien bietet dieser Ortsteil viele Vorteile durch kurze Wege und gute Erreichbarkeit. Der Regionalbahnhof Falkensee-Finkenkrug ist nur ca. 1,6 km, zwei Kindertagesstätten nur ca. 800 und eine Grundschule nur ca. 1,1km entfernt. Sehr gute Einkaufsmöglichkeiten für die Dinge des täglichen Lebens sind fußläufig oder mit Fahrrad schnell erreicht.
Der Regionalbahnhof Falkensee-Finkenkrug, mit diversen Bahnverbindungen in verschiedene Richtungen, bietet Berufspendlern ausreichend P+R Parkplätze. Ob mit der Regionalbahn oder dem Auto, die Berliner City ist in nur ca. 30 Minuten zu erreichen.
Sonstige Angaben
Die Courtage in Höhe von 3,57 % des Kaufpreises (inklusive 19% MwSt.) wird vom Käufer getragen und ist verdient und zahlbar an die EMA IMMOBILIEN GmbH nach Beurkundung des notariellen Kaufvertrages. Wir freuen uns über Ihren Anruf oder Ihre Anfrage.
Wir bieten Ihnen diese Immobilie zu unseren Allgemeinen Geschäftsbedingungen an.
Sie möchten Ihre Immobilie verkaufen? Unsere Beratung zum Immobilienverkauf ist kostenfrei.
Wir freuen uns auf Ihre Anfrage. www.ema-immobilienwert.de
Grundriss
Erdgeschoss
>
>
Obergeschoss
>
>
Dachgeschoss
>
>
Lageplan
>
>
Adresse
14612 Falkensee
Interessante Orte
Preis- und Lageinformationen
Preistrend für Bestandsimmobilien in Falkensee