Die Wohnungen im Torhaus
Die zwei Wohnungen im ersten und zweiten Obergeschoss des Nassauer Schlösschens – dem Torhaus von Schloss Hohenlimburg – verbinden einen modernen, gut nutzbaren Wohnungszuschnitt mit dem urigen Charme einer mittelalterlichen Höhenburg. Die Schlossanlage ist durchweg gepflegt, die geschieferte Außenfassade des Torhauses ein beliebtes Postkartenmotiv.
Aktuell befindet sich die Wohnung in den letzten Stadien einer aufwendigen Sanierung: Sanitärobjekte werden noch montiert, einige Holzböden müssen noch einmal geschliffen und endbehandelt werden, Heizungsrohre und Details erhalten ihren finalen Anstrich. Wer sich jetzt entscheidet, sichert sich die Wohnung frühzeitig und kann den Abschluss der Arbeiten noch miterleben.
1. Obergeschoss – Hauptwohnung im Torhaus
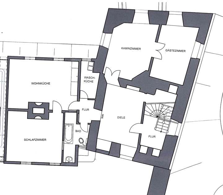
Über das historische Treppenhaus mit Holztreppe erreichen Sie die Wohnung im 1. Obergeschoss des Nassauer Schlösschens. Bereits die helle Diele macht deutlich, dass sich hier historischer Charme und moderne Wohnqualität perfekt ergänzen. Insgesamt stehen auf dieser Ebene rund 118 m² zur Verfügung.
Herzstück dieser Etage ist die große Wohnküche mit freiliegenden Deckenbalken, geöltem Holzboden und hohen Sprossenfenstern. Der Raum wirkt offen und freundlich und bietet genügend Platz für einen großen Esstisch und einen gemütlichen Wohnbereich – ideal zum Kochen, Leben und Gäste empfangen.
Direkt angrenzend befindet sich ein ruhig gelegenes Schlafzimmer mit gleicher Gestaltung – Holzdielen, sichtbare Deckenbalken und viel Licht – das sich perfekt als Rückzugsort anbietet.
Besonders eindrucksvoll ist das anschließende Kaminzimmer, ein historischer Kachelsaal: aufwendig restaurierte Wandvertäfelungen, profilierte Rahmen und ein Kamin verleihen diesem Raum einen ausgesprochen repräsentativen Charakter. Gegenüber liegt ein weiteres Zimmer, das sich je nach Bedarf als Arbeits- oder Gästezimmer nutzen lässt; auch hier sorgen große Fenster für viel Licht und den Blick ins Grüne, über den Höhengarten von Schloss Hohenlimburg und weit ins Lennetal.
Ein modernes Tageslichtbad mit Dusche, neue Sanitärobjekte (noch nicht montiert) sowie ein separater Hauswirtschaftsraum mit Anschlüssen für Waschmaschine/Trockner runden diese Ebene praktisch ab. Die gesamte Etage wirkt durch helle Farben, die originalen Fenster und die Kombination aus Altbaudetails und frischer Sanierung sehr großzügig und einladend.
2. Obergeschoss – Einliegerwohnung / eigene Etage
Über eine interne Treppe gelangen Sie in das Dachgeschoss, das wie eine eigenständige Einliegerwohnung genutzt werden kann. Hier öffnen sich unter den sichtbaren Dachschrägen helle, gemütliche Räume mit viel Charme. Die Fläche dieser Etage umfasst noch einmal knapp 90 m².
Im Mittelpunkt steht eine große, urige Wohnküche mit dem wunderschönen historischen Kaminzug; Dachgauben und Fenster sorgen für viel Tageslicht und schöne Ausblicke über die Dächer von Hohenlimburg, den romantischen Lindenhof des Schlosses und weit ins Lennetal.
Zusätzlich stehen zwei weitere Zimmer zur Verfügung: Eines eignet sich ideal als ruhiges Schlafzimmer mit Holzböden und den für das Torhaus typischen tiefen Fensterlaibungen, das andere kann als weiteres Schlafzimmer, Gästezimmer oder Arbeitszimmer genutzt werden. In einem der Räume setzt das skelettierte Fachwerk einen besonderen historischen Akzent.
Das moderne Bad im 2. OG ist ebenfalls in hellen Tönen gehalten und mit Dusche, Waschbecken und WC ausgestattet; auch hier werden die Sanitärobjekte aktuell noch eingebaut.
Damit bietet diese Etage eine perfekte Kombination aus Rückzugsmöglichkeit und eigenständigem Wohnbereich – ob als Einliegerwohnung, Jugendetage oder komfortabler Gästebereich, immer mit außergewöhnlichem Schloss-Ambiente und beeindruckendem Ausblick.
Außergewöhnliche Maisonette im Torhaus von Schloss Hohenlimburg (ca. 200 m²)
Alter Schlossweg 30,
58119 Hagen
Auf Karte anzeigen
Infos
| Wohnungskategorie | Maisonette |
|---|---|
| Etage | 1 von 3 |
| Wohnfläche ca. | 206 m2 |
| Bezugsfrei ab | sofort |
| Zimmer | 7 |
| Schlafzimmer | 4 |
| Badezimmer | 2 |
| Haustiere | Nach Vereinbarung |
| Garage/Stellplatz | Außenstellplatz |
Kosten
| Kaltmiete |
1.850 € |
|---|---|
| Nebenkosten | + 149 € |
| Heizkosten | keine Angabe |
| Gesamtmiete | 1.999 € (zzgl. Heizkosten) |
Weiter mieten oder doch kaufen?
Wer in Miete wohnt, überweist dem Vermieter im Laufe der Jahre hohe Summen, die sich
auch in die eigenen vier Wände investieren lassen könnten.
Bausubstanz & Energieausweis
| Baujahr | 1615 |
|---|---|
| Letzte Sanierung | 2025 |
| Objektzustand | Erstbezug nach Sanierung |
| Qualität der Austattung | Gehoben |
| Wesentliche Energieträger | Öl |
| Energieausweis | laut Gesetz nicht erforderlich |
Beschreibung des Objekts
Ausstattung
Die beiden Etagen im Nassauer Schlösschen befinden sich in den letzten Zügen einer aufwendigen Sanierung. Wände, Leitungen und Heizkörper sind bereits erneuert, Sanitärobjekte in den Bädern werden noch montiert, einige Holzdielenböden noch einmal geschliffen und endbehandelt, Heizungsrohre und Details erhalten ihren finalen Anstrich.
Prägend für das Ambiente sind die zahlreichen Kastenfenster mit tiefen Laibungen, sichtbare Holzbalkendecken sowie überwiegend neue Eichenholzdielen in den Wohn- und Schlafräumen; teilweise sind historische Böden erhalten geblieben. Historische Innentüren und Beschläge wurden weitgehend bewahrt. Ein Arbeitszimmer im Dachgeschoss zeigt freigelegtes Fachwerk und unterstreicht den besonderen Charakter des Hauses. Das rund dreihundertjährige Treppenhaus aus massiver Eiche verbindet die beiden Ebenen eindrucksvoll.
Zum Komfort gehören zwei moderne Bäder, zwei großzügige Wohnküchen, ein historisches Kaminzimmer/Kachelsaal sowie mehrere gut nutzbare Wohn-, Schlaf- und Arbeitszimmer. Praktische Lager- und Abstellflächen stehen in einem Abstellraum sowie zusätzlich auf dem Dachboden zur Verfügung. Viele Räume bieten dank der großen Sprossenfenster schöne Ausblicke über den Höhengarten und den Lindenhof von Schloss Hohenlimburg bis weit ins Lennetal.
Optionale Gartenfläche
Auf dem Grundstück besteht die Möglichkeit, einen eigenen Gartenteil als private Außenfläche abzutrennen. Nach Absprache kann hier ein kleiner Garten mit Sitzbereich, Beeten oder Spielfläche entstehen – ideal, um in direkter Nachbarschaft zum Schloss ins Grüne zu treten, ohne das Haus verlassen zu müssen. Umfang und genaue Gestaltung der Fläche können individuell mit dem Vermieter abgestimmt werden.
Lage
Das Nassauer Schlösschen liegt unmittelbar am Tor zur historischen Schlossanlage Hohenlimburg auf dem Schlossberg, leicht erhöht über dem Lennetal. Schloss Hohenlimburg ist die einzige weitgehend im Originalzustand erhaltene mittelalterliche Höhenburg Westfalens und wird wegen seiner malerischen Lage auch als „Westfälisches Heidelberg“ bezeichnet. Direkt vor dem Haus stehen öffentliche Parkplätze zur Verfügung.
Der Stadtteil Hohenlimburg bietet eine gute gewachsene Infrastruktur: Einkaufsmöglichkeiten für den täglichen Bedarf, Kindergärten, Schulen und mehrere Spielplätze sind im Ort und in den angrenzenden Stadtteilen bequem erreichbar.
Rund um das Schloss beginnen zahlreiche Spazier- und Wanderwege, unter anderem Etappen des Lennesteigs sowie mehrere vom Sauerländischen Gebirgsverein markierte Rundtouren über die Hohenlimburger Höhen und durch das Lennetal – ideal für Naturfreunde direkt vor der Haustür.
Entlang der Lenne verlaufen zudem überregionale Radstrecken wie die Lenneroute bzw. der Lenneradweg und der Ruhr-Lenne-Achter, die das Umfeld auch für Radfahrer attraktiv machen.
Industriekultur im Ruhrgebiet
Die Anbindung an den ÖPNV ist sehr gut: Der Bahnhof Hagen-Hohenlimburg bietet Regionalzugverbindungen, unter anderem nach Hagen und Dortmund; Buslinien verbinden Hohenlimburg in dichter Taktung mit der Hagener Innenstadt.
Mit dem Auto beträgt die Fahrzeit in das Dortmunder Zentrum je nach Verkehr rund 30–35 Minuten, die Anschlussstelle Hagen-Süd der BAB A1 ist in wenigen Minuten (ca. 7 Minuten) erreichbar.
Sonstige Angaben
Schloss Hohenlimburg gilt als eine der wenigen weitgehend im mittelalterlichen Originalzustand erhaltenen Höhenburgen Westfalens und wird wegen seiner pittoresken Lage auch „Westfälisches Heidelberg“ genannt. Die Burganlage mit Vorburg, Torhäusern, Ringmauern und Bergfried prägt den gesamten Schlossberg und macht das Wohnen im Nassauer Schlösschen zu etwas ganz Besonderem.
Heute wird das Schloss als lebendiger Kultur- und Geschichtsort genutzt: Neben dem Schlossmuseum zur Geschichte der Grafen und Fürsten zu Bentheim-Tecklenburg erwarten Besucher wechselnde Ausstellungen, das Deutsche Kaltwalzmuseum sowie der historische Höhengarten mit barocker Gartenanlage, Zier- und Nutzgärten. Über ein modernes Zugangssystem ist die Anlage tagsüber für Besucher geöffnet.
Ein besonderes Highlight ist die Ausstellung zur „Schwarzen Hand“ im Bergfried – einem berühmten historischen Exponat, das mit moderner Präsentation und begleitenden Informationen in Szene gesetzt wird. Als Bewohnerin oder Bewohner des Torhauses leben Sie damit in direkter Nachbarschaft zu einem einzigartigen Kulturdenkmal mit hohem Freizeit- und Erlebniswert.
Grundriss
Grundriss 1. OG
>
>
Grundriss 2. OG
>
>
Adresse
Alter Schlossweg 30, 58119 Hagen
Interessante Orte
Preis- und Lageinformationen
Preistrend für Bestandsimmobilien in Hohenlimburg