Dieses moderne Neubau-Zweifamilienhaus aus dem Jahr 2023 bietet Ihnen eine helle und stilvolle Wohnung im 1. Obergeschoss, das als Dachgeschoss konzipiert ist. Auf ca. 83,23 m² finden Sie eine durchdachte Raumaufteilung, die Ihnen zahlreiche Gestaltungsmöglichkeiten bietet. Die Wohnung wird mit einer Fußbodenheizung ausgestattet, die durch eine effiziente Wärmepumpe mit Solarunterstützung betrieben wird, was für ein angenehmes Raumklima sorgt und gleichzeitig nachhaltig ist.
Beim Betreten der Wohnung gelangen Sie über einen länglichen Flur in den großzügigen Wohn- und Essbereich, der mit seinen bodentiefen Fenstern sehr lichtdurchflutet ist. Hier erwarten Sie ideale Lichtverhältnisse, die den Raum besonders einladend machen. Die großzügige Fläche bietet Ihnen viel Raum, um Ihrer Kreativität freien Lauf zu lassen und Ihre persönlichen Wohnideen umzusetzen. Die dezenten Dachschrägen verleihen dem Raum eine gemütliche Atmosphäre und machen ihn gleichzeitig einzigartig. Der Ausblick ins Grüne sorgt für eine ruhige, entspannte Stimmung, sodass der fehlende Balkon kaum auffällt.
Vom Wohnbereich aus gelangen Sie in die separate Küche, die durch ein großes Dachfenster ebenfalls viel Tageslicht erhält. Diese wird ohne Küche vermietet, sodass Sie die Möglichkeit haben, Ihre Traumküche ganz nach Ihren eigenen Vorstellungen zu gestalten. Mit ausreichend Platz können Sie hier gemütliche Kochabende mit Familie und Freunden verbringen.
Das Schlafzimmer ist ebenso mit bodentiefen Fenstern ausgestattet und bietet ausreichend Platz für ein großes Bett und einen Kleiderschrank. Es ist der perfekte Ort, um eine persönliche Wohlfühloase zu schaffen und den Raum zu Ihrem Rückzugsort zu machen.
Das Badezimmer ist ein weiteres Highlight der Wohnung. Es ist modern und mit Tageslicht durchflutet. Hier können Sie zwischen einer entspannenden Badewanne oder einer erfrischenden Dusche wählen. Ein Handtuchhalter sorgt dafür, dass Sie immer ein warmes Handtuch zur Hand haben. Das Badezimmer bietet zudem genug Platz für Aufbewahrungsmöbel, um Ihre persönlichen Utensilien zu verstauen.
Zusätzlich verfügt die Wohnung über einen praktischen Abstellraum sowie einen Waschmaschinenanschluss, der den Alltag erleichtert. Ein Außenstellplatz vor der Tür sorgt für bequemes Parken.
Insgesamt bietet diese Wohnung nicht nur eine nachhaltige, moderne Ausstattung, sondern auch eine lichtdurchflutete und großzügige Raumaufteilung. Lassen Sie Ihrer Kreativität freien Lauf und gestalten Sie sich Ihre persönliche Traumwohnung in dieser ruhigen, grünen Umgebung!
Vereinbaren Sie noch heute einen Besichtigungstermin und überzeugen Sie sich selbst von dieser attraktiven Wohnung!
Neubau-Dachgeschosswohnung mit 2,5 Zimmern – Lichtdurchflutet & flexibel gestaltbar
74906 Bad Rappenau
Die vollständige Adresse der Immobilie erhalten Sie vom Anbieter.
Auf Karte anzeigen
Die vollständige Adresse der Immobilie erhalten Sie vom Anbieter.
Infos
| Wohnungskategorie | Dachgeschoss |
|---|---|
| Etage | 1 von 2 |
| Wohnfläche ca. | 83 m2 |
| Bezugsfrei ab | sofort / nach Vereinbarung |
| Zimmer | 2,5 |
| Schlafzimmer | 1 |
| Badezimmer | 1 |
| Anzahl Garage/Stellplatz | 1 |
Kosten
| Kaltmiete |
984 € |
|---|---|
| Nebenkosten | + 200 € |
| Heizkosten | in Nebenkosten enthalten |
| Gesamtmiete | 1.234 € |
| Miete für Garage/Stellplatz | 50 € |
Weiter mieten oder doch kaufen?
Wer in Miete wohnt, überweist dem Vermieter im Laufe der Jahre hohe Summen, die sich
auch in die eigenen vier Wände investieren lassen könnten.
Bausubstanz & Energieausweis
| Baujahr | 2023 |
|---|---|
| Objektzustand | Erstbezug |
| Qualität der Austattung | Normal |
| Heizungsart | Wärmepumpe |
| Wesentliche Energieträger | Strom |
| Energieausweis | liegt vor |
| Energieausweistyp | Bedarfsausweis |
| Energieverbrauchskennwert | 17,6 kWh/(m²*a) |
| Energieeffizienzklasse | A+ |
17,6
kWh/(m²*a)
Energieeffizienzklasse A+
- A+
- A
- B
- C
- D
- E
- F
- G
- H
- 0
- 25
- 50
- 75
- 100
- 125
- 150
- 175
- 200
- 225
- >250
Beschreibung des Objekts
Lage
Die Wohnung befindet sich in Bad Rappenau, einer charmanten und ruhigen Lage, die eine ideale Verbindung zwischen ländlichem Flair und städtischer Infrastruktur bietet. Der Stadtteil Bonfeld überzeugt mit einer hervorragenden Anbindung an das Zentrum von Bad Rappenau und zahlreichen Annehmlichkeiten in unmittelbarer Nähe.
Einkaufsmöglichkeiten für den täglichen Bedarf sind bequem fußläufig erreichbar, darunter Supermärkte und diverse Einzelhandelsgeschäfte. Frische Backwaren erhalten Sie in den nahegelegenen Bäckereien, die ebenfalls gut zu erreichen sind. Für die medizinische Versorgung stehen Ihnen mehrere Ärzte und Apotheken im Umfeld zur Verfügung, sodass Sie immer gut versorgt sind.
Familienfreundlichkeit wird hier großgeschrieben: Kindergärten und Schulen befinden sich in der näheren Umgebung, was eine ideale Situation für junge Familien schafft. Zudem sorgt die ruhige Lage der Wohnung für eine angenehme Lebensqualität, während die gute Verkehrsanbindung Ihnen kurze Wege ins Stadtzentrum und zu den wichtigsten Verkehrsachsen ermöglicht.
Insgesamt bietet die Lage der Wohnung eine perfekte Mischung aus naturnahem Wohnen und guter Erreichbarkeit von allem, was Sie für den Alltag benötigen.
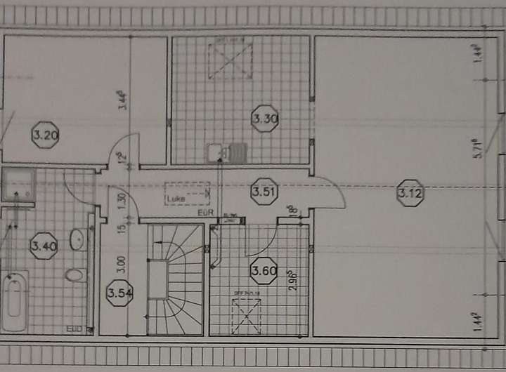
Grundriss
Grundriss - DG
>
>
Adresse
74906 Bad Rappenau
Interessante Orte
Preis- und Lageinformationen
Preistrend für Bestandsimmobilien in Bad Rappenau