In bevorzugter Wohnlage in der Nordweststadt, Frankfurt am Main, nahe Niederursel. Hier wird eine zentrale Lage mit ruhigem und naturnahem Wohnen verbunden.
Bis November 2025 wurde das gesamte Haus grundlegend saniert.
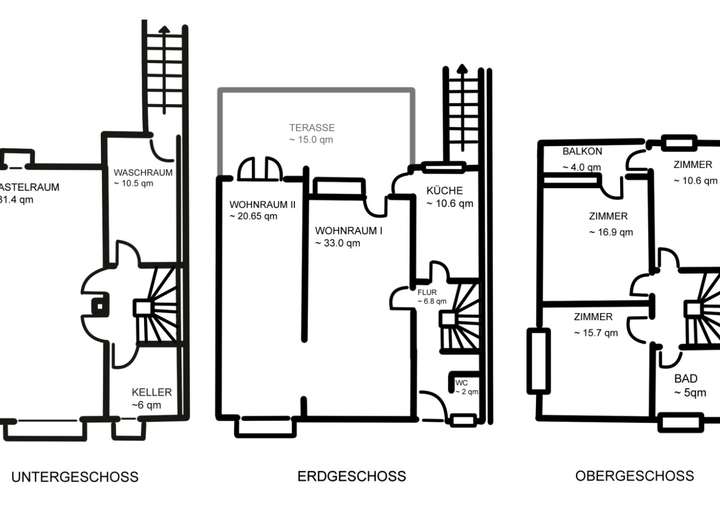
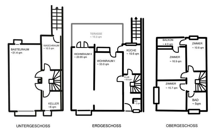
Das Erdgeschoss:
Über den mit Fliesen ausgelegten Eingangsbereich gelangen Sie durch eine großzügige Garderobe in Küche und Wohn-Essbereich. Die Küche können Sie nach Ihren persönlichen Wünschen gestalten (keine Einbauküche vorhanden). Der großzügige Wohnbereich mit Einbau Kamin, bietet Gartenblick und Platz für mehrere Sitz- und Entspannungsbereiche. Hier kann ein Essbereich eingerichtet werden oder es ist beispielsweise Platz für ein Piano. Im hinteren Bereich, ebenfalls mit Gartenblick, kann ein weiterer Sitzbereich eingerichtet werden.
Der Wohnbereich verfügt über zwei unabhängige Türen, die in den Garten führen.
Das Treppenhaus ist durch eine Lichtkuppel mit Tageslicht versorgt.
Das Obergeschoss:
In diesem befinden sich drei Schlaf- bzw. Kinder- oder Arbeitszimmer von denen zwei Zugang zu einem 4m2 großen Balkon mit Aussicht auf den Garten haben.
Im ersten Stock befindet sich außerdem ein Tageslichtbad mit Badewanne, Waschbecken und WC.
Das Untergeschoss:
Das Untergeschoss verfügt über einen großzügigen hellen Hobbyraum.
Der Heizkeller verfügt über ausreichend Platz für Waschmaschine und Trockner. Zusätzlich gibt es einen weiteren Raum mit direktem Zugang zum Garten.
Geräumiges 7-Zimmer Einfamilienhaus in Frankfurt-Niederursel
Gerhart-Hauptmann-Ring 51,
60439 Frankfurt am Main
Auf Karte anzeigen
Infos
| Haustyp | Reiheneckhaus |
|---|---|
| Etagenzahl | 3 |
| Wohnfläche ca. | 210 m2 |
| Grundstücksfläche | 243 m2 |
| Bezugsfrei ab | 15.12.2025 |
| Zimmer | 7 |
| Schlafzimmer | 3 |
| Badezimmer | 1 |
| Haustiere | Ja |
Kosten
| Kaltmiete |
2.600 € |
|---|---|
| Nebenkosten | + 300 € |
| Heizkosten | keine Angabe |
| Gesamtmiete | 2.900 € (zzgl. Heizkosten) |
| Kaution o. Genossenschaftsanteile | 7.8 |
Weiter mieten oder doch kaufen?
Wer in Miete wohnt, überweist dem Vermieter im Laufe der Jahre hohe Summen, die sich
auch in die eigenen vier Wände investieren lassen könnten.
Bausubstanz & Energieausweis
| Letzte Sanierung | 2025 |
|---|---|
| Objektzustand | Vollständig Renoviert |
| Qualität der Austattung | Normal |
| Heizungsart | Fernwärme |
| Wesentliche Energieträger | Fernwärme |
| Energieausweis | liegt zur Besichtigung vor |
Beschreibung des Objekts
Lage
Das Grundstück verfügt über eine Gesamtfläche von 243 m². Das Haus ist von den Nachbargrundstücken nicht einsehbar, sodass Sie Ihre Privatsphäre in vollen Zügen genießen können.
Der Garten verfügt zusätzlich über einen Pavillon, in dem bis zu 6 Personen Platz finden.
Die Terrasse verfügt über eine Fläche von 15m2, so dass Sie genügend Platz für einen Lounge-Bereich und einen Essbereich haben werden. Teile davon sind überdacht, es ist außerdem eine ausziehbare Markise als Sonnen- und Regenschutz verfügbar.
Aus dem Anbau gelangen Sie über Flügeltüren in den Garten. Vorsicht: Urlaubsgefühle könnten aufkommen!
An der Seite befindet sich eine Gartentür. Hier können Sie ideal mit dem Fahrrad vom Gehweg den Garten erreichen. Am Ende des Gartens finden Sie eine kleine Hütte, in der Sie Fahrräder und Gartengeräte abstellen können.
Sonstige Angaben
Im Frankfurter Nordwesten befindet sich diese ruhig gelegene, doch zentrale Oase. Fußläufig zur U-Bahn Haltestelle Niederursel, sowie zum Nordwestzentrum. Universitätsnähe, sowie Anbindung zur Autobahn A5.
Busstation 5 Minuten, sowie Einkaufsmöglichkeiten 7 Minuten entfernt.
Der Stadtteil Nordweststadt wurde in den 1950er Jahren als Familienviertel geplant und verfügt über eine große Anzahl Grünflächen. Die Siedlung ist durch konzipierte Grünflächen in überschaubare Nachbarschaften gegliedert und dienen als grüner Mittelpunkt der ruhig geltenden Urbanisation.
Bildungs- und Kinderbetreuungseinrichtungen, Kirchen- und Gemeinschaftstreffpunkte fußläufig.
Fußwege verlaufen getrennt vom Fahrverkehr, mit schmalen Brückenstraßen – ideal für Kinder.
Eine Kaution von 3 Monatsmieten ist vorgesehen.
Gesamtmiete: 2.900.- EUR (Kaltmiete inklusive Betriebskosten)
Betriebskosten beinhalten (Abfallgebühren, Abwasser, Schornsteinfeger, etc.)
Nicht in den Nebenkosten enthalten: Strom, Fernwärme, Internet, Wasser, Haushaltsversicherung
Energieausweis wird derzeit erstellt.
Bei Interesse melden Sie sich bitte per Mail, um einen Besichtigungstermin zu vereinbaren.
Bitte senden Sie vorab einen Gehaltsnachweis.
Es freut sich auf einen Kennenlernen Familie Backhaus
Grundriss
Grundriss
>
>
Adresse
Gerhart-Hauptmann-Ring 51, 60439 Frankfurt am Main
Interessante Orte
Preis- und Lageinformationen
Preistrend für Bestandsimmobilien in Niederursel