Modernes Doppelhaus mit hochwertiger Ausstattung im Neubaugebiet von Wetzlar-Hermannstein
Dieses moderne Doppelhaus mit zwei separaten Wohneinheiten überzeugt durch einen durchdachten Grundriss, zeitgemäße Architektur und eine ruhige, familienfreundliche Lage im Neubaugebiet im Norden von Hermannstein.
Wohneinheit (je Haushälfte)
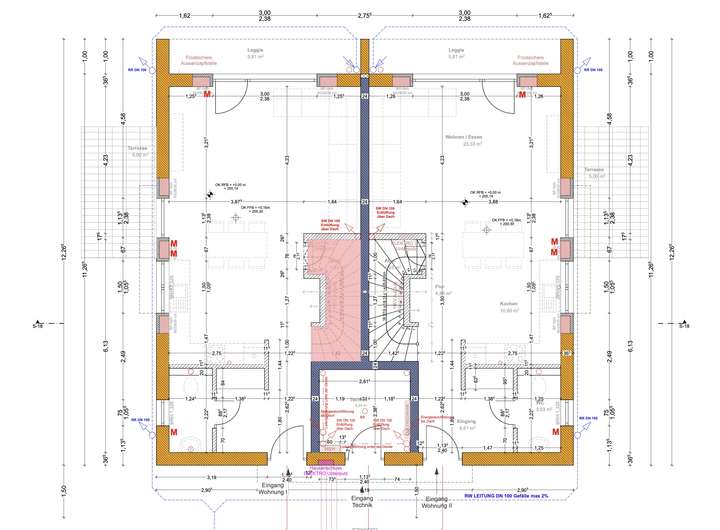
Erdgeschoss
Im Erdgeschoss erwartet Sie ein großzügiger Wohn- und Essbereich mit offener Küche. Von hier aus gelangen Sie direkt auf die Terrasse und in den Garten – ideal für entspannte Stunden im Freien oder gesellige Abende. Ein Gäste-WC sowie ein praktischer Abstellraum ergänzen das Raumangebot.
Obergeschoss
Das Obergeschoss bietet ein Elternschlafzimmer, zwei helle Kinderzimmer sowie ein modernes Badezimmer. Ein zusätzlicher Abstellraum sorgt für weiteren Stauraum. Der Balkon bietet einen schönen Rückzugsort mit Blick ins Grüne.
Ausstattung
• Doppelhaus mit zwei Vollgeschossen
• Alle Räume vollständig gefliest
• Luft-Wasser-Wärmepumpe für Heizung und Warmwasser
• Fußbodenheizung in allen Wohnräumen
• Moderne, energieeffiziente Bauweise
• Terrasse, Garten und Balkon
• 2 PKW-Stellplätze je Einheit
Modernes Doppelhaus mit hochwertiger Ausstattung im Neubaugebiet von Wetzlar-Hermannstein
Galgenbergring 15 b,
35586 Wetzlar
Auf Karte anzeigen
Infos
| Haustyp | Doppelhaushaelfte |
|---|---|
| Etagenzahl | 2 |
| Wohnfläche ca. | 102 m2 |
| Nutzfläche | 102,8 m2 |
| Grundstücksfläche | 268,5 m2 |
| Bezugsfrei ab | 14.12.2025 |
| Zimmer | 4 |
| Schlafzimmer | 3 |
| Badezimmer | 1 |
| Haustiere | Ja |
| Garage/Stellplatz | Außenstellplatz |
| Anzahl Garage/Stellplatz | 2 |
Kosten
| Kaltmiete |
1.700 € |
|---|---|
| Nebenkosten | + 300 € |
| Heizkosten | in Nebenkosten enthalten |
| Gesamtmiete | 2.000 € |
| Kaution o. Genossenschaftsanteile | 5.100,00 |
Weiter mieten oder doch kaufen?
Wer in Miete wohnt, überweist dem Vermieter im Laufe der Jahre hohe Summen, die sich
auch in die eigenen vier Wände investieren lassen könnten.
Bausubstanz & Energieausweis
| Baujahr | 2025 |
|---|---|
| Letzte Sanierung | 2025 |
| Objektzustand | Erstbezug |
| Qualität der Austattung | Gehoben |
| Heizungsart | Fußbodenheizung |
| Wesentliche Energieträger | Strom |
Beschreibung des Objekts
Lage
Hermannstein bietet eine sehr gute Infrastruktur mit kurzen Wegen:
Kindertagesstätten, Grundschule mit Betreuungsangebot, Sportplätze sowie zahlreiche Vereine befinden sich in unmittelbarer Nähe. Einkaufsmöglichkeiten, Ärzte, Zahnärzte, Apotheken, Friseure und weitere Dienstleistungen sind schnell erreichbar.
Das ruhige Neubaugebiet im Norden von Hermannstein ist ideal für Familien und Paare – naturnah, modern und bestens angebunden.
Grundriss
Hausansicht
>
>
Grundriss EG
>
>
Grundriss OG
>
>
Adresse
Galgenbergring 15 b, 35586 Wetzlar
Interessante Orte
Preis- und Lageinformationen
Preistrend für Bestandsimmobilien in Wetzlar