Wir bitten um Beachtung:
Gemäß den Vorgaben unseres Auftraggebers ist diese Wohnung bevorzugt an einen WOCHENENDPENDLER abzugeben.
Bei diesem Objekt handelt es sich um eine 1 - Zimmerwohnung in einem gepflegten Mehrfamilienhaus mit 6 Wohneinheiten.
Die Wohnung befindet sich im Hochparterre des Hauses und ist nach Osten ausgerichtet.
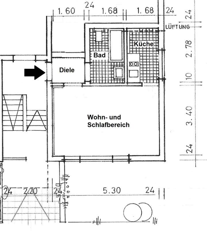
Eingangsbereich, Wohn- und Schlafzimmer, separater Küchenraum mit Singleküche und Badezimmer.
Kurzum:
Ein idealer Zweitwohnsitz in ruhiger Lage, mit guter Verkehrsanbindung.
PENDLERWOHNUNG in Leinfelden (Musberg): Echtholzparkettboden, separate Küche, Bad mit Wanne
70771 Leinfelden-Echterdingen
Die vollständige Adresse der Immobilie erhalten Sie vom Anbieter.
Auf Karte anzeigen
Die vollständige Adresse der Immobilie erhalten Sie vom Anbieter.
Infos
| Wohnungskategorie | Hochparterre |
|---|---|
| Etage | 1 von 3 |
| Wohnfläche ca. | 28 m2 |
| Bezugsfrei ab | 01. Februar 2026 oder früher nach Vereinbarung |
| Zimmer | 1 |
| Badezimmer | 1 |
| Haustiere | Nein |
Kosten
| Kaltmiete |
400 € |
|---|---|
| Nebenkosten | + 120 € |
| Heizkosten | in Nebenkosten enthalten |
| Gesamtmiete | 520 € |
| Kaution o. Genossenschaftsanteile | 2 Monatsmieten (netto kalt) = € 800,- |
Weiter mieten oder doch kaufen?
Wer in Miete wohnt, überweist dem Vermieter im Laufe der Jahre hohe Summen, die sich
auch in die eigenen vier Wände investieren lassen könnten.
Bausubstanz & Energieausweis
| Baujahr | 1973 |
|---|---|
| Letzte Sanierung | 2009 |
| Objektzustand | Gepflegt |
| Qualität der Austattung | Normal |
| Heizungsart | Zentralheizung |
| Wesentliche Energieträger | Öl |
| Energieausweis | liegt vor |
| Energieausweistyp | Verbrauchsausweis |
|
Energieverbrauchskennwert
Energieverbrauch für Warmwasser enthalten |
97,1 kWh/(m²*a) |
Beschreibung des Objekts
Ausstattung
Der Wohn- und Schlafraum ist mit einem Echtholzparkettfußboden ausgestattet.
Der Eingangsbereich, die Küche und das Bad sind gefliest.
Abgeschlossener Küchenraum mit Singleküche.
Vermieterseitig ist die Küche mit Unter- und Oberschränken, einer Spüle, einem 2-Plattenkochfeld, Mikrowelle sowie einem Kühlschrank ausgestattet.
Innenliegendes Badezimmer.
Deckenhoch gefliest mit Badewanne, Waschbecken und WC.
Zur Wohnung gehört ein Abstellraum im Untergeschoss des Hauses.
Hier befindet sich auch eine gemeinschaftlich genutzte Waschküche mit Anschlüssen für eine Waschmaschine und einen Trockner.
Lage
Ruhige Anliegerstraße in bevorzugter Halbhöhenlage.
Mit dem Rad, auf Inlinern oder zu Fuß beginnt Ihre Freizeitgestaltung hier direkt vor der Haustüre.
Das Gebäude liegt etwa 7 Gehminuten vom Ortskern und einen Steinwurf von der nächsten Bushaltestelle entfernt.
Die Fahrzeit zur nächsten S-Bahnhaltestelle in Leinfelden, Stuttgart-Rohr oder Oberaichen beträgt mit dem Bus ca. 5 Minuten.
Von hier aus sind Stuttgart und Böblingen in weniger als 20 Minuten erreichbar.
Im benachbarten Leinfelden befindet sich neben einer S-Bahnanbindung auch die Endhaltestelle der U-Bahnlinie U 5.
Ebenfalls in Leinfelden befindet sich eine Auffahrt zur BAB A 8 mit einer Überleitung auf die B27 Richtung Stuttgart und Tübingen.
Der Stuttgarter Flughafen und die neue Landesmesse sind ca. 7 km entfernt.
Sonstige Angaben
Strom und Müllgebühren werden vom Mieter direkt mit dem Ver- bzw. Entsorger abgerechnet und sind in der Betriebskostenvorauszahlung nicht enthalten.
Wir haben dieses Kurzexposé nach bestem Wissen und Gewissen erstellt.
Alle Angaben beruhen auf den vom Eigentümer oder von einem Dritten zur Verfügung gestellten Informationen.
Wir können deshalb keine Gewähr für die Richtigkeit und Vollständigkeit der Angaben übernehmen.
Grundriss
Grundriss
>
>
Adresse
70771 Leinfelden-Echterdingen
Interessante Orte
Preis- und Lageinformationen
Preistrend für Bestandsimmobilien in Leinfelden-Echterdingen