Diese helle und großzügige 4,5-Zimmer-Wohnung mit ca. 105 m² Wohnfläche befindet sich im 3. Obergeschoss eines Mehrfamilienhauses in Sindelfingen-Maichingen.
Die frisch kernsanierte Wohnung mit Neubaustandard, besticht durch ihre optimale Raumaufteilung mit gehobener Innenausstattung und eignet sich wunderbar für Familien oder auch WG.
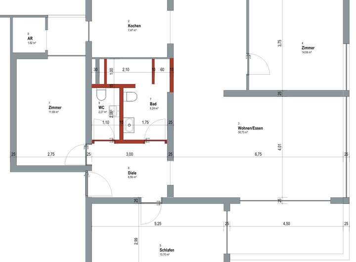
Besonders sticht in der Wohnung der großzügige Wohn-/ Essbereich hervor. Zudem ist ein sehr großes und geräumiges Schlafzimmer mit der Möglichkeit für einen begehbaren Kleiderschrank vorhanden sowie zwei weitere kleinere aber dennoch großzügige Zimmer.
Die Wohnung besitzt zudem zwei Balkone, wobei sich auf dem kleineren der Balkone ein zusätzlicher Abstellraum befindet.
Des Weiteren gibt es in der Wohnung ein Badezimmer mit bodentiefer Dusche und Nische für Waschmaschine und Trockner sowie ein separates WC.
Als besonderes Detail, verfügt die Wohnung in allen Aufenthaltsräumlichkeiten über eine indirekte Beleuchtung.
Ein Aufzug erleichtert den Zugang zu allen Etagen, und die Barrierefreiheit der Wohnung bietet zusätzlichen Komfort.
Eine Garage steht auf Absprache zur Verfügung.
Die Wohnung ist ab dem 01.01.2026 verfügbar.
Bis zum Übergabezeitpunkt, erhält die Wohnung neue 3-fach-verglaste Fenster mit einer Hebe-/ Schiebetür für den Balkon.
Kernsanierte 4,5-Zimmer Wohnung mit Neubaustandard in bester Lage in Sindelfingen-Maichingen
71069 Sindelfingen
Die vollständige Adresse der Immobilie erhalten Sie vom Anbieter.
Auf Karte anzeigen
Die vollständige Adresse der Immobilie erhalten Sie vom Anbieter.
Infos
| Wohnungskategorie | Sonstige |
|---|---|
| Etage | 3 von 13 |
| Wohnfläche ca. | 105 m2 |
| Nutzfläche | 115 m2 |
| Bezugsfrei ab | 1.1.2026 |
| Zimmer | 4,5 |
| Schlafzimmer | 3 |
| Badezimmer | 1 |
| Haustiere | Nach Vereinbarung |
| Garage/Stellplatz | Garage |
| Anzahl Garage/Stellplatz | 1 |
Kosten
| Kaltmiete |
1.750 € |
|---|---|
| Nebenkosten | + 380 € |
| Heizkosten | in Nebenkosten enthalten |
| Gesamtmiete | 2.130 € |
| Miete für Garage/Stellplatz | 80 € |
| Kaution o. Genossenschaftsanteile | 5.000,00 |
Weiter mieten oder doch kaufen?
Wer in Miete wohnt, überweist dem Vermieter im Laufe der Jahre hohe Summen, die sich
auch in die eigenen vier Wände investieren lassen könnten.
Bausubstanz & Energieausweis
| Baujahr | 1971 |
|---|---|
| Objektzustand | Erstbezug nach Sanierung |
| Qualität der Austattung | Gehoben |
| Heizungsart | Fußbodenheizung |
| Wesentliche Energieträger | Fernwärme |
| Energieausweis | liegt vor |
| Energieausweistyp | Verbrauchsausweis |
| Energieverbrauchskennwert | 123,0 kWh/(m²*a) |
| Energieeffizienzklasse | D |
123,0
kWh/(m²*a)
Energieeffizienzklasse D
- A+
- A
- B
- C
- D
- E
- F
- G
- H
- 0
- 25
- 50
- 75
- 100
- 125
- 150
- 175
- 200
- 225
- >250
Beschreibung des Objekts
Lage
Sindelfingen bietet eine ausgezeichnete Infrastruktur mit vielfältigen Einkaufsmöglichkeiten, Restaurants und Cafés. Die Anbindung an den öffentlichen Nahverkehr ist sehr gut, was schnelle Wege in die umliegenden Städte und Regionen ermöglicht. Zahlreiche Grünflächen und Parks laden zur Erholung ein, während ein breites Angebot an Freizeitmöglichkeiten wie Sportvereine und kulturelle Einrichtungen für Abwechslung sorgt.
Die Wohnung selbst liegt in zentraler jedoch ruhiger Lage in Sindelfingen-Maichingen. S-Bahn-Haltestelle sowie Einkaufsmöglichkeiten befinden sich wenige Gehminuten entfernt.
Auch die Autobahn A81 ist in etwa 5 Minuten erreichbar.
Grundriss
Grundriss
>
>
Adresse
71069 Sindelfingen
Interessante Orte
Preis- und Lageinformationen
Preistrend für Bestandsimmobilien in Sindelfingen